Detached house for sale in Liverpool L36, 3 Bedroom

Liverpool, Liverpool, UK

Quick Summary

Property Type:
Detached house
Status:
For sale
Price
£ 184,995
Beds:
3
Baths:
2
County
Merseyside
Town
Liverpool
Outcode
L36
Location
Whiston Lane, Huyton L36
Marketed By:
Bellway - Willow Grange
Posted
2024-04-21
L36 Rating:





More Info?
Please contact Bellway - Willow Grange on 0151 382 8440 or Request Details

Property Description

Available Plots
Plot 41

About the home
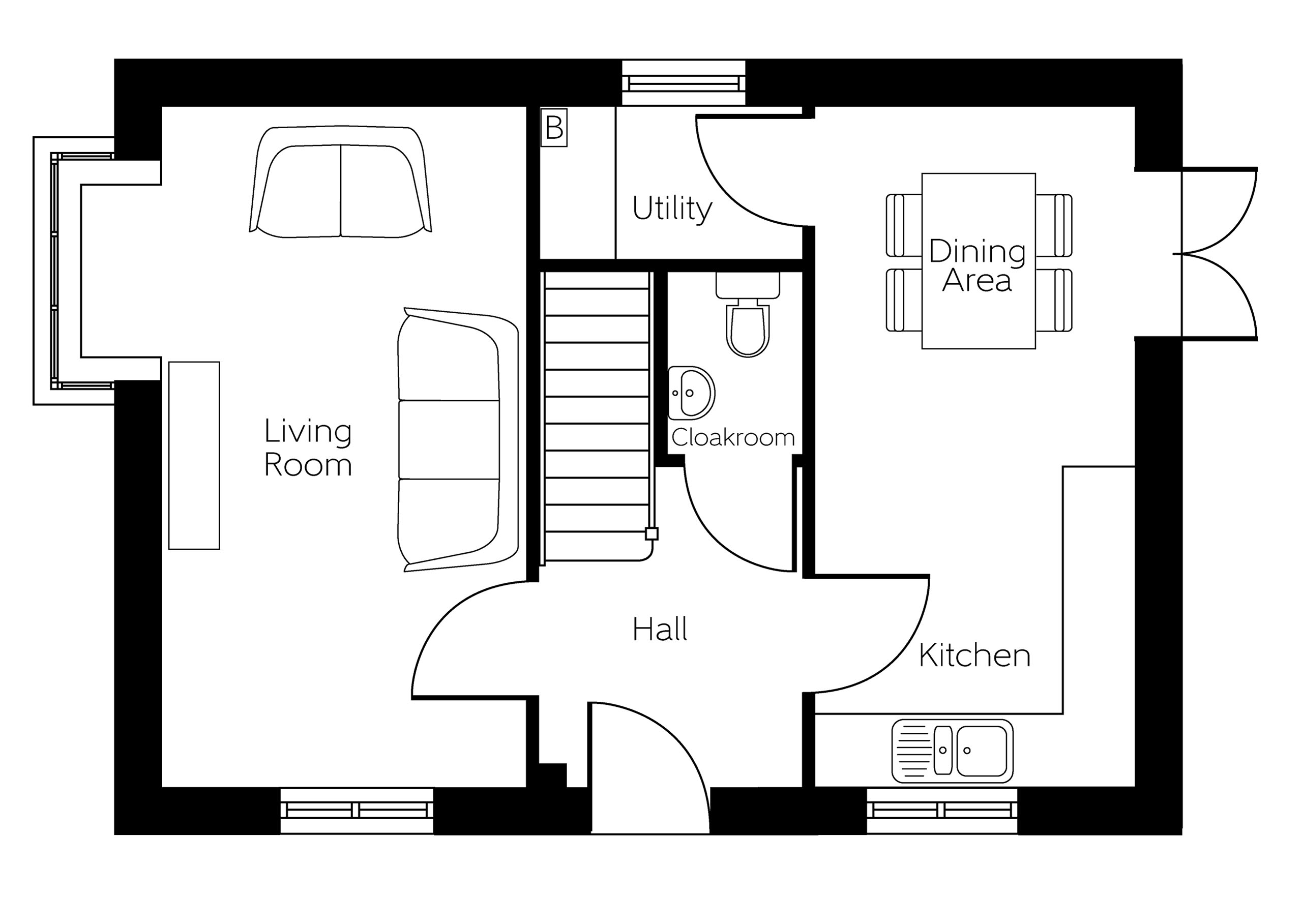
The Gordon Alt with Bay
The Gordon Alt with Bay is a 3-bedroom, detached family home, which benefits from a generous, dual aspect living room, and an en suite to the master bedroom.

The ground floor comprises a living room with an attractive bay window, an open-plan kitchen and dining area with a utility, and a separate cloakroom. The kitchen benefits from an integrated Zanussi stainless steel oven, gas hob and chimney hood, while the dining area features elegant French doors providing access to the rear garden. A convenient utility room with plumbing for further appliances is also accessible via the dining area.

On the first floor, there is a contemporary family bathroom with quality Roca sanitary ware to serve the second and third bedrooms. Bedroom 1 benefits from an en suite with a choice of attractive wall tiling.*

*Design choices are subject to build stage

Help To Buy
• Help To Buy available on this property
• Help to Buy is a Government backed equity loan aimed at helping you purchase your new home
• Reserve this home with as low as 5% deposit
• The scheme is open to both first time buyers and existing homeowners on new build properties up to a maximum value of £600,000
• The equity loan must be repaid after 25 years, or earlier if you sell your property and is interest free for the first five years
• From year six a fee of 1.75% is payable on the equity loan, which rises annually by rpi inflation plus 1%.

Opening Hours
Willow Grange has just launched from our Scotchbarn Rise development in Whiston, Merseyside. Please call for more information or visit our sales centre.
Sales centre opening hours:-
10.00am - 5.00pm Friday and Monday
10.00am - 7.00pm Thursday
11.00am - 5.00pm Saturday and Sunday
Closed Tuesday and Wednesday

About the development
Willow Grange
Willow Grange is a development of traditional 3 and 4-bedroom new homes in Huyton, within close proximity of excellent local amenities, and located just 8.5 miles from Liverpool city centre. Huyton is an idyllic residential location, due to its unique setting within easy reach of picturesque countryside, beautiful coastline and world-class city centre attractions.

Within walking distance of Willow Grange, residents will find the impressive Knowsley Leisure and Culture Park, which has quickly established itself as a hub of entertainment and activity for the local community. Just over a mile from the development, there is a pedestrianised shopping precinct within Huyton town centre, complete a good selection of local amenities. Here, residents will find both independent and high street stores, as well as a large supermarket.

The indoor Belle Vale Shopping Centre is three miles away, and comprises a good selection of shops, with everything from fashion to homewares, along with a soft play area, a gym, and a Laser Quest arena. Slightly further afield, Liverpool city centre boasts a first-class shopping destination which spans exclusive retail outlets, modern department stores and bohemian street markets.

Families will find a selection of well-regarded schools in the area, covering both primary, secondary and further education. For primary-aged pupils, there are three schools within one mile of Willow Grange. These include the exceptionally well-regarded St. Joseph's Roman Catholic Primary School (0.7 miles), Mosscroft Community Primary School (0.4 miles), and St. Gabriel's Church of England Primary School (0.8 miles). Older students will benefit from close proximity to two high-achieving secondary schools - the award-winning Lord Derby Academy, less than a mile from the development, and The Prescot School, just 1.2 miles away.

Floor Plans

Property Location

Marketed by Bellway - Willow Grange



By submitting this form, you accept our Terms of Use.

Disclaimer Property descriptions and related information displayed on this page are marketing materials provided by Bellway - Willow Grange. estateagents365.uk does not warrant or accept any responsibility for the accuracy or completeness of the property descriptions or related information provided here and they do not constitute property particulars. Please contact Bellway - Willow Grange for full details and further information.