Detached house for sale in Hereford HR2, 3 Bedroom

Hereford, Hereford, UK

Quick Summary

Property Type:
Detached house
Status:
For sale
Price
£ 260,000
Beds:
3
County
Herefordshire
Town
Hereford
Outcode
HR2
Location
Belmont, Hereford HR2
Marketed By:
Chancellors - Hereford
Posted
2024-03-31
HR2 Rating:





More Info?
Please contact Chancellors - Hereford on 01432 644881 or Request Details

Property Description

Property Description

A very well presented three bedroom detached home with dining kitchen, ensuite and single garage situated south of Hereford.

Property Details

This home is located south of Hereford in the popular area of Belmont. Having a supermarket and doctors surgery on the door step with a beautiful lake and fields close by and regular bus routes.

Benefitting from a down stairs WC, kitchen/diner and large front to back living room and attached garage. Exploring upstairs there is a family bathroom and 3 bedrooms with the master having a newly fitted ensuite. The property has drive way and front garden as well as a very private enclosed back garden.

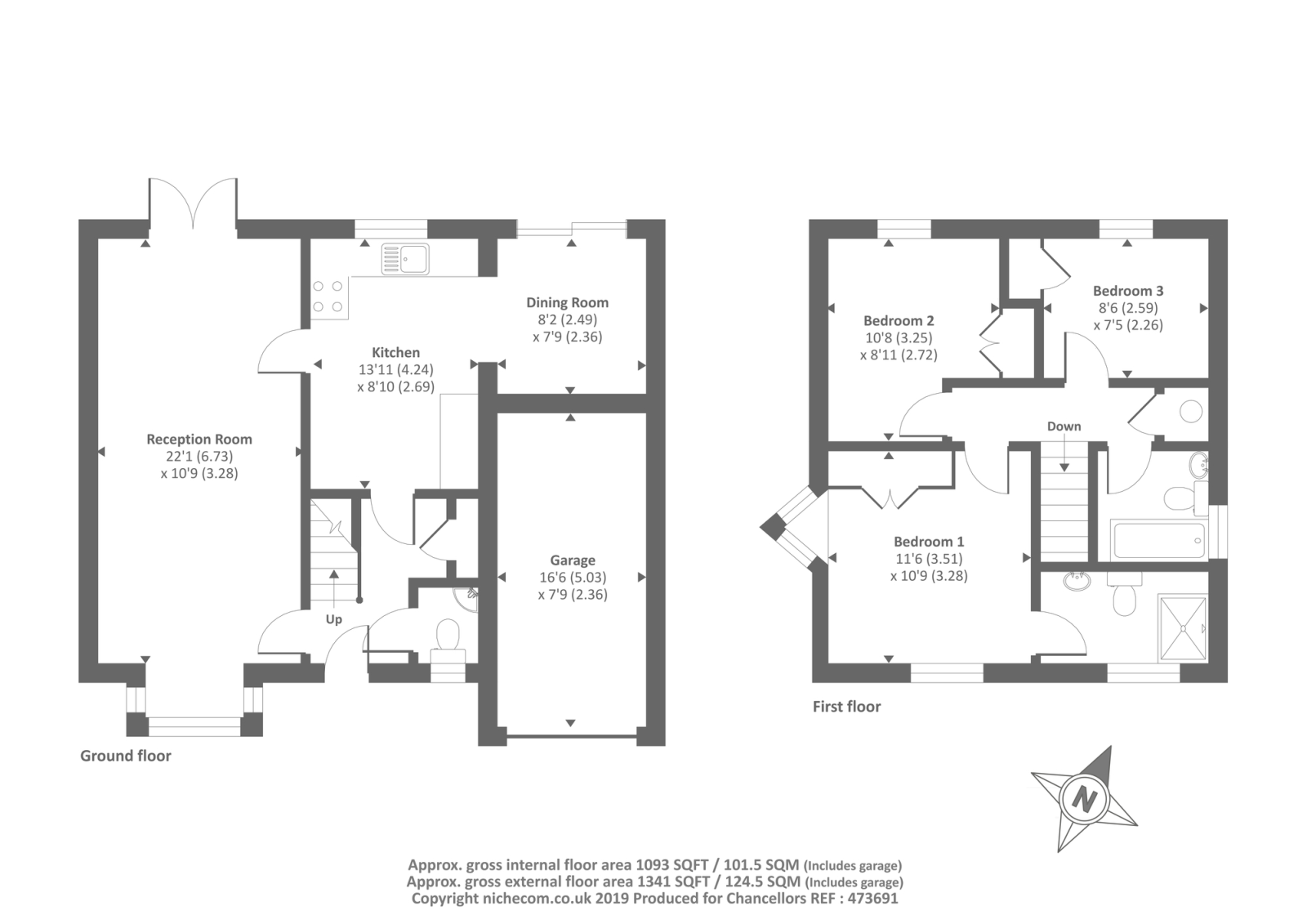
Floor Plans

Property Location

Marketed by Chancellors - Hereford


By submitting this form, you accept our Terms of Use.

Disclaimer Property descriptions and related information displayed on this page are marketing materials provided by Chancellors - Hereford. estateagents365.uk does not warrant or accept any responsibility for the accuracy or completeness of the property descriptions or related information provided here and they do not constitute property particulars. Please contact Chancellors - Hereford for full details and further information.