Detached house for sale in GL1, 4 Bedroom

, , UK

Quick Summary

Property Type:
Detached house
Status:
For sale
Price
£ 431,500
Beds:
4
Baths:
2
Recepts:
2
County
Town
Outcode
GL1
Location
"Calver" at Estcourt Road, Gloucester GL1
Marketed By:
Miller Homes - Scholars Place
Posted
2024-04-09
GL1 Rating:





More Info?
Please contact Miller Homes - Scholars Place on 01452 679759 or Request Details

Property Description

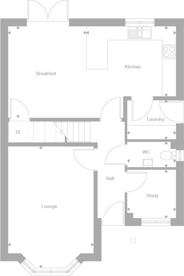
In addition to a beautiful bay windowed lounge and a light, airy breakfast area featuring french doors, the laundry room and private study both bring enormous benefits in separating work and leisure. A gallery landing leads to four bedrooms, one of them en-suite.

Rooms


Ground Floor
  • Lounge (3.651 x 5.139 m)
    max
  • Kitchen (3.81 x 2.993 m)
  • Breakfast (3.336 x 3.885 m)
  • Laundry (2.087 x 1.66 m)
  • Study (2.087 x 2.06 m)
  • WC (2.087 x 1.082 m)
First Floor
  • Master Bedroom (3.651 x 4.603 m)
    max/max
  • Ensuite (1.618 x 2.073 m)
    max/max
  • Bedroom 2 (3.793 x 2.758 m)
  • Bedroom 3 (3.26 x 2.758 m)
  • Bedroom 4 (2.087 x 3.147 m)
  • Bathroom (2.558 x 2.04 m)
    max/max

About Scholars Place


Scholars Place has good public transport links, with bus stops a few minutes’ walk away on Tewkesbury Road. Direct trains from Gloucester reach Birmingham New Street in 55 minutes and London
Paddington in two hours, and additional services run to Derby, Cardiff and other centres. National Cycle Route 41 passes within yards of the development, providing an offroad route into the town centre, and Gloucester airport, for charter and private flights, is less than five miles away.

The local shops around Kingsholm Road, ten minutes’ walk away, include a convenience store, a butcher and a pharmacy, and the cafés, homes and gardens stores and Tesco supermarket at St Oswald’s Retail Park are within a mile of Scholars Place. Gloucester city centre presents a lively variety of environments, from pedestrianised streets and independent traders in the historic Cathedral Quarter to the fashion brands and restaurants at Gloucester Quays, where the end of the Gloucester and Sharpness Canal has been transformed into a superb retail and leisure area. There are covered shopping centres, farmers’ markets and a fascinating choice of galleries, antiques and crafts.

Disclaimer


The house plans shown above, including the room specifications, may vary from development to development and are provided for general guidance only. For more accurate and detailed plans for a specific plot, please check with your local Miller Homes sales adviser. Carpets and floor coverings are not included in our homes as standard.

Floor Plans

Property Location

Marketed by Miller Homes - Scholars Place


By submitting this form, you accept our Terms of Use.

Disclaimer Property descriptions and related information displayed on this page are marketing materials provided by Miller Homes - Scholars Place. estateagents365.uk does not warrant or accept any responsibility for the accuracy or completeness of the property descriptions or related information provided here and they do not constitute property particulars. Please contact Miller Homes - Scholars Place for full details and further information.