Detached house for sale in Chesterfield S44, 4 Bedroom

Chesterfield, Chesterfield, UK

Quick Summary

Property Type:
Detached house
Status:
For sale
Price
£ 189,950
Beds:
4
Baths:
1
Recepts:
2
County
Derbyshire
Town
Chesterfield
Outcode
S44
Location
Stockley View, Bolsover, Chesterfield S44
Marketed By:
Wilson Estate Agents
Posted
2018-10-07
S44 Rating:





More Info?
Please contact Wilson Estate Agents on 01246 920968 or Request Details

Property Description

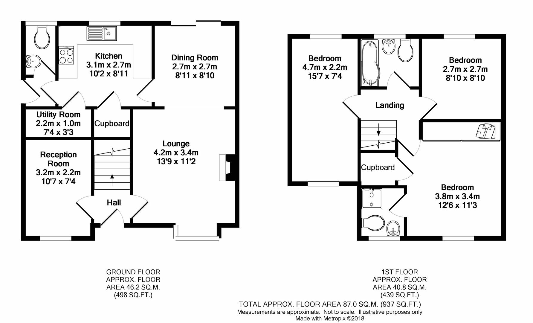
*no upward chain* Stunning three / four bedroomed detached house enjoying an elevated position in a quiet cul-de-sac location with far reaching views. Benefiting from a block paved driveway to the front providing ample off street parking and a beautiful enclosed rear garden designed for low maintenance. Ideal for the growing family and those wishing to 'upsize' the accommodation is generously proportioned and immaculate throughout and briefly comprises an entrance hall with access to the office / reception room / bedroom four, lounge open plan through to the dining room with space for a full size dining table and having patio doors that lead out to the rear garden, kitchen with built in appliances, guest WC and utility room. Upstairs sees two double bedrooms with the Master bedroom having built in bedroom furniture along with an en-suite shower room, a further single bedroom and a family bathroom having three piece suite including a 'p' shaped bath. The property is also ideally positioned for commuting to the M1 via j29a Markham Vale.

Office / Reception Room / Bedroom Four (3.2 x 2.2 (10'5" x 7'2"))

Lounge (4.2 x 3.4 (13'9" x 11'1"))

Dining Room (2.7 x 2.7 (8'10" x 8'10" ))

Kitchen (3.1 x 2.7 (10'2" x 8'10"))

Utility Room (2.2 x 1 (7'2" x 3'3"))

Guest Wc

Bedroom One (3.8 x 3.4 (12'5" x 11'1"))

Bedroom Two (4.7 x 2.2 (15'5" x 7'2"))

Bedroom Three (2.7 x 2.7 (8'10" x 8'10" ))

Floor Plans

Property Location

Marketed by Wilson Estate Agents


By submitting this form, you accept our Terms of Use.

Disclaimer Property descriptions and related information displayed on this page are marketing materials provided by Wilson Estate Agents. estateagents365.uk does not warrant or accept any responsibility for the accuracy or completeness of the property descriptions or related information provided here and they do not constitute property particulars. Please contact Wilson Estate Agents for full details and further information.