Detached house for sale in Cheltenham GL51, 3 Bedroom

Cheltenham, Cheltenham, UK

Quick Summary

Property Type:
Detached house
Status:
For sale
Price
£ 240,000
Beds:
3
Baths:
2
Recepts:
1
County
Gloucestershire
Town
Cheltenham
Outcode
GL51
Location
Buckingham Avenue, Cheltenham GL51
Marketed By:
House-Moves Ltd
Posted
2019-05-14
GL51 Rating:





More Info?
Please contact House-Moves Ltd on 01242 279082 or Request Details

Property Description

A unique opportunity to purchase an individually built detached property in the popular residential area of Rowanfield.
This spacious family home offers a downstairs cloakroom, good size lounge with French doors to the rear garden, a through kitchen/diner with built in oven and five ring gas hob with ample space for family dining.
On the first floor, all three bedrooms are doubles. The family bathroom is a fantastic size with a bath and separate shower cubicle.
To the front of the property there is off road parking for two vehicles.
Buckingham Avenue is a great location with many local shops, Cheltenham Spa Train Station is within walking distance, and motorway links are easily accessible.
Awaiting vendors approval

Front Of Property

Off road parking for two vehicles, security light, wooden gate to the side for garden access. UPVC door into hallway.

Hallway

Door to cloakroom and lounge, stairs to first floor, radiator, tiled flooring.

Cloakroom (2.0m x 0.90m (6'6" x 2'11"))

Low level white WC and hand basin, heated towel rail, extractor fan, tiled flooring.

Lounge (4.65m x 4.10m (15'3" x 13'5"))

Double glazed French doors into rear garden, feature fireplace with inset gas fire, laminate flooring, coving, glass doors leading into kitchen/diner.

Kitchen/Diner (5.90m x 3.70m (19'4" x 12'1"))

Double glazed patio doors into rear garden, UPVC window to front aspect, Modern white kitchen with a great range of wall and base units, stainless steel sink with mixer tap and drainer. Built in electric oven with five ring gas hob and extractor hood, built in fridge/freezer, space for dishwasher and washing machine, part tiled walls, tiled flooring, inset ceiling lights. Wall mounted Ideal combination boiler.

Rear Garden

Decked area, area of lawn, flower borders, side gate access.

Landing

Doors to all three bedrooms and sizeable family bathroom. Built-in cupboard/study, access to attic space which is mainly boarded.

Bedroom One (3.70m x 3.40m (12'1" x 11'1"))

UPVC window to front aspect, radiator, power points.

Bedroom Two (3.50m x 2.80m (11'5" x 9'2"))

UPVC window to front aspect, laminate flooring, radiator, power points.

Bedroom Three (3.50m x 3.10m (11'5" x 10'2"))

UPVC window to side aspect, radiator, power points.

Family Bathroom (3.70m x 2.50m (12'1" x 8'2"))

Opaque window to rear aspect, separate shower cubicle with Mira shower, white bath, low level WC, heated towel rail, lino flooring, inset ceiling lights.

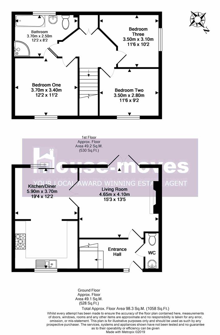
Floor Plans

Property Location

Marketed by House-Moves Ltd



By submitting this form, you accept our Terms of Use.

Disclaimer Property descriptions and related information displayed on this page are marketing materials provided by House-Moves Ltd. estateagents365.uk does not warrant or accept any responsibility for the accuracy or completeness of the property descriptions or related information provided here and they do not constitute property particulars. Please contact House-Moves Ltd for full details and further information.