Detached house for sale in Auchterarder PH3, 5 Bedroom

Auchterarder, Auchterarder, UK

Quick Summary

Property Type:
Detached house
Status:
For sale
Price
£ 279,995
Beds:
5
Baths:
3
Recepts:
2
County
Perth & Kinross
Town
Auchterarder
Outcode
PH3
Location
High Street, Auchterarder, Perthshire PH3
Marketed By:
Clyde Property, Perth
Posted
2024-05-17
PH3 Rating:





More Info?
Please contact Clyde Property, Perth on 01738 301958 or Request Details

Property Description

Presented to the market in immaculate condition throughout is this generously proportioned, five bedroom detached villa enjoying a central position within the sought after Perthshire town of Auchterarder.

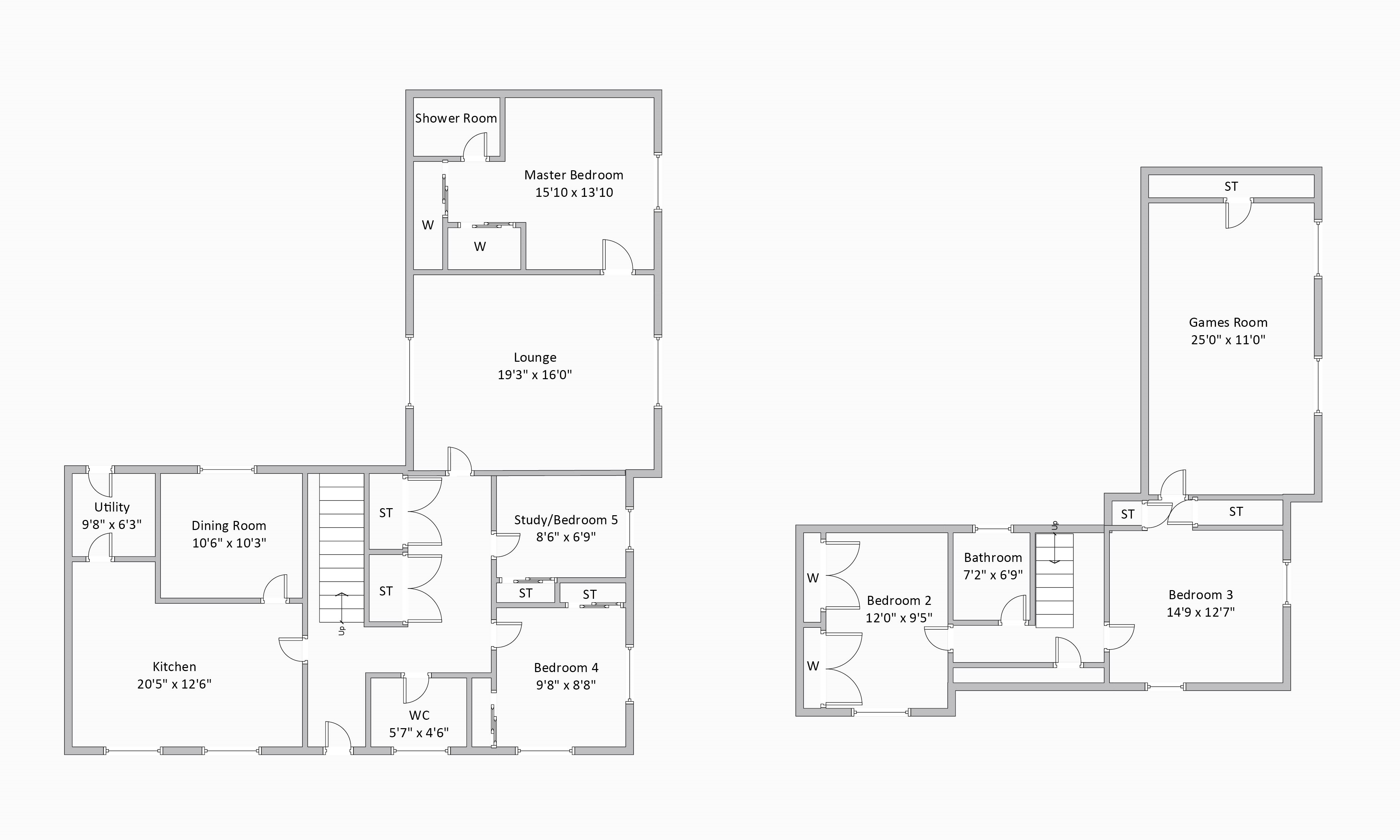
Formed over two levels the accommodation comprises; welcoming reception hallway, attractive WC, impressive dual aspect sitting room, dining sized kitchen which leads on to a useful utility room, formal dining room, five bedrooms, with the master benefiting from a stylish en-suite shower room, games room and a well appointed family bathroom completes the accommodation. Warmth is offered through gas central heating and the windows are fully double glazed throughout.

Externally there are well maintained garden grounds to the sides and rear. A double garage provides secure off street parking.

Auchterarder provides good day to day services including a supermarket, two butchers, bakery, post office, ironmonger, library, health centre and primary and secondary schooling, as well as a wide range of specialist shops. Nearby Gleneagles railway station provides daily services north and south, including a sleeper service to London, while Dunblane provides commuter services to both Edinburgh and Glasgow. Perth lies some 15 miles to the east and offers a broad range of national retailers, theatre, concert hall, cinema, restaurants and railway station. The cities of Edinburgh and Glasgow can be reached in about an hour's journey by car, and provide international airports, railway stations and extensive city amenities.

In order to fully appreciate the size and standard of accommodation on offer viewing is recommended. EPC - D

Floor Plans

Property Location

Marketed by Clyde Property, Perth


By submitting this form, you accept our Terms of Use.

Disclaimer Property descriptions and related information displayed on this page are marketing materials provided by Clyde Property, Perth. estateagents365.uk does not warrant or accept any responsibility for the accuracy or completeness of the property descriptions or related information provided here and they do not constitute property particulars. Please contact Clyde Property, Perth for full details and further information.