Bungalow for sale in York YO26, 2 Bedroom

York, York, UK

Quick Summary

Property Type:
Bungalow
Status:
For sale
Price
£ 175,500
Beds:
2
Baths:
1
County
North Yorkshire
Town
York
Outcode
YO26
Location
Grantham Drive, York YO26
Marketed By:
Reeds Rains
Posted
2024-04-01
YO26 Rating:





More Info?
Please contact Reeds Rains on 01904 409101 or Request Details

Property Description



*** for sale by modern method of auction : Starting bid price £175,500 plus reservation fee.***enjoying corner plot***two double bedrooms***detached garage***

We are delighted to offer this fantastic opportunity to acquire this detached bungalow on a corner position in a popular residential area. In need of complete refurbishment this property offers huge potential subject to relevant planning permissions. With double glazing the accommodation comprises of entrance hall, lounge, breakfast kitchen, two double bedrooms, bathroom and separate W.C. Externally there are gardens to front, side and rear. Detached garage and driveway. We strongly advise a viewing. Awaiting EPC.
To arrange please call Acomb Branch on tel:

Auction Disclaimer

This property is for sale by the Modern Method of Auction which is not to be confused with Traditional auction. The Modern Method of Auction is a flexible buyer friendly method of purchase. We do not require the purchaser to exchange contracts immediately, but grant 28 days to achieve exchange of contracts from the date the buyers solicitor is in receipt of the draft contracts and a further 28 days thereafter to complete. Allowing the additional time to exchange on the property means interested parties can proceed with traditional residential finance. Upon close of a successful auction or if the vendor accepts an offer during the auction, the buyer will be required to put down a non-refundable Reservation Fee of 3.5% subject to a minimum of £5000 plus VAT which secures the transaction and takes the property off the market. The buyer will be required to sign an Acknowledgment of Reservation form to confirm acceptance of terms prior to solicitors being instructed. Copies of the Reservation form and all terms and conditions can be found in the Legal Pack which can be downloaded for free from the auction section of our website or requested from our Auction Department. Please note this property is subject to an undisclosed Reserve Price which is generally no more than 10% in excess of the Starting Bid. Both the Starting Bid and Reserve Price can be subject to change. Terms and conditions apply to the Modern Method of Auction, which is operated by Reeds Rains Property Auctions powered by iam-sold Ltd.

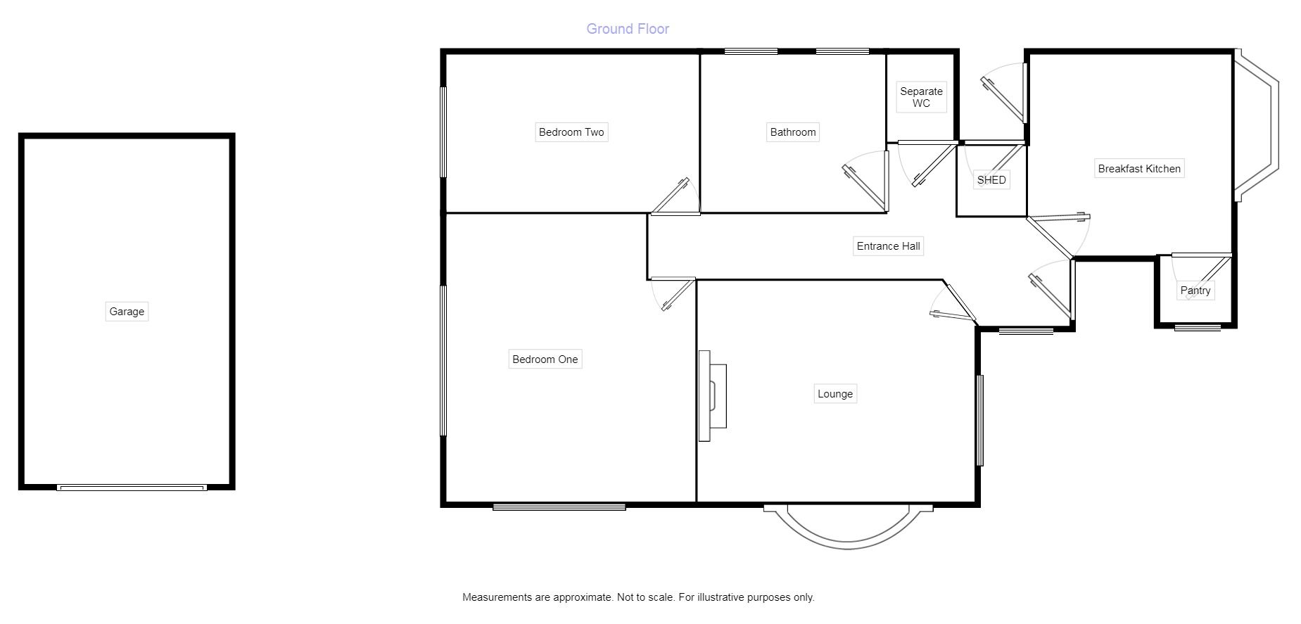
Entrance Hall

Entrance hall, wall heater, loft hatch and double glazed window to the side.

Lounge (5.00m x 4.88m)

With double glazed bay window to the side, double glazed window to the front, gas fire with surround and wall heater.

Breakfast Kitchen (3.84m x 3.23m)

With base units work surface over, built in pantry, double glazed bay window to the front and door to rear porch.

Hallway

Bathroom (2.96m x 2.23m)

Coloured suite comprising of panelled bath, pedestal wash hand basin, part tiled walls, airing cupboard and two double glazed windows to the side.

Separate WC

With low flush w.C and double glazed window to the side.

Bedroom 1 (4.39m x 3.72m)

With double glazed windows to the side and rear and wall heater.

Bedroom 2 (4.39m x 3.23m)

With double glazed window to the rear.

Gardens

Gardens to the front side and rear mainly laid to lawn with established borders and trees.

Detached Garage (2.83m x 4.72m)

With power and lighting, door and window to the side.

Driveway

With gated access providing off street parking.

Important note to purchasers:

We endeavour to make our sales particulars accurate and reliable, however, they do not constitute or form part of an offer or any contract and none is to be relied upon as statements of representation or fact. Any services, systems and appliances listed in this specification have not been tested by us and no guarantee as to their operating ability or efficiency is given. All measurements have been taken as a guide to prospective buyers only, and are not precise. Please be advised that some of the particulars may be awaiting vendor approval. If you require clarification or further information on any points, please contact us, especially if you are traveling some distance to view. Fixtures and fittings other than those mentioned are to be agreed with the seller.

/8

Floor Plans

Property Location

Marketed by Reeds Rains



By submitting this form, you accept our Terms of Use.

Disclaimer Property descriptions and related information displayed on this page are marketing materials provided by Reeds Rains. estateagents365.uk does not warrant or accept any responsibility for the accuracy or completeness of the property descriptions or related information provided here and they do not constitute property particulars. Please contact Reeds Rains for full details and further information.