Bungalow for sale in Maidstone ME14, 4 Bedroom

Maidstone, Maidstone, UK

Quick Summary

Property Type:
Bungalow
Status:
For sale
Price
£ 475,000
Beds:
4
Baths:
2
Recepts:
1
County
Kent
Town
Maidstone
Outcode
ME14
Location
Downs View Road, Penenden Heath, Maidstone ME14
Marketed By:
YOPA
Posted
2024-04-04
ME14 Rating:





More Info?
Please contact YOPA on 01322 584475 or Request Details

Property Description

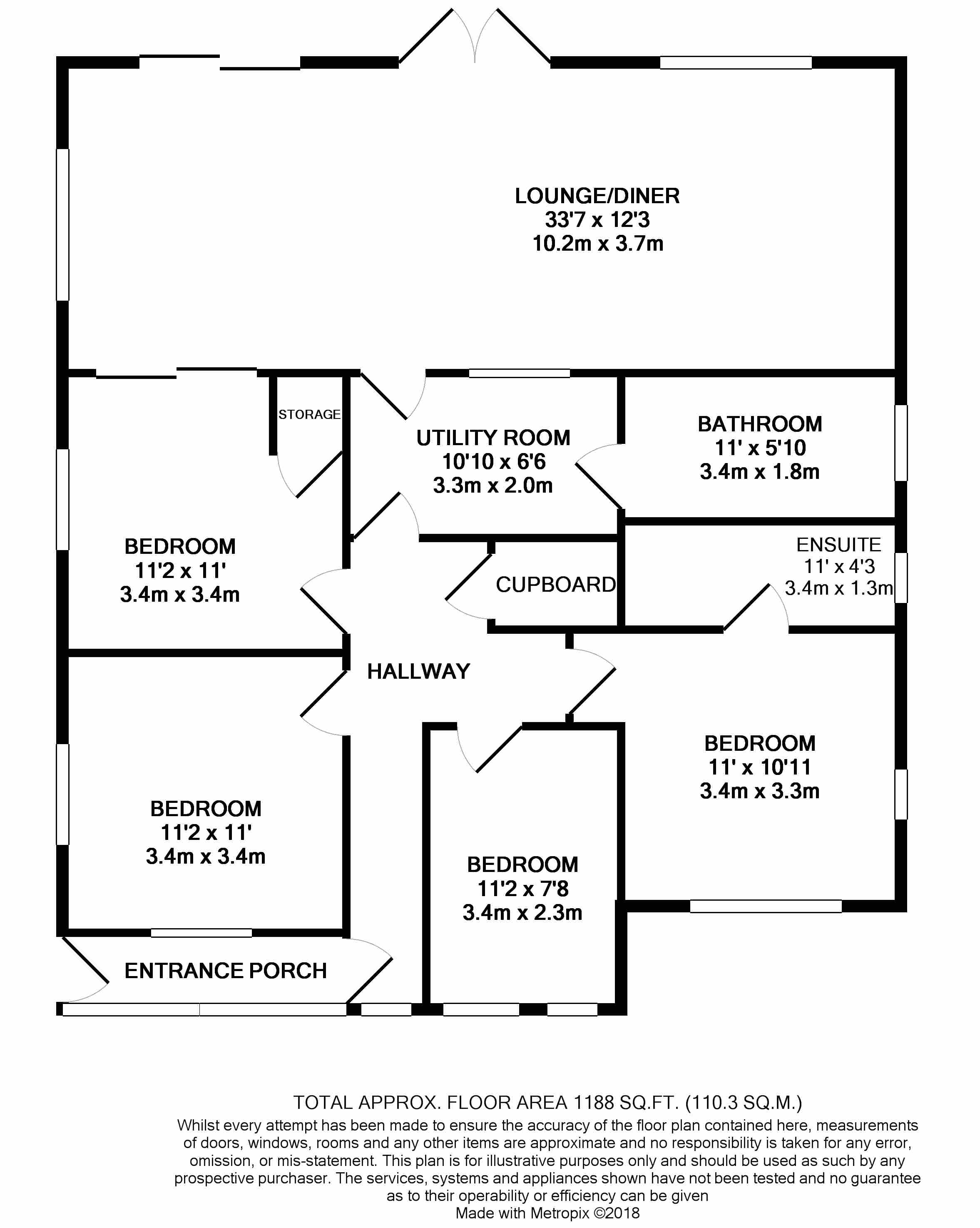
Extended bungalow - Set in the very popular residential area of Penenden Heath, within an short walk of the Sanderling Primary School, this vastly extended detached bungalow offers a great deal of accommodation which includes a large open plan kitchen/dining/family room, four double bedrooms, en-suite shower room, utility area and family bathroom.

The accommodation consists of the entrance porch, large entrance hall, the large bright open plan living space (kitchen/dining room/lounge) that overlooks the rear garden, the modern fitted kitchen section is very well appointed, four bedrooms, en-suite shower room to the master with a modern white suite, the great family bathroom with its white suite and the four bedrooms.

Externally there is a good size front garden, side access, driveway for several cars and the very large rear garden which is divided into a decked and patio area at the rear of the property and lower lawned area to the rear of the plot and a selection of fruit trees (apple, cherry and plum).

Other benefits of this great property include integrated and built-in appliances in the kitchen, double glazing, gas fired central heating and built in storage cupboards.

The local area provides a selection of shops, cafe, pubs and parks/green spaces, whilst nearby Maidstone town centre provides a vast selection of cafes, restaurants, riverside walks, shopping and all the services you would expect from a major town. There are four primary schools within approximately a mile with three rated 'Good' and one rated as 'Outstanding' by Ofsted as are the four very popular Maidstone Grammar schools.

Communication links are provided by the nearby M20/A20 for links to London and the coast, or the A229 for links to the Medway areas and south into the Weald of Kent and the villages. Rail connections are provided by the Maidstone stations, or Bearsted station, with their regular services to London.

Contact yopa today to arrange your viewing of this great property today.

EPC band: E

Floor Plans

Property Location

Marketed by YOPA


By submitting this form, you accept our Terms of Use.

Disclaimer Property descriptions and related information displayed on this page are marketing materials provided by YOPA. estateagents365.uk does not warrant or accept any responsibility for the accuracy or completeness of the property descriptions or related information provided here and they do not constitute property particulars. Please contact YOPA for full details and further information.