Town house to rent in Watford WD18, 3 Bedroom

Watford, Watford, UK

Quick Summary

Property Type:
Town house
Status:
To rent
Price
£ 391
Beds:
3
Baths:
2
County
Hertfordshire
Town
Watford
Outcode
WD18
Location
Gate House Place, 25 27 Rickmansworth Road, Watford, Hertfordshire WD18
Marketed By:
Gibbs Gillespie - Rickmansworth
Posted
2024-04-28
WD18 Rating:





More Info?
Please contact Gibbs Gillespie - Rickmansworth on 01923 728358 or Request Details

Property Description

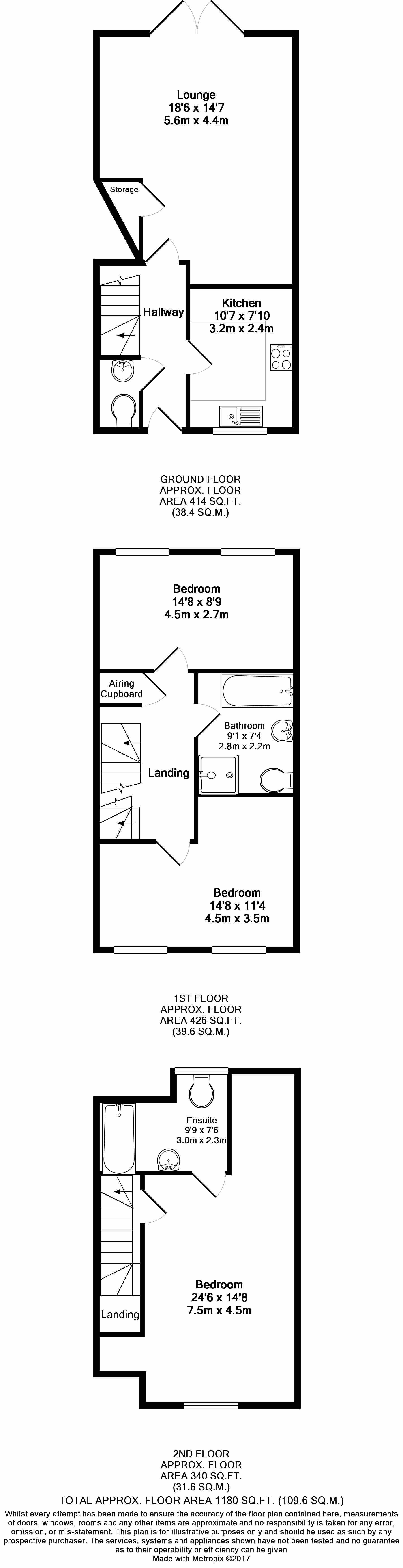
Built to exacting standards and cleverly designed to optimise space and natural light throughout this extremely spacious and rarely available three bedroom, two bath, town house is brought to the market in a superb condition.

The spacious accommodation comprises of entrance hallway, downstairs WC, kitchen with appliances and living room with patio doors leading to private garden. To the first floor, there are two double bedrooms along with family bathroom and to the second floor is the master bedroom with en suite shower room.

The property is located on Rickmansworth Road in the heart of Watford, within minutes of Watford station (metropolitan line) and its shopping parades, and is also conveniently situated for a number of local Schools.

Further Details

Local authority: Watford Borough Council
Council tax: GBP2020 per year (Band E)

Floor Plans

Property Location

Marketed by Gibbs Gillespie - Rickmansworth


By submitting this form, you accept our Terms of Use.

Disclaimer Property descriptions and related information displayed on this page are marketing materials provided by Gibbs Gillespie - Rickmansworth. estateagents365.uk does not warrant or accept any responsibility for the accuracy or completeness of the property descriptions or related information provided here and they do not constitute property particulars. Please contact Gibbs Gillespie - Rickmansworth for full details and further information.