Town house to rent in Derby DE22, 3 Bedroom

Derby, Derby, UK

Quick Summary

Property Type:
Town house
Status:
To rent
Price
£ 185
Beds:
3
Baths:
2
Recepts:
2
County
Derbyshire
Town
Derby
Outcode
DE22
Location
Jay Court, Derby DE22
Marketed By:
Purplebricks, Head Office
Posted
2024-03-31
DE22 Rating:





More Info?
Please contact Purplebricks, Head Office on 024 7511 8873 or Request Details

Property Description

** available 10th June 2019 **

This modern and spacious fully furnished three/four bedroom three storey town house with garage and enclosed rear garden. The property is well suited for families or professional sharers, within walking distance of the city centre and close to the local shops, schools and amenities.

The property briefly comprises of entrance hall with downstairs WC & storage cupboards, study/bedroom, utility room, spacious lounge, kitchen diner, three double bedrooms, bathroom, en suite shower room, integral single garage, rear garden, and off road parking to the front. The property benefits double glazing and gas central heating.

Sorry no pets or DSS

**To book a viewing on this property 24/7 please click the brochure button below**

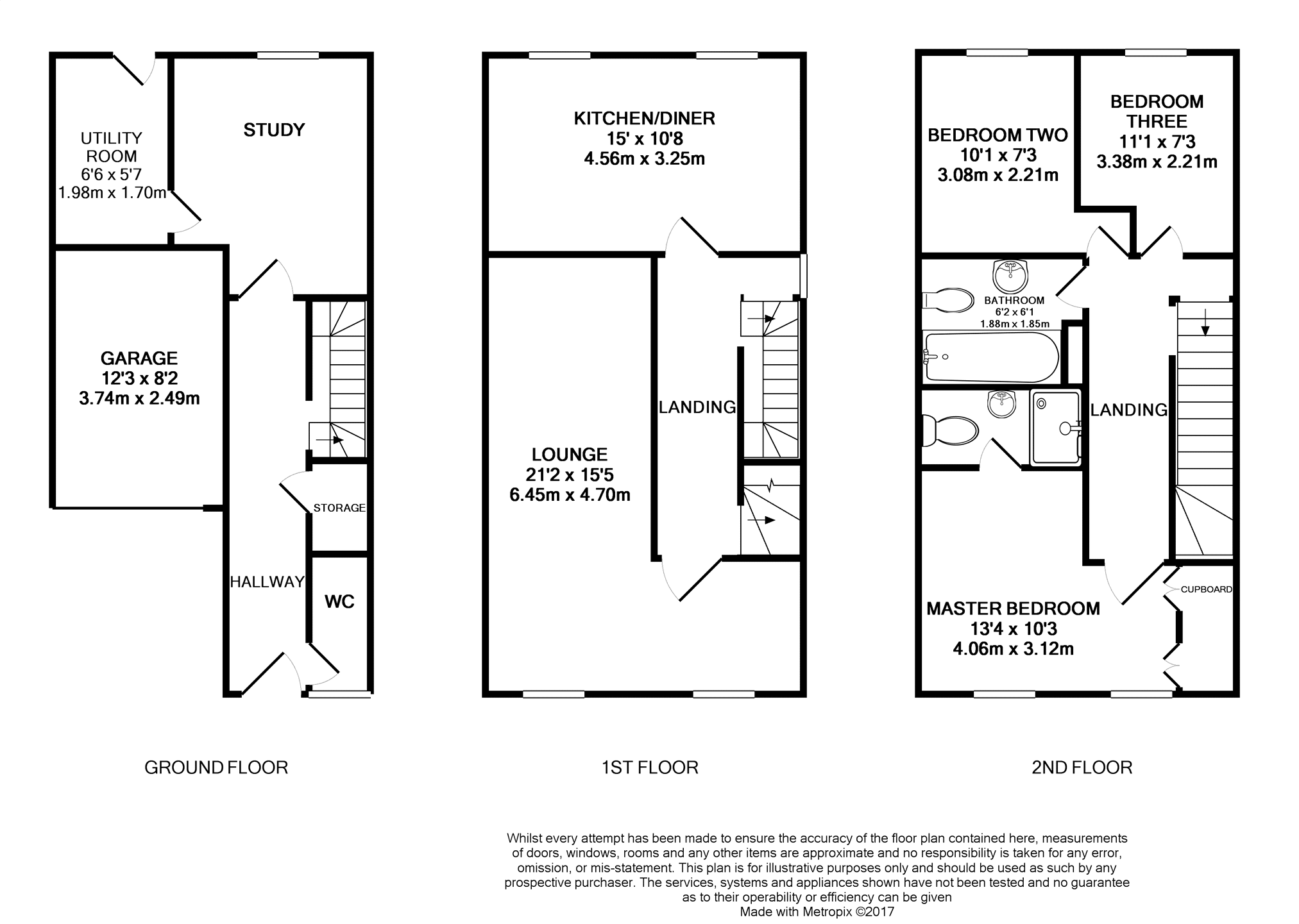
Entrance Hallway

With laminate flooring, two storage cupboards and downstairs w/c

Downstairs Cloakroom

With vinyl flooring, hand basin and wc

Bedroom Four / Study

10'08'' x 09'05'' ground floor room with laminate flooring having a number of uses including a fourth bedroom or study.

Utility Room

06'05'' x 05'07'' on the ground floor with tiled flooring, fitted units, stainless steel sink unit and washing machine.

Lounge

21'02'' x 15'04''(at widest points) L shaped spacious first floor lounge with laminate flooring.

Kitchen / Diner

Spacious modern dining kitchen 15'04'' x 10'08'' to the first floor with tiled flooring, fitted units, inbuilt electric oven, gas hob, fridge freezer and dishwasher.

Master Bedroom

Top floor 13'03'' x 10'03'' with laminate flooring, two sets of double inbuilt wardrobes and en-suite shower room.

En-Suite Shower Room

To the master bedroom with vinyl flooring, hand basin, wc and double sized shower enclosure wit thermostatic shower.

Bedroom Three

Top floor third double bedroom 11'00 x 07'03'' with laminate flooring.

Bedroom Two

Top floor double bedroom 10'11'' x 09'02 at widest points with laminate flooring.

Bathroom

Top floor modern fitted bathroom with bath, hand basin, wc and mixer shower.

Garage

Single integral garage with up and over door.

Parking

Off road parking to the front of the property

Gardens

Low maintenance small lawned gardens to the front. Enclosed low maintenance rear garden with patio and lawn.

General Information

Available now


Fully furnished

fgch

double glazed


Council tax band C

Floor Plans

Property Location

Marketed by Purplebricks, Head Office



By submitting this form, you accept our Terms of Use.

Disclaimer Property descriptions and related information displayed on this page are marketing materials provided by Purplebricks, Head Office. estateagents365.uk does not warrant or accept any responsibility for the accuracy or completeness of the property descriptions or related information provided here and they do not constitute property particulars. Please contact Purplebricks, Head Office for full details and further information.