Town house to rent in Chichester PO19, 3 Bedroom

Chichester, Chichester, UK

Quick Summary

Property Type:
Town house
Status:
To rent
Price
£ 231
Beds:
3
Baths:
2
Recepts:
1
County
West Sussex
Town
Chichester
Outcode
PO19
Location
Harvester Close, Chichester PO19
Marketed By:
King & Chasemore - Chichester Lettings
Posted
2018-12-19
PO19 Rating:





More Info?
Please contact King & Chasemore - Chichester Lettings on 01243 273733 or Request Details

Property Description

This is a well presented three bedroom townhouse with garage which has recently been renovated throughout and is within walking distance to the city centre and hospital. Offered unfurnished and available late February

This three bedroom townhouse has recently been completely renovated from top to bottom with new carpets, a new kitchen and repainted throughout.

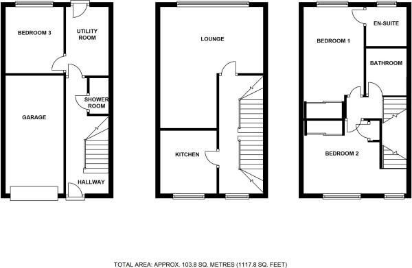
On the ground floor you will find the third bedroom and utility room with access to the garden.

On the first floor is the lounge which is a spacious room with neutral decor and laminated wood flooring.

The brand new kitchen is fitted with cream wall and base units, an integrated dishwasher, gas hob and electric oven with a stainless steel extractor fan over.

You will find the master bedroom with ensuite shower room, the second double bedroom and the family bathroom on the top floor.

To the rear there is a low maintenance fully enclosed garden with a shed and a gate to provide access to the front.

There is an integral garage and two off road parking spaces to the front.

This property is offered unfurnished and is available late February

Floor Plans

Property Location

Marketed by King & Chasemore - Chichester Lettings


By submitting this form, you accept our Terms of Use.

Disclaimer Property descriptions and related information displayed on this page are marketing materials provided by King & Chasemore - Chichester Lettings. estateagents365.uk does not warrant or accept any responsibility for the accuracy or completeness of the property descriptions or related information provided here and they do not constitute property particulars. Please contact King & Chasemore - Chichester Lettings for full details and further information.