Town house for sale in Bexhill-on-Sea TN40, 3 Bedroom

Bexhill-on-Sea, Bexhill-on-Sea, UK

Quick Summary

Property Type:
Town house
Status:
For sale
Price
£ 250,000
Beds:
3
County
East Sussex
Town
Bexhill-on-Sea
Outcode
TN40
Location
Amanda Close, Bexhill-On-Sea, East Sussex TN40
Marketed By:
New Foundations
Posted
2024-04-01
TN40 Rating:





More Info?
Please contact New Foundations on 01424 317924 or Request Details

Property Description

A modern well presented 3 bedroom town house situated in a quiet close. Enjoying a southerly facing rear garden and good sized integral garage, other benefits include, separate Wc, kitchen/diner and off road parking for 2 cars. EPC Rating - D



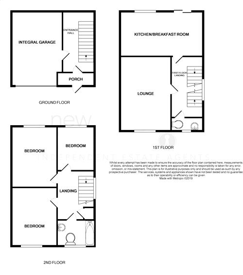
Entrance Hall
Double glazed front door leading to entrance porch with further glazed door leading to entrance hall with radiator, under stairs recess giving space for computer table or desk, personal door leading to garage.

Landing
Stairs rising from ground floor entrance hall to first floor landing with radiator, double glazed window with outlook to side, door to cloakroom.

Cloakroom
With low-level WC, wash hand basin, frosted glass double glazed window.

Sitting Room
16' 10" x 11' 3" (5.13m x 3.43m) With feature fireplace with electric fire, radiator, TV aerial point, double glazed window with outlook to front overlooking farmland.

Kitchen/Dining Room
18' 2" x 8' 6" (5.54m x 2.59m) Single drainer stainless steel sink unit with mixer tap and cupboards under, further range of cupboards and drawers with working surfaces over, range of matching wall mounted cupboards, part tiling to walls, built in electric oven with cupboards above and below, four ring ceramic hob with concealed extractor fan, space for dishwasher and washing machine, part tiling to walls, double glazed window with outlook to rear. Dining area with additional radiator, space for table, double glazed sliding patio doors leading onto rear garden.

Second Floor Landing
Stairs rising from first floor landing to 2nd floor landing with double glazed window, door to airing cupboard with shelving, built in storage cupboard with shelving.

Bedroom 1
13' 1" x 10' 1" (3.99m x 3.07m) With TV aerial point, radiator, double glazed window with outlook to front having farmland views.

Bedroom 2
12' 6" x 10' 1" (3.81m x 3.07m) With radiator, double glazed window with outlook to rear.

Bedroom 3
9' 2" x 7' 11" (2.79m x 2.41m) With radiator, double glazed window with outlook to the rear.

Bathroom
With white suite comprising; panelled bath with shower over, pedestal wash hand basin, low-level WC, radiator, shaver point, double glazed frosted glass window.

Outside
The rear garden faces in southerly direction and measures approximately 26' in length with patio, outside tap, outside power point, two fishponds, flower and shrub borders, outside lighting, access to a gate down the side of the property to the front. To the front of the property, there is an area of front garden and off-road parking for two vehicles.

Garage
17' 3" x 9' 5" extending to 11' 8" (5.26m x 2.87m) With power and light accessed via metal up and over door


Floor Plans

Property Location

Marketed by New Foundations



By submitting this form, you accept our Terms of Use.

Disclaimer Property descriptions and related information displayed on this page are marketing materials provided by New Foundations. estateagents365.uk does not warrant or accept any responsibility for the accuracy or completeness of the property descriptions or related information provided here and they do not constitute property particulars. Please contact New Foundations for full details and further information.