Town house for sale in Ashford TN24, 5 Bedroom

Ashford, Ashford, UK

Quick Summary

Property Type:
Town house
Status:
For sale
Price
£ 325,000
Beds:
5
County
Kent
Town
Ashford
Outcode
TN24
Location
Riverbank Way, Ashford TN24
Marketed By:
Hunters - Ashford
Posted
2024-04-01
TN24 Rating:





More Info?
Please contact Hunters - Ashford on 01233 238769 or Request Details

Property Description

Guide Price £325,000 - £350,000.

A well presented Five bedroom town house offering great living space and situated in the sought after location of Willesborough with good commuter links to the M20 and main railway station. Offered for sale Chain Free!

This family home has been substantially improved over the last two years with no expense spared, the kitchen which is located on the ground floor has been extended into the old study to give a spacious kitchen/diner, all units have been replaced and now kitchen comes with fitted double fridge, double freezer, washing machine, dishwasher and water softener. The kitchen also comes complete with large Range cooker and 6 seater breakfast bar. The garden has undergone a lot of work, which involves a complete excavation to make the garden on two levels instead of a hill. New doors and windows installed in 2017, which will still be under warranty, new boiler installed in 2018 that still carries a warranty.

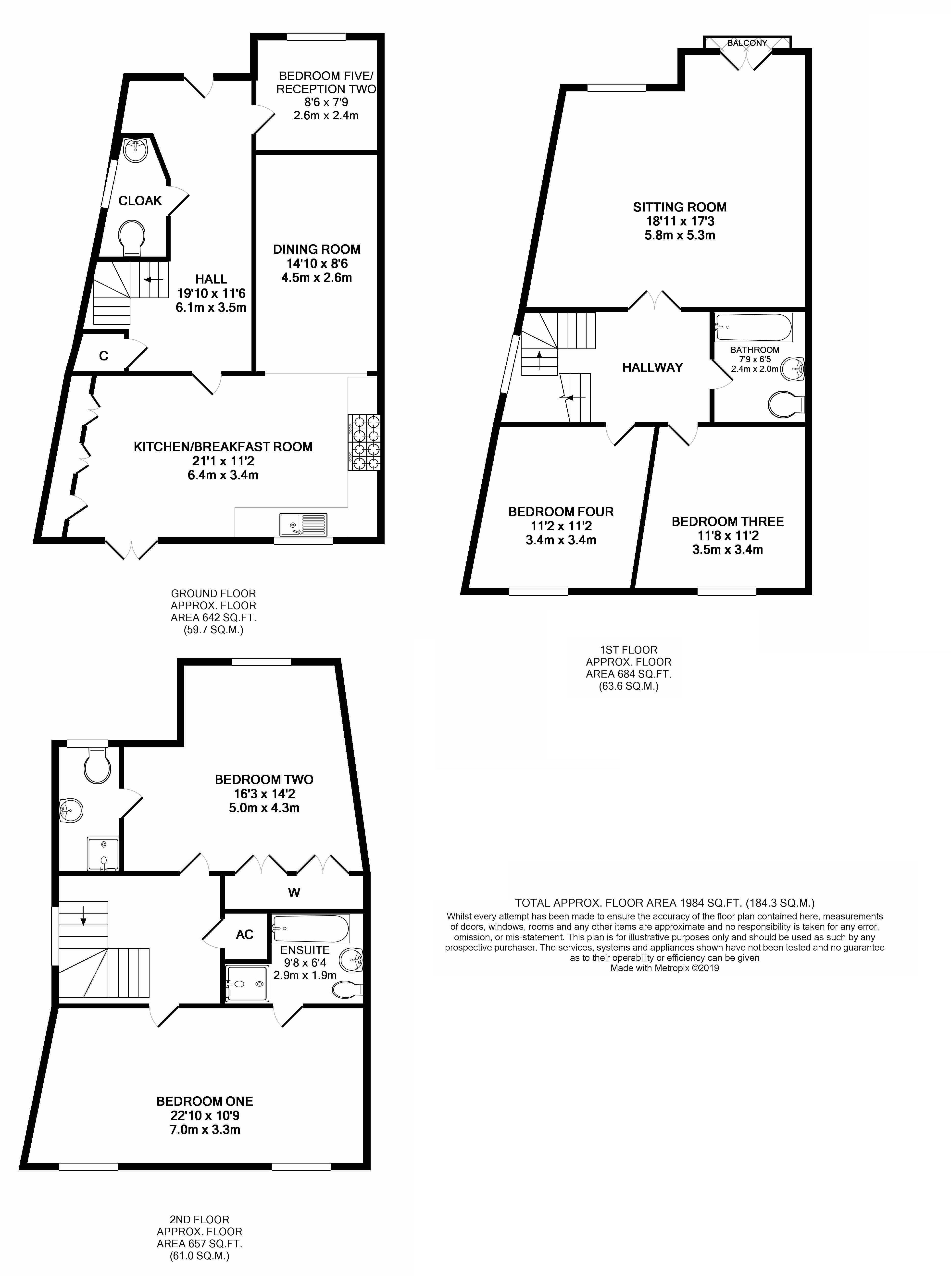
To the ground floor you will find a large spacious hallway with access to bedroom 5 / study, downstairs W/C, good storage facilities and the large kitchen/diner. To the first floor is where the large family lounge is located, family bathroom and two double bedrooms and a spacious hallway. To the top floor you will find two very large double bedrooms both with fitted wardrobes and en-suites.

Externally the property offers a tiered rear garden which since the renovation offers a good space for entertaining or for the children to play also has lighting and water, at the bottom of the rear garden you will see the detached garage which has electric and there is also two allocated parking bays plus the option to park in front of the garage. To the front of the property there is a green area, which is shared which offers amazing views across the countryside which cannot be built on.

This home is a fantastic opportunity for having a taste of rural life with walks along the river, yet being within close reach of the Town Centre, International Railway Station and close to good schools. Willesborough is close to Junction 10 of the M20 and the William Harvey Hospital where they have an Accident and Emergency department, various clinics and a brand new labour ward. Ashford International Train Station proudly operates the High Speed Rail link which can take you to Ebbsfleet International, Stratford International and London St Pancras in just 37 minutes. Eurostar also runs from Ashford International so the continent is closer than you think with regular trains to Paris, Lille, Brussels, Calais and not forgetting the popular Disneyland Paris. With a blend of character and modern, Willesborough is popular with professionals and families for its commuter links, location and schools all within arms reach.

Floor Plans

Property Location

Marketed by Hunters - Ashford



By submitting this form, you accept our Terms of Use.

Disclaimer Property descriptions and related information displayed on this page are marketing materials provided by Hunters - Ashford. estateagents365.uk does not warrant or accept any responsibility for the accuracy or completeness of the property descriptions or related information provided here and they do not constitute property particulars. Please contact Hunters - Ashford for full details and further information.