Property to rent in Woking GU22, 3 Bedroom

Woking, Woking, UK

Quick Summary

Property Type:
Property
Status:
To rent
Price
£ 391
Beds:
3
Baths:
2
Recepts:
1
County
Surrey
Town
Woking
Outcode
GU22
Location
Saunders Lane, Hook Heath, Woking GU22
Marketed By:
Hockerings Estate Agents
Posted
2018-12-14
GU22 Rating:





More Info?
Please contact Hockerings Estate Agents on 01483 491034 or Request Details

Property Description

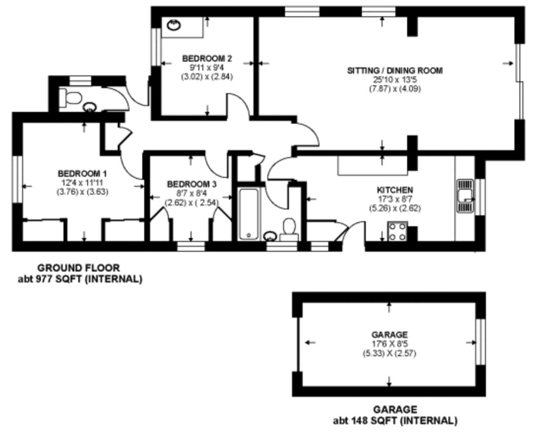
A well presented 3 Bedroom bungalow situated in Hook Heath. The property is in a semi-rural location just over 2 miles from Woking town center and mainline train station. The property consists of 3 well proportioned light and airy bedrooms, an extended main living area with doors onto the larger garden, spacious kitchen, modern bathroom and a separate WC. The property is double glazed with gas central heating. The drive way can accommodate 2/3 cars.

Floor Plans

Property Location

Marketed by Hockerings Estate Agents


By submitting this form, you accept our Terms of Use.

Disclaimer Property descriptions and related information displayed on this page are marketing materials provided by Hockerings Estate Agents. estateagents365.uk does not warrant or accept any responsibility for the accuracy or completeness of the property descriptions or related information provided here and they do not constitute property particulars. Please contact Hockerings Estate Agents for full details and further information.