Property to rent in Warrington WA4, 0 Bedroom

Warrington, Warrington, UK

Quick Summary

Property Type:
Property
Status:
To rent
Price
£ 156
Beds:
0
County
Cheshire
Town
Warrington
Outcode
WA4
Location
Grappenhall Lane, Appleton, Warrington WA4
Marketed By:
James Peacock Property
Posted
2024-04-07
WA4 Rating:





More Info?
Please contact James Peacock Property on 01925 903870 or Request Details

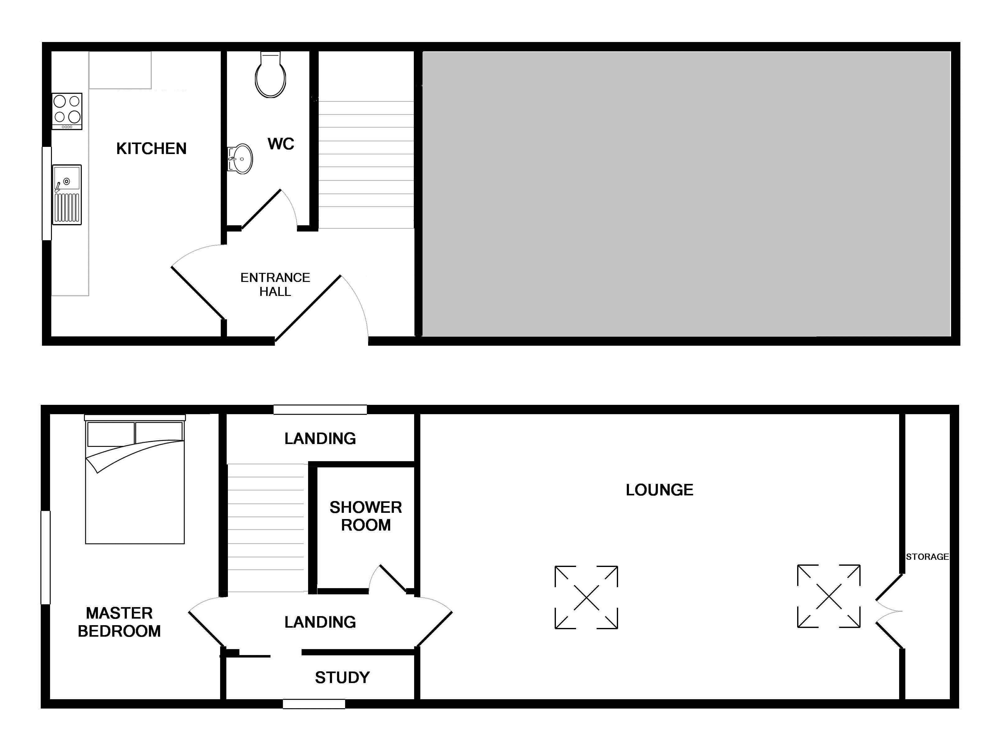
Property Description

A spacious furnished annex flat in the beautiful village location of Appleton Thorn. The property with its own private entrance and parking for 2 cars is set within the grounds of Karnak Bungalow. The property has a fitted kitchen with appliances, downstairs cloakroom, stairs leading up to exceptionally large Lounge with beautiful velux windows and plenty of storage . There is a double bedroom, a smaller 2nd room which can be used as an office. And a separate shower room. The property also has access to a small courtyard. The property is warmed by GCH and electric, water and gas are all included in the rent. Available now

Floor Plans

Property Location

Marketed by James Peacock Property


By submitting this form, you accept our Terms of Use.

Disclaimer Property descriptions and related information displayed on this page are marketing materials provided by James Peacock Property. estateagents365.uk does not warrant or accept any responsibility for the accuracy or completeness of the property descriptions or related information provided here and they do not constitute property particulars. Please contact James Peacock Property for full details and further information.