Property to rent in Romford RM2, 1 Bedroom

Romford, Romford, UK

Quick Summary

Property Type:
Property
Status:
To rent
Price
£ 150
Beds:
1
Baths:
2
Recepts:
2
County
Essex
Town
Romford
Outcode
RM2
Location
Heath Park Road, Heath Park, Romford RM2
Marketed By:
Ideal Locations
Posted
2018-12-24
RM2 Rating:





More Info?
Please contact Ideal Locations on 020 8166 7411 or Request Details

Property Description



Ideal locations are proud to offer to the market this fully furnished, newly refurbished house to be used as a house-share . There is a choice of 3 rooms available ranging from between £500 to £700 pcm.

This extended house is well set back from the road with carriage style driveway, a well-maintained garden and is close to Gidea Park train station. The accommodation is set over two floors incorporating a spacious lounge, a newly fitted, stylish kitchen / diner and three bathrooms.

All bills and wifi are included in the rent:

Gas

Water

Electricity

TV licence

Council tax

free super fast internet

Don't miss out, call now to avoid disappointment!

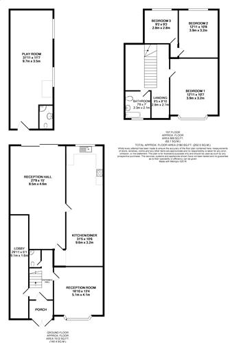
Floor Plans

Property Location

Marketed by Ideal Locations


By submitting this form, you accept our Terms of Use.

Disclaimer Property descriptions and related information displayed on this page are marketing materials provided by Ideal Locations. estateagents365.uk does not warrant or accept any responsibility for the accuracy or completeness of the property descriptions or related information provided here and they do not constitute property particulars. Please contact Ideal Locations for full details and further information.