Property to rent in Edenbridge TN8, 0 Bedroom

Edenbridge, Edenbridge, UK

Quick Summary

Property Type:
Property
Status:
To rent
Price
£ 481
Beds:
0
County
Kent
Town
Edenbridge
Outcode
TN8
Location
High Street, Edenbridge TN8
Marketed By:
Le Grys
Posted
2024-04-01
TN8 Rating:





More Info?
Please contact Le Grys on 01892 310000 or Request Details

Property Description

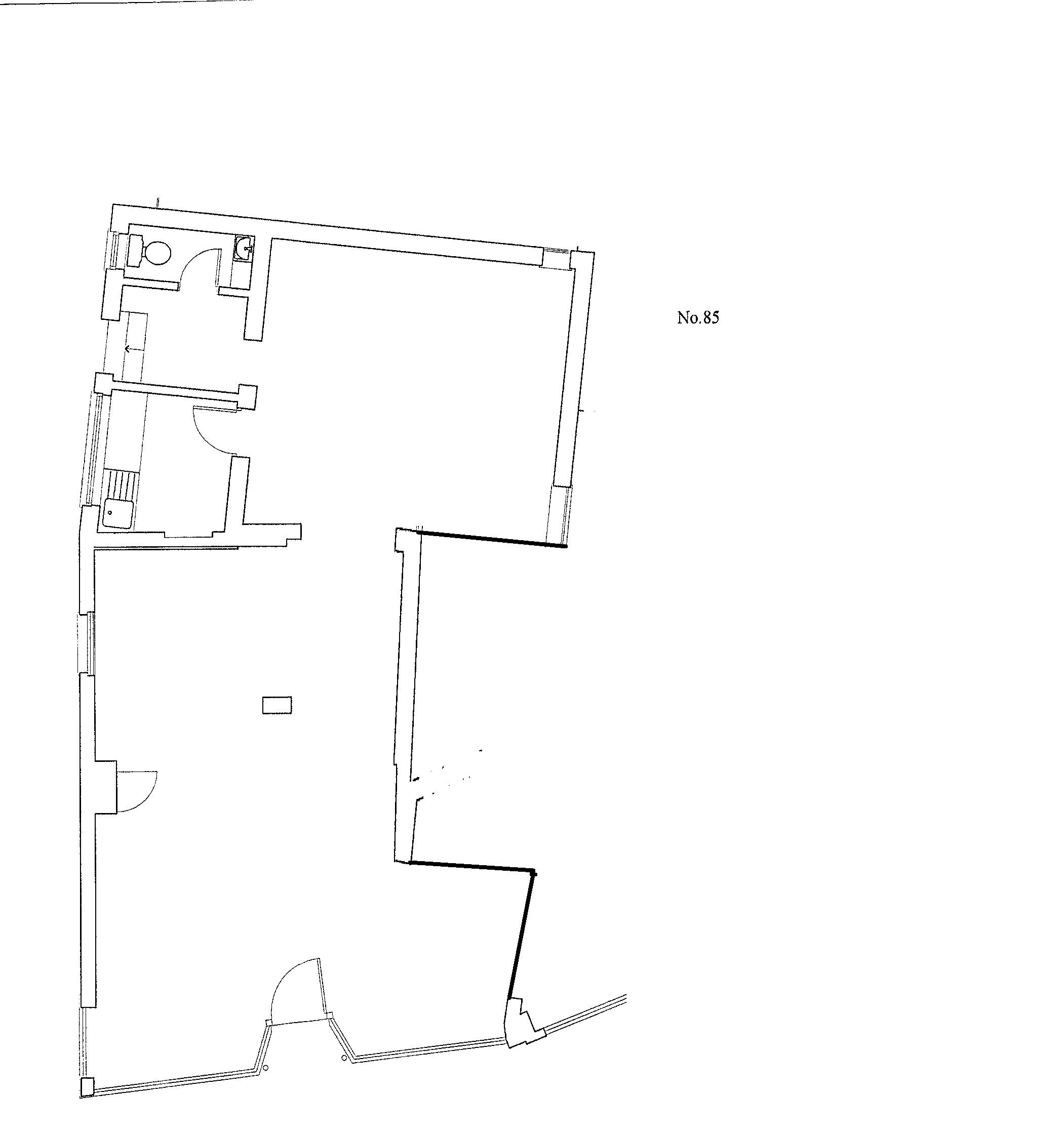
An open plan ground floor shop, office and storage area with a kitchenette and WC. Total floor area is 824 sq. Ft. Located in the centre of Edenbridge’s busy high street, close to national retailers including Waitrose, Tesco, Boots, Lloyds bank as well as a number of independent operators.

High Street presence, ground floor retail unit. Floor Area: 269 to let


Central high street location

car park nearby

close to waitrose

new lease available


The property is located at the picturesque southern end of Edenbridge High Street, high foot fall and close to the main local shops and Waitrose. The ground floor consists of an open plan shop and office. Kitchenette and separate WC.

Available on a new lease for a term to be agreed, subject to satisfactory references.

Payable quarterly in advance by standing order.

All enquiries regarding business rates to Sevenoaks District Council on , Point of reference .

Legal costs: Each party to be responsible for their own legal and professional costs.

Edenbridge is serviced by two railway stations providing routes to London Victoria, London Bridge, Clapham Junction, Tonbridge, Redhill and subsequently Reading and Gatwick Airport. The M25 can be accessed from either Junction 5 at Sevenoaks (appx 9 miles) Junction 6 at Godstone (appx 10 miles). Gatwick Airport is approximately 15 miles drive.

Miles to: Oxted 8, Sevenoaks 12, Tunbridge Wells 13, East Grinstead 10.

Viewing strictly through the sole agents LeGrys Independent Estate Agents.

Floor Plans

Property Location

Marketed by Le Grys


By submitting this form, you accept our Terms of Use.

Disclaimer Property descriptions and related information displayed on this page are marketing materials provided by Le Grys. estateagents365.uk does not warrant or accept any responsibility for the accuracy or completeness of the property descriptions or related information provided here and they do not constitute property particulars. Please contact Le Grys for full details and further information.