Property to rent in Cheadle SK8, 4 Bedroom

Cheadle, Cheadle, UK

Quick Summary

Property Type:
Property
Status:
To rent
Price
£ 415
Beds:
4
Baths:
2
Recepts:
2
County
Greater Manchester
Town
Cheadle
Outcode
SK8
Location
Hulme Hall Road, Cheadle Hulme, Cheadle SK8
Marketed By:
Reeds Rains
Posted
2018-12-09
SK8 Rating:





More Info?
Please contact Reeds Rains on 0161 219 8512 or Request Details

Property Description



* available from 17th October * simply stunning * barn conversion * three/four bedrooms * detached garage * off road parking * catchment of outstanding schools *

You need to come and see this fantastic conversion. The property has been modernised through out and offers great living space.

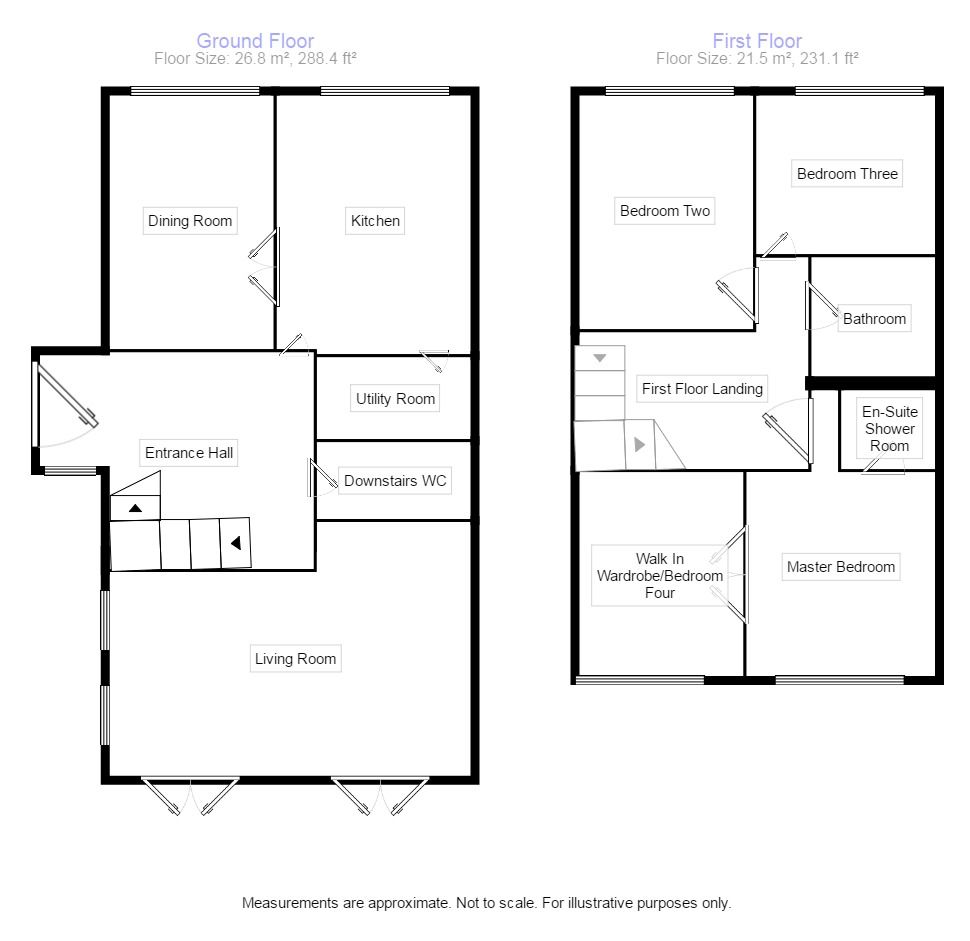
On Entering the property there is an Entrance Hall, Cloakroom/Store room, Downstairs WC, Dining Room, Kitchen, Utility room and a spacious living room. To the first floor there are Three bedrooms one with an en-suite and a dressing room which could be used as a four bedroom, and a family bathroom.
Externally there is an enclosed garden to the rear and a detached garage. There is also off road parking to the rear of the property.

Entrance Hall

Welcoming entrance hall with Double glazed window to the side, ceiling light and a Radiator. Give access to all ground floor accomodation.

Cloakroom

Ceiling Light.

Downstairs WC

WC. Wash hand basin. Ceiling Light. Radiator.

Dining Room (3.28m x 3.20m)

Double glazed window. Ceiling Light. Radiator. Double doors leading to the kitchen.

Kitchen

Fitted with a range of wall and base units with a granite work surface over. Sink drainer. Smeg range cooker with 5 piece hob. Dishwasher. Fridge. Ceiling Lights. Radiator. Access to Utility.

Utility Room (1.14m x 2.03m)

Wall abd base units with a work top over. Washing Machine and freezer. Ceiling light.

Living Room (4.57m x 5.38m)

Spacious living room with two patio doors to the rear. Two double glazed window to the side. Radiator. Wall and Ceiling Lights.

First Floor Landing

Master Bedroom (4.98m x 3.20m)

Double glazed window. Ceiling light. Radiator.

En-Suite Shower Room (1.75m x 2.29m)

Walk in shower. Wash hand basin. WC. Tiled flooring. Towel rail.

Bedroom 2 (4.6m x 3.2m)

Double glazed window. Ceiling light. Radiator.

Bedroom 3 (2.3m x 3.4m)

Double glazed window. Ceiling light. Radiator.

Walk In Wardrobe / Bedroom 4 (3.99m x 2.24m)

Double glazed window. Ceiling light. Radiator. Double door to Master bedroom

Bathroom (2.24m x 2.34m)

Bath with a shower over. Wash hand basin. WC. Tiled floor and part walls. Sky light. Lighting.

External

Externally there is an enclosed garden to the rear and a detached garage. There is also off road parking to the rear of the property.

Garage

/8

Floor Plans

Property Location

Marketed by Reeds Rains



By submitting this form, you accept our Terms of Use.

Disclaimer Property descriptions and related information displayed on this page are marketing materials provided by Reeds Rains. estateagents365.uk does not warrant or accept any responsibility for the accuracy or completeness of the property descriptions or related information provided here and they do not constitute property particulars. Please contact Reeds Rains for full details and further information.