Terraced house to rent in Rochford SS4, 3 Bedroom

Rochford, Rochford, UK

Quick Summary

Property Type:
Terraced house
Status:
To rent
Price
£ 265
Beds:
3
Baths:
2
Recepts:
2
County
Essex
Town
Rochford
Outcode
SS4
Location
Bobbing Close, Rochford SS4
Marketed By:
A Casa Estate Agents
Posted
2019-04-28
SS4 Rating:





More Info?
Please contact A Casa Estate Agents on 01702 787836 or Request Details

Property Description



We are pleased to offer this three bedroom end terraced house with large open plan lounge/dining room, ground floor cloakroom. Kitchen, large family bathroom. Easy to maintain rear garden with plenty storage and an out building which would make an ideal office or play room with the added benefit of a garage and off street parking. The property is situated in a quite cul de sac within walking distance of the historic Rochford square with its array of shops, restaurants, post office, pubs and cafes. With local bus stops and Rochford mainline station a short distance away gives you easy access into other towns and central London. Good location for primary schools and within King Edmunds school catchment. Call today to view!

Front

Paved pathway leading to front door with lashed area and mature shrubs, side access to garden

Porch

Off pvc door into porch, wood affect flooring, obscure double glazed window to front aspect, panelled wooden door into

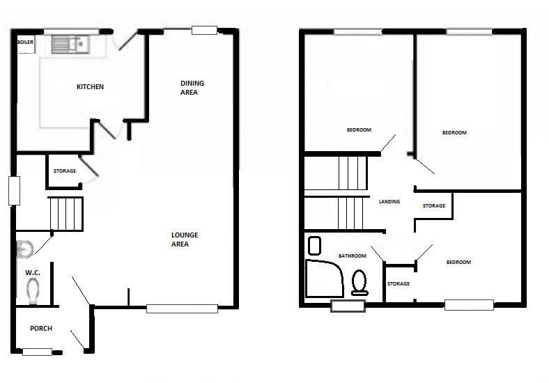
Lounge/Dining Room (15' 7'' x 24' 6'' (4.75m x 7.46m))

Wood affect flooring, double glazed window to front aspect, double glazed patio doors into rear garden, feature ornamental fire place with wood surround, under stairs storage cupboard, stairs to first floor, doors leading

Cloak Room (3' 7'' x 6' 6'' (1.09m x 1.98m))

Tile affect vinyl flooring, vanity wc, wall mounted wash hand basin, radiator, obscure double glazed window to side aspect

Kitchen (11' 5'' x 10' 4'' (3.48m x 3.15m))

Tiled flooring, radiator, floor and wall base wood units with integrated gas hob with extractor above and eye level oven and grill with space for fridge freezer, rolled edge work surface with one and half sink and drainage, potterton boiler (n/t), double glazed window to rear aspect, breakfast bar, double.Glazed door to rear garden

Landing (3' 0'' x 8' 9'' (0.91m x 2.66m))

Carpeted, storage cupboard, loft access, doors leading to

Bedroom Two (9' 9'' x 10' 4'' (2.97m x 3.15m))

Carpeted, radiator, double glazed window to front aspect

Bedroom One (13' 7'' x 9' 7'' (4.14m x 2.92m))

Carpeted, double glazed window to front aspect

Bedroom Three (9' 7'' x 9' 7'' (2.92m x 2.92m))

Wood affect flooring, built in wardrobe, double glazed window to rear aspect

Bathroom (6' 6'' x 7' 0'' (1.98m x 2.13m))

Vinyl flooring, radiator, low level wc, pedestal wash hand basin, large corner seat bath with shower above

Rear Garden (40' 0'' x 25' 0'' (12.18m x 7.61m))

L shape decking area with stairs leading to paved area, side access, tap, with access

Rear Building (15' 0'' x 11' 0'' (4.57m x 3.35m))

Divided into two section, one section storage space

Office/ Second Section (9' 1'' x 7' 8'' (2.77m x 2.34m))

Wood affect flooring, power points, lighting plastered walls, double glazed patio doors

Garage

The is a garage in a block with parking in front for at least two cars, garage has up and over door

Floor Plans

Property Location

Marketed by A Casa Estate Agents



By submitting this form, you accept our Terms of Use.

Disclaimer Property descriptions and related information displayed on this page are marketing materials provided by A Casa Estate Agents. estateagents365.uk does not warrant or accept any responsibility for the accuracy or completeness of the property descriptions or related information provided here and they do not constitute property particulars. Please contact A Casa Estate Agents for full details and further information.