Terraced house to rent in Oxford OX4, 3 Bedroom

Oxford, Oxford, UK

Quick Summary

Property Type:
Terraced house
Status:
To rent
Price
£ 335
Beds:
3
County
Oxfordshire
Town
Oxford
Outcode
OX4
Location
Divinity Road, Oxford OX4
Marketed By:
Finders Keepers - East Oxford
Posted
2018-11-26
OX4 Rating:





More Info?
Please contact Finders Keepers - East Oxford on 01865 680555 or Request Details

Property Description

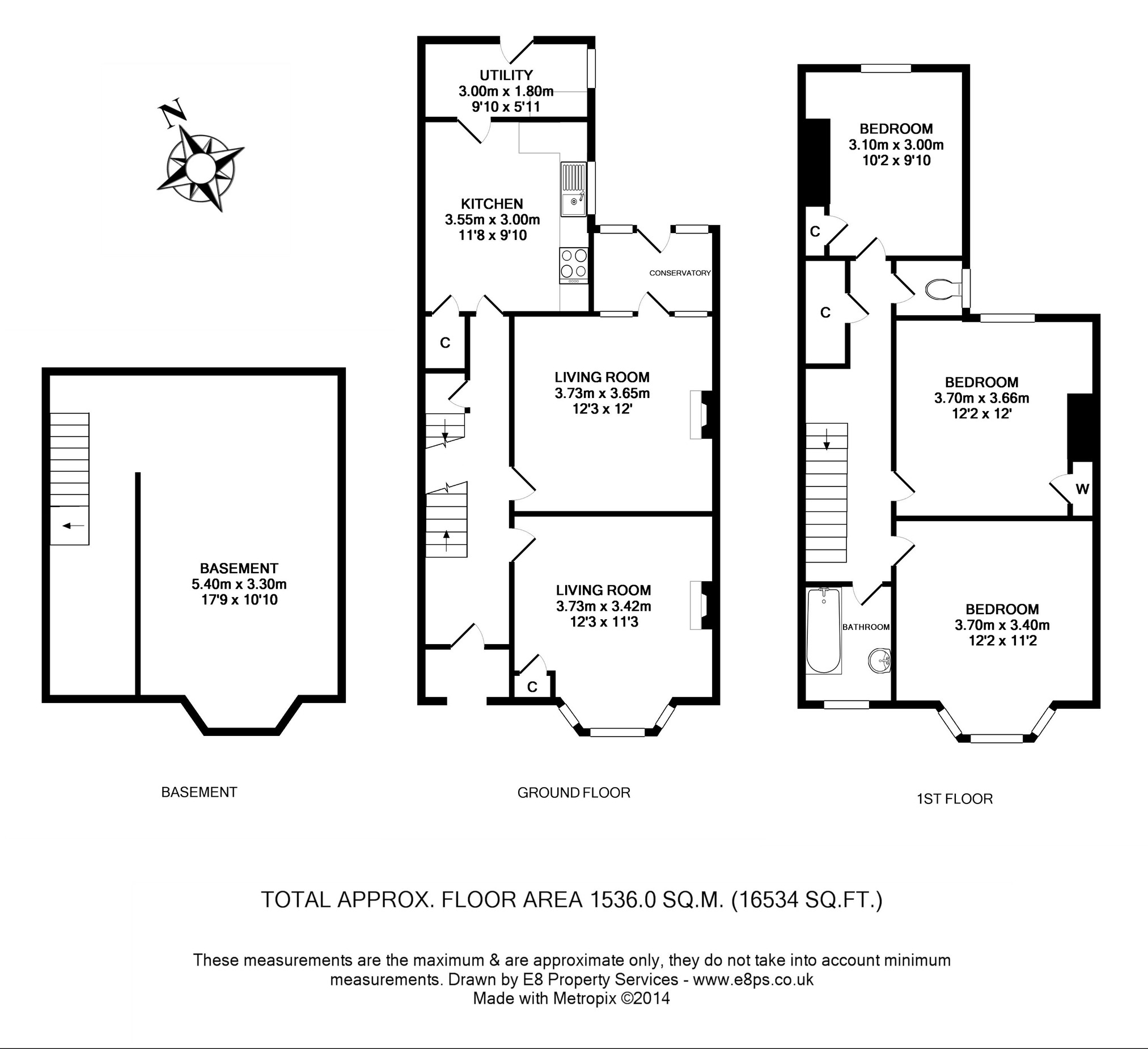
A traditional family house with convenient access to local amenities, the city centre and Headington. The property which includes many period features has 2 receptions rooms, kitchen breakfast room, separate utility room which includes fridge, freezer, dishwasher, washing machine & tumble dryer, small sun room, three double bedrooms, family bathroom, large basement for storage, enclosed garden & permit parking is available.

Contact Finders Keepers for full details quoting ref Z9643

Floor Plans

Property Location

Marketed by Finders Keepers - East Oxford


By submitting this form, you accept our Terms of Use.

Disclaimer Property descriptions and related information displayed on this page are marketing materials provided by Finders Keepers - East Oxford. estateagents365.uk does not warrant or accept any responsibility for the accuracy or completeness of the property descriptions or related information provided here and they do not constitute property particulars. Please contact Finders Keepers - East Oxford for full details and further information.