Terraced house to rent in Nottingham NG6, 2 Bedroom

Nottingham, Nottingham, UK

Quick Summary

Property Type:
Terraced house
Status:
To rent
Price
£ 138
Beds:
2
County
Nottingham
Town
Nottingham
Outcode
NG6
Location
Imperial Road, Nottingham NG6
Marketed By:
Your Move - Bulwell
Posted
2018-11-25
NG6 Rating:





More Info?
Please contact Your Move - Bulwell on 0115 774 8858 or Request Details

Property Description



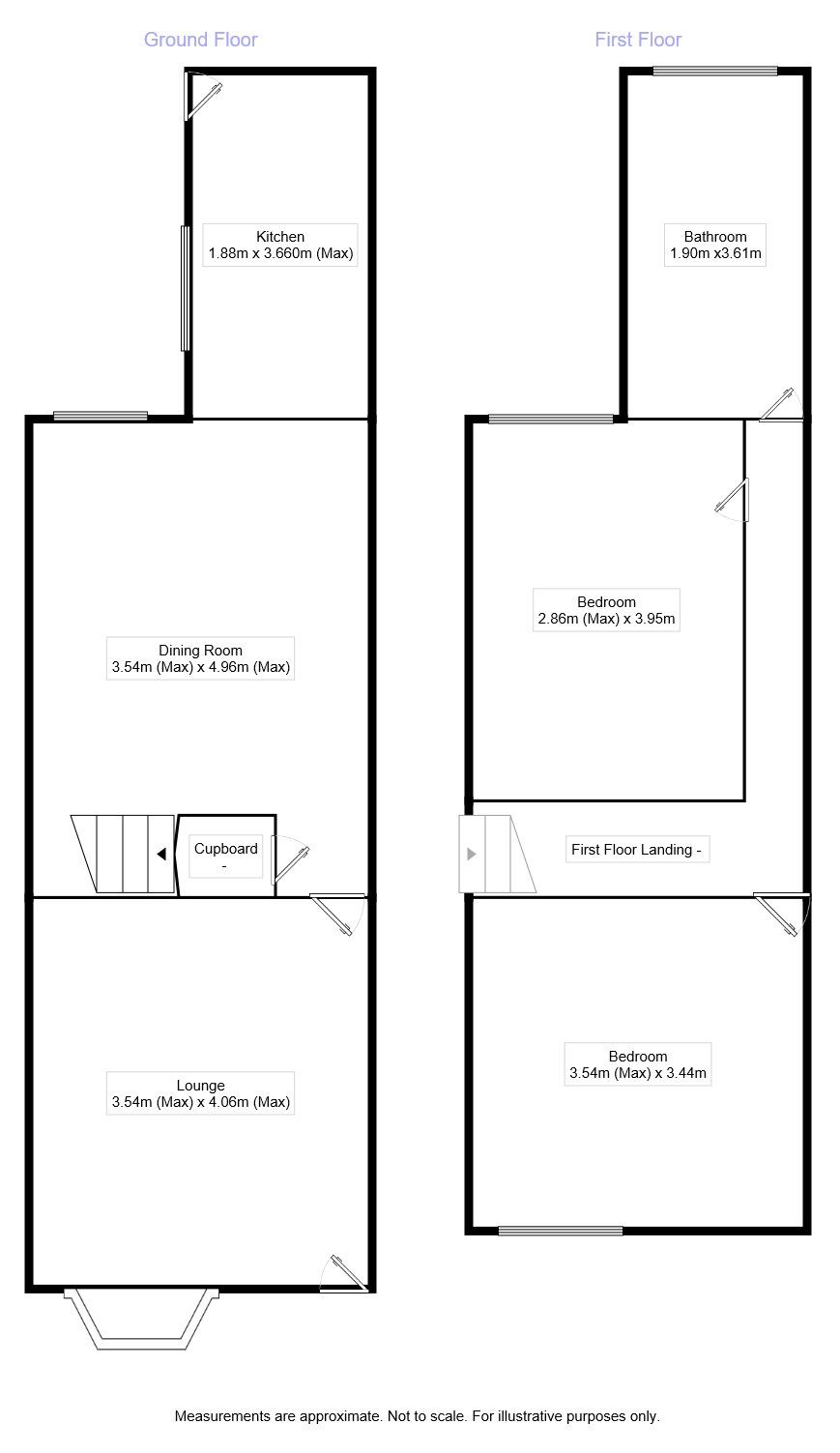
*** stunning two double bedroom terraced property *** This spacious property with accommodation comprising of lounge, dining room and fitted kitchen with appliances. To the first floor are two double bedrooms and bathroom with shower cubical. Externally there is an enclosed rear court yard. Call now to avoid disappointment!

Location

Situated within walking distance of Bulwell Town Centre boasting supermarkets and local shops. Public transport links with bus and tram station. M1 motorway at junction 26 approximately 2 miles away and Nottingham City Centre 4 miles away.

Our View

Spacious and prime location! This spacious two double bedroom and two reception room property has it all situated in the prime Bulwell Location. It will not be on the market for long. Internal viewing is highly recommended!

/3

Floor Plans

Property Location

Marketed by Your Move - Bulwell


By submitting this form, you accept our Terms of Use.

Disclaimer Property descriptions and related information displayed on this page are marketing materials provided by Your Move - Bulwell. estateagents365.uk does not warrant or accept any responsibility for the accuracy or completeness of the property descriptions or related information provided here and they do not constitute property particulars. Please contact Your Move - Bulwell for full details and further information.