Terraced house to rent in Nottingham NG11, 3 Bedroom

Nottingham, Nottingham, UK

Quick Summary

Property Type:
Terraced house
Status:
To rent
Price
£ 144
Beds:
3
Baths:
1
Recepts:
2
County
Nottingham
Town
Nottingham
Outcode
NG11
Location
Cliffmere Walk, Nottingham NG11
Marketed By:
Your Move - Nottingham
Posted
2024-04-26
NG11 Rating:





More Info?
Please contact Your Move - Nottingham on 0115 774 8845 or Request Details

Property Description



Snooze and you will lose ...A lovely terrace home, in the popular area of Clifton. With a open plan lounge/dinner leading in to a well equipped kitchen. Upstairs there three good size bedrooms and shower room. So making this property perfect for family as there is a number of school close by and also Clifton Campus is within easy walking distance.
Also the property has amply off road parking to the front of the property
Call now to arrange a viewing

Location

The property is located in the highly sought after area of Clifton which is south of Nottingham and less than five miles from the city centre. There is a high street offering a great selection of well known shops including a Morrisons supermarket. There are a number of schools located nearby and the Clifton University Campus.

Our View

A spacious mid terraced home in the popular location of Clifton. Clifton is an sought out location of Nottingham, as you have a number of shops, bars and amenities close by, You also are within each reach of the main tram stops, making committing into the city, hospitals and university a breeze.
Call now to arrange your viewing

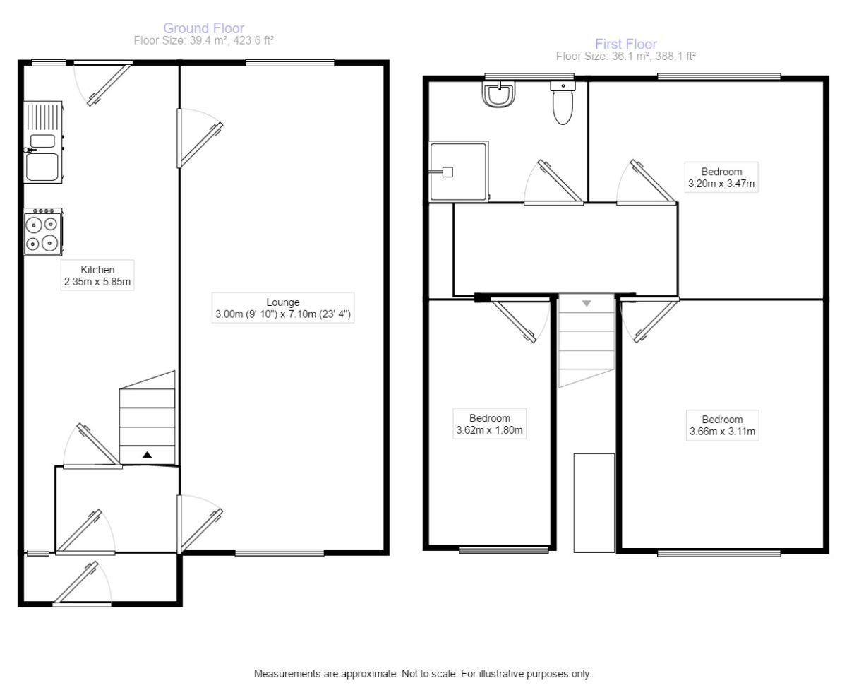
Entrance Porch

Kitchen

Lounge / Dining Room

Bedroom

Bedroom (2nd)

Bedroom (3rd)

Bathroom / Shower Room

Outside

/3

Floor Plans

Property Location

Marketed by Your Move - Nottingham


By submitting this form, you accept our Terms of Use.

Disclaimer Property descriptions and related information displayed on this page are marketing materials provided by Your Move - Nottingham. estateagents365.uk does not warrant or accept any responsibility for the accuracy or completeness of the property descriptions or related information provided here and they do not constitute property particulars. Please contact Your Move - Nottingham for full details and further information.