Terraced house to rent in London SW6, 5 Bedroom

London, London, UK

Quick Summary

Property Type:
Terraced house
Status:
To rent
Price
£ 1,200
Beds:
5
Baths:
2
Recepts:
2
County
London
Town
London
Outcode
SW6
Location
Foskett Road, Parsons Green SW6
Marketed By:
Foxtons - Fulham Bishops Park
Posted
2019-05-11
SW6 Rating:





More Info?
Please contact Foxtons - Fulham Bishops Park on 020 3544 5693 or Request Details

Property Description

Zero deposit available. Long let. This outstanding four bedroom house is beautifully presented throughout and offers well proportioned accommodation over four floors of a period terrace.

Foskett Road is located moments from the Many shops and boutiques of New King's Road and the green spaces of Hurlingham Park.

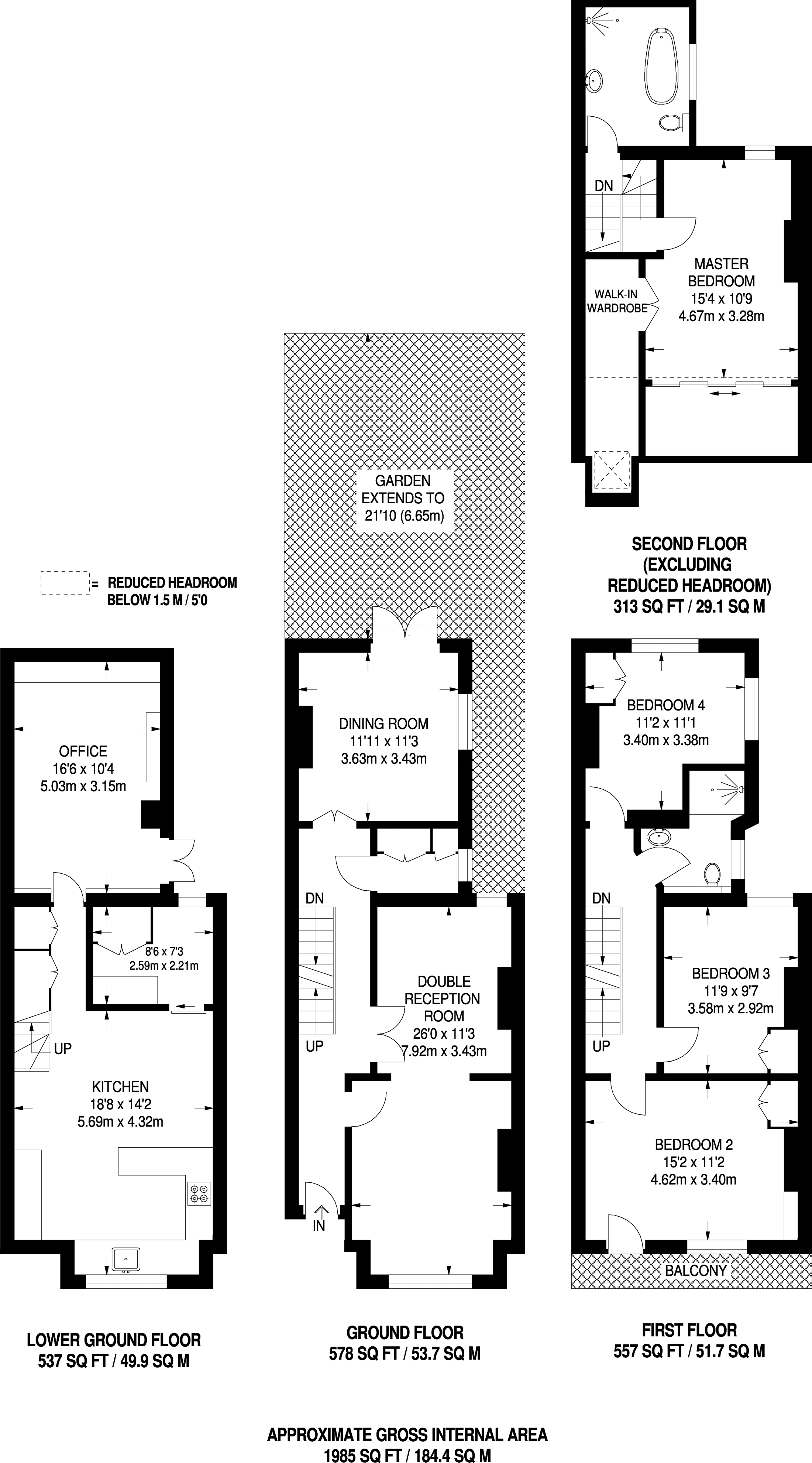
Floor Plans

Property Location

Marketed by Foxtons - Fulham Bishops Park


By submitting this form, you accept our Terms of Use.

Disclaimer Property descriptions and related information displayed on this page are marketing materials provided by Foxtons - Fulham Bishops Park. estateagents365.uk does not warrant or accept any responsibility for the accuracy or completeness of the property descriptions or related information provided here and they do not constitute property particulars. Please contact Foxtons - Fulham Bishops Park for full details and further information.