Terraced house to rent in London SW1V, 5 Bedroom

London, London, UK

Quick Summary

Property Type:
Terraced house
Status:
To rent
Price
£ 1,600
Beds:
5
Baths:
3
Recepts:
3
County
London
Town
London
Outcode
SW1V
Location
Gloucester Street, London SW1V
Marketed By:
Hamptons International - Pimwest Lettings
Posted
2018-12-23
SW1V Rating:





More Info?
Please contact Hamptons International - Pimwest Lettings on 020 3641 4678 or Request Details

Property Description

Immaculately presented family home situated in the heart of Pimlico. The accommodation is well laid out, comprising three receptions rooms, five bedrooms and three bathrooms. The property further boasts ample storage throughout and outside space. This property would ideally suit a family as it offers plenty of flexible living.

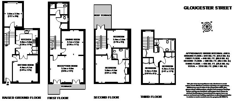
Floor Plans

Property Location

Marketed by Hamptons International - Pimwest Lettings


By submitting this form, you accept our Terms of Use.

Disclaimer Property descriptions and related information displayed on this page are marketing materials provided by Hamptons International - Pimwest Lettings. estateagents365.uk does not warrant or accept any responsibility for the accuracy or completeness of the property descriptions or related information provided here and they do not constitute property particulars. Please contact Hamptons International - Pimwest Lettings for full details and further information.