Terraced house to rent in London SW14, 3 Bedroom

London, London, UK

Quick Summary

Property Type:
Terraced house
Status:
To rent
Price
£ 542
Beds:
3
Baths:
1
Recepts:
3
County
London
Town
London
Outcode
SW14
Location
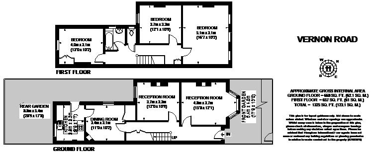
Vernon Road, London SW14
Marketed By:
Hamptons International - East Sheen and Barnes Lettings
Posted
2018-10-20
SW14 Rating:





More Info?
Please contact Hamptons International - East Sheen and Barnes Lettings on 020 8166 5317 or Request Details

Property Description

Three double bedroom mid terraced house in an extremely convenient location just off Sheen Lane and within very easy reach of Mortlake Station. The house also offers a front reception room, dining room, morning room and kitchen. There is a family bathroom and a separate WC. The lawned rear garden has rear access and a shed.

Floor Plans

Property Location

Marketed by Hamptons International - East Sheen and Barnes Lettings


By submitting this form, you accept our Terms of Use.

Disclaimer Property descriptions and related information displayed on this page are marketing materials provided by Hamptons International - East Sheen and Barnes Lettings. estateagents365.uk does not warrant or accept any responsibility for the accuracy or completeness of the property descriptions or related information provided here and they do not constitute property particulars. Please contact Hamptons International - East Sheen and Barnes Lettings for full details and further information.