Terraced house to rent in London SE3, 5 Bedroom

London, London, UK

Quick Summary

Property Type:
Terraced house
Status:
To rent
Price
£ 1,015
Beds:
5
Baths:
3
Recepts:
2
County
London
Town
London
Outcode
SE3
Location
Langton Way, Blackheath SE3
Marketed By:
Heath Estates
Posted
2018-09-16
SE3 Rating:





More Info?
Please contact Heath Estates on 020 8022 5887 or Request Details

Property Description

Detailed Description

Superb location in a private road just yards from the open heath and Pointers prep school we are delighted to offer this exceptional contemporary architect designed 5 bedroom detached property. Arranged over three floors the accommodation comprises lower floor, two double bedrooms, large play room, shower room w/c, large storage room. Ground floor light and spacious hall with double doors to large lounge/diner with direct access to patio area and lawned garden, cloak room, utility room with condensating boiler, beautiful quality fitted kitchen/breakfast room with built in appliances and direct access to patio, second staircase to lower floor. First floor very large master bedroom with en-suite shower w/c, two further double bedrooms, large family bathroom with separate shower cubicle. Benefits and features include off street parking via electronic gates, pretty garden, security system, top quality fittings, double glazed windows and solid wood floors throughout.
Offered unfurnished and available from the 20th OCtober 2018
Suitable for professional family.
Viewing is highly recommended.
Fees Apply

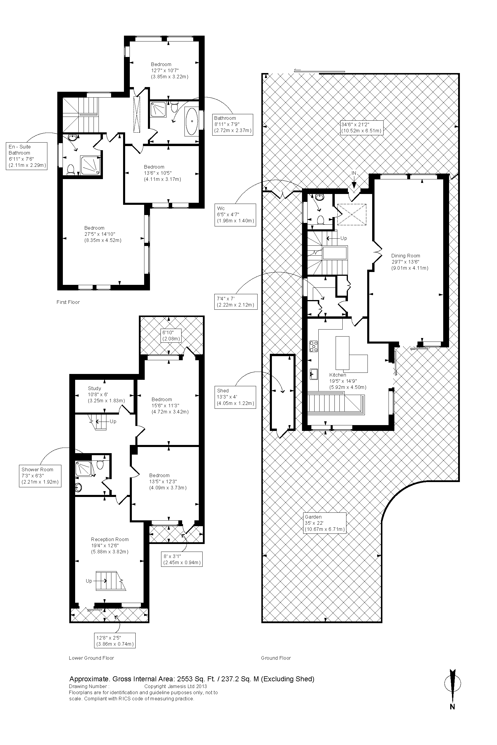
Floor Plans

Property Location

Marketed by Heath Estates


By submitting this form, you accept our Terms of Use.

Disclaimer Property descriptions and related information displayed on this page are marketing materials provided by Heath Estates. estateagents365.uk does not warrant or accept any responsibility for the accuracy or completeness of the property descriptions or related information provided here and they do not constitute property particulars. Please contact Heath Estates for full details and further information.