Terraced house to rent in London NW3, 3 Bedroom

London, London, UK

Quick Summary

Property Type:
Terraced house
Status:
To rent
Price
£ 1,038
Beds:
3
Baths:
3
Recepts:
2
County
London
Town
London
Outcode
NW3
Location
Maitland Park Road, London NW3
Marketed By:
C.H. Peppiatt Estate Agents
Posted
2024-04-24
NW3 Rating:





More Info?
Please contact C.H. Peppiatt Estate Agents on 020 3551 3250 or Request Details

Property Description

A rare end of terrace victorian house located on the cusp of three amazing areas; Hampstead Heath, Belsize Park and Kentish Town. This fantastic property comprises of three large artistic rooms full of character, a lovely private garden, three modern bathrooms (one en-suite), a large modern kitchen / living room, a gym area/nanny annex, steam room and a grand double reception.

This property is ideal for anyone with a love of art or appreciation of Victorian décor and a must see to appreciate the space available.

Further benefits include being recently redecorated throughout, high ceilings, gas central heating, a fully installed security alarm and ample storage space.

Ideally located between Belsize Park & Chalk Farm Underground (Northern Line) and a short walk to Kentish Town Overground. The property is situated in a popular residential area with an array of local amenities and fashionable shops all close by.

Available now. Offered furnished / unfurnished.

Notice
All photographs are provided for guidance only. Fees apply. Please ask us for more details.

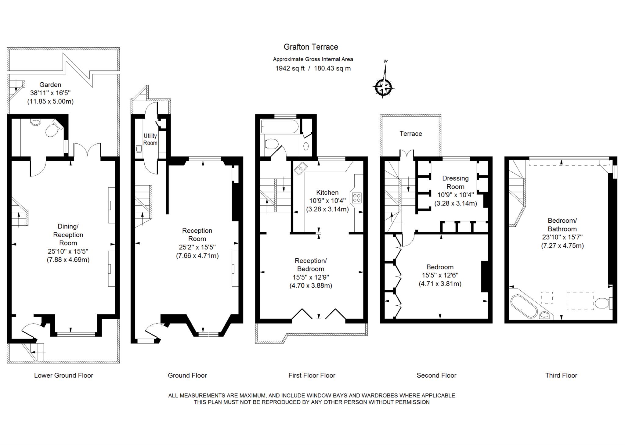
Floor Plans

Property Location

Marketed by C.H. Peppiatt Estate Agents


By submitting this form, you accept our Terms of Use.

Disclaimer Property descriptions and related information displayed on this page are marketing materials provided by C.H. Peppiatt Estate Agents. estateagents365.uk does not warrant or accept any responsibility for the accuracy or completeness of the property descriptions or related information provided here and they do not constitute property particulars. Please contact C.H. Peppiatt Estate Agents for full details and further information.