Terraced house to rent in London NW10, 3 Bedroom

London, London, UK

Quick Summary

Property Type:
Terraced house
Status:
To rent
Price
£ 550
Beds:
3
Baths:
1
Recepts:
1
County
London
Town
London
Outcode
NW10
Location
Harlesden Gardens, London NW10
Marketed By:
Winkworth - Willesden Green
Posted
2024-04-08
NW10 Rating:





More Info?
Please contact Winkworth - Willesden Green on 020 8115 7062 or Request Details

Property Description

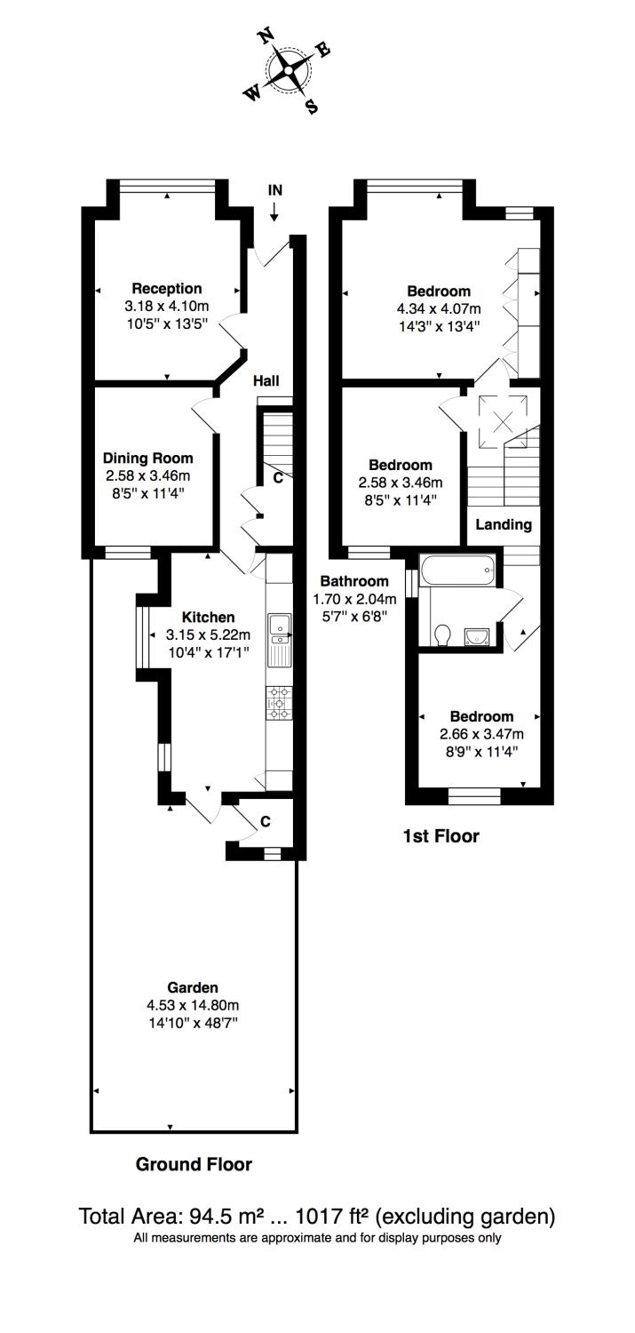
A fantastic opportunity to live in a beautiful three bedroom terraced house on a desirable residential road. The property measures approximately 1020 . With a large south facing garden. It has been lovingly renovated, retaining many original features, while maximising light and space. The house is arranged over two floors and comprises of three bedrooms with family bathroom on the first floor, a bright reception room, cloakroom, and newly fitted open-plan kitchen diner leading to a garden on the ground floor. This property can be offered either furnished or unfurnished and is sure to be snapped up quickly.

Council tax - £1659.70 per year (Band E)
Ward - Willesden Green

Location:
Ideally located on one of the most sought after road in Harlesden in very close vicinity to Maplewalk School, the property is but a short walk from the transport links. Willesden Junction (Zone 2). The flat is also a stones throw from Roundwood park and the amenities that Harlesden has to offer.


Floor Plans

Property Location

Marketed by Winkworth - Willesden Green


By submitting this form, you accept our Terms of Use.

Disclaimer Property descriptions and related information displayed on this page are marketing materials provided by Winkworth - Willesden Green. estateagents365.uk does not warrant or accept any responsibility for the accuracy or completeness of the property descriptions or related information provided here and they do not constitute property particulars. Please contact Winkworth - Willesden Green for full details and further information.