Terraced house to rent in Liverpool L15, 1 Bedroom

Liverpool, Liverpool, UK

Quick Summary

Property Type:
Terraced house
Status:
To rent
Price
£ 75
Beds:
1
Baths:
1
Recepts:
1
County
Merseyside
Town
Liverpool
Outcode
L15
Location
Ash Grove, Wavertree, Liverpool L15
Marketed By:
Mistoria Estate Agency
Posted
2018-10-02
L15 Rating:





More Info?
Please contact Mistoria Estate Agency on 0161 937 5968 or Request Details

Property Description

Are you a group of University of Liverpool/jmu friends looking for your ideal student house? Stop the search! We've got just the house for you - 1 double bedroom available, all inclusive bills and just 1.9 miles from the main uni campuses!

This property has all the features a busy student needs!

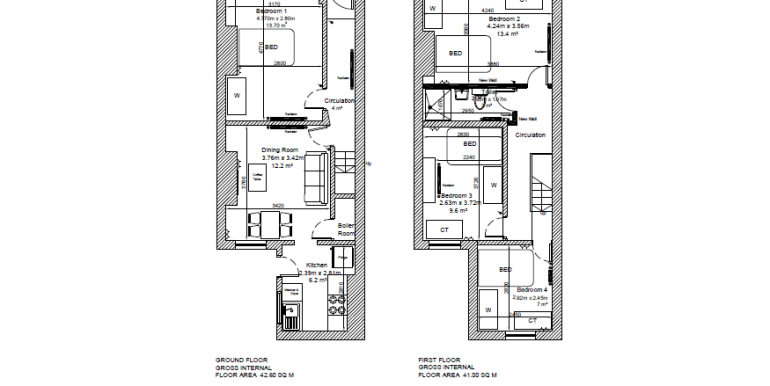
The property is laid out between two including four double bedrooms. This includes one on the ground floor and three on the first floor. All bedrooms include a double bed and mattress, wardrobe, chest of drawers and desk and chair. The rooms are complimented by a feature wall and ample power points for all your electrical devices. Each room can be locked by key which is extra security for your belongings as well as giving you some private time away from your housemates.

The living room consists of: Two sofas, a wall mounted TV, a coffee table, and a dining table and chairs.

The fully fitted kitchen consists of: A fridge-freezer, a single oven and four hobs, a sink and drainer, a washing machine, kettle and a toaster which is all finished in a modern black and white effect.

There is one bathroom which consists of: A freestanding shower, toilet and sink.

The property has double glazing throughout and gas central heating.

There is a yard to the rear.

Deposits per person are £200 whilst providing a guarantor is also needed.

Bills are all included into the cost per week including Gas, Electric, Water, TV Licence and Wi-Fi.

The rent pppw is £75. The rent pcm pp is £325.

Within two miles radius from the City Centre and from the two main Universities.

Don't forget, if you choose Mistoria Estate Agents we can get you 50% off Dominos all year round!

Call the office on opt 2) to arrange a viewing at your earliest convenience to avoid disappointment.

Floor Plans

Property Location

Marketed by Mistoria Estate Agency


By submitting this form, you accept our Terms of Use.

Disclaimer Property descriptions and related information displayed on this page are marketing materials provided by Mistoria Estate Agency. estateagents365.uk does not warrant or accept any responsibility for the accuracy or completeness of the property descriptions or related information provided here and they do not constitute property particulars. Please contact Mistoria Estate Agency for full details and further information.