Terraced house to rent in Cirencester GL7, 2 Bedroom

Cirencester, Cirencester, UK

Quick Summary

Property Type:
Terraced house
Status:
To rent
Price
£ 277
Beds:
2
Baths:
2
Recepts:
2
County
Gloucestershire
Town
Cirencester
Outcode
GL7
Location
Chester Street, Cirencester, Gloucestershire. GL7
Marketed By:
CBSlade - Cirencester
Posted
2019-03-23
GL7 Rating:





More Info?
Please contact CBSlade - Cirencester on 01285 418973 or Request Details

Property Description

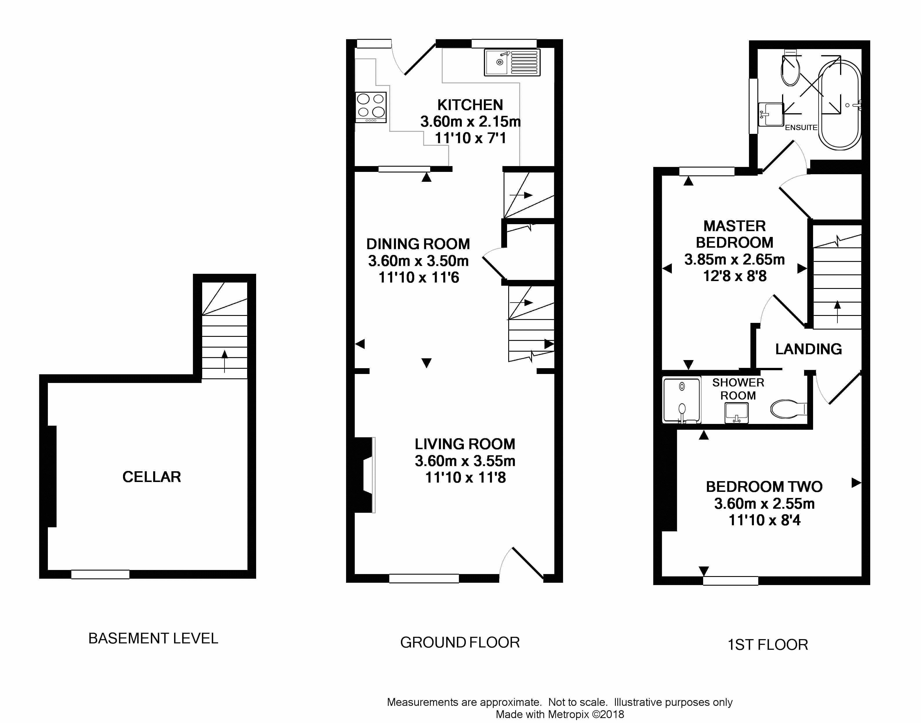
Available short term let through cbslade. Completely refurbished two bedroom terraced home now offering open plan accommodation providing living/dining room, kitchen, cellar, two double bedrooms and two bathrooms. The property has undergone a wide range of work including new central heating, re-wiring a newly fitted kitchen and bathrooms.

Property

The property is entered directly in to the generous open plan accommodation comprising a living room benefiting from wood flooring and a working fireplace, dining area with plentiful space for a dining table and chairs as well as access to the cellar and the newly fitted kitchen. The kitchen offers a range of cupboards and drawers, sink with drainer, cooker with hob and hood and provides plumbing and space for white goods including a tall fridge freezer, washing machine and dishwasher. There is also access to the garden.

The first floor has been thoughtfully re-designed to allow for two double bedrooms and two bathrooms. The master bedroom benefits from an airing cupboard housing the newly fitted combi boiler and an ensuite bathroom comprising freestanding roll top bath, heated towel rail, wc and wash hand basin. The accommodation is completed by a separate shower room providing heated towel, wc and wash hand basin.

Whilst not converted, please note that the cellar offers both power and light.

Gardens

The front of the property offers private gated access and has been laid to loose stone for ease of maintenance. The rear garden is of a generous size and is fully enclosed by timber fencing with gated rear access. Street parking is available to the front.

Location

Situated within this popular town centre location the property is located within walking distance from many shops and facilities. Cirencester also benefits from easy access to the local road network and the M4 and M5 motorways beyond.

Agents Note

In accordance with Section 21 of the Estate Agents Act (declaration of personal interest) we advise that the vendor of this property is an employee of CBSlade Property Group.

Fees

In order to reserve the property and take it off the rental market an tracc fee will be payable to CBSlade. This is £195 for each person over the age of 18 who will be living in the property. Should a guarantor be required this will incur a cost of £65 + VAT. Please note that the first month’s rent and a security deposit funds need to be cleared prior to move in.

Floor Plans

Property Location

Marketed by CBSlade - Cirencester



By submitting this form, you accept our Terms of Use.

Disclaimer Property descriptions and related information displayed on this page are marketing materials provided by CBSlade - Cirencester. estateagents365.uk does not warrant or accept any responsibility for the accuracy or completeness of the property descriptions or related information provided here and they do not constitute property particulars. Please contact CBSlade - Cirencester for full details and further information.