Terraced house for sale in Thornton Heath CR7, 4 Bedroom

Thornton Heath, Thornton Heath, UK

Quick Summary

Property Type:
Terraced house
Status:
For sale
Price
£ 499,995
Beds:
4
County
London
Town
Thornton Heath
Outcode
CR7
Location
Howberry Road, Thornton Heath CR7
Marketed By:
Streets Ahead - Crystal Palace
Posted
2024-05-13
CR7 Rating:





More Info?
Please contact Streets Ahead - Crystal Palace on 020 3478 3452 or Request Details

Property Description

Location


Gorgeous four bedroom Mid-terraced family home situated on this quiet residential road. Finished to a very good standard by the current owners whilst offering well-proportioned accommodation throughout.
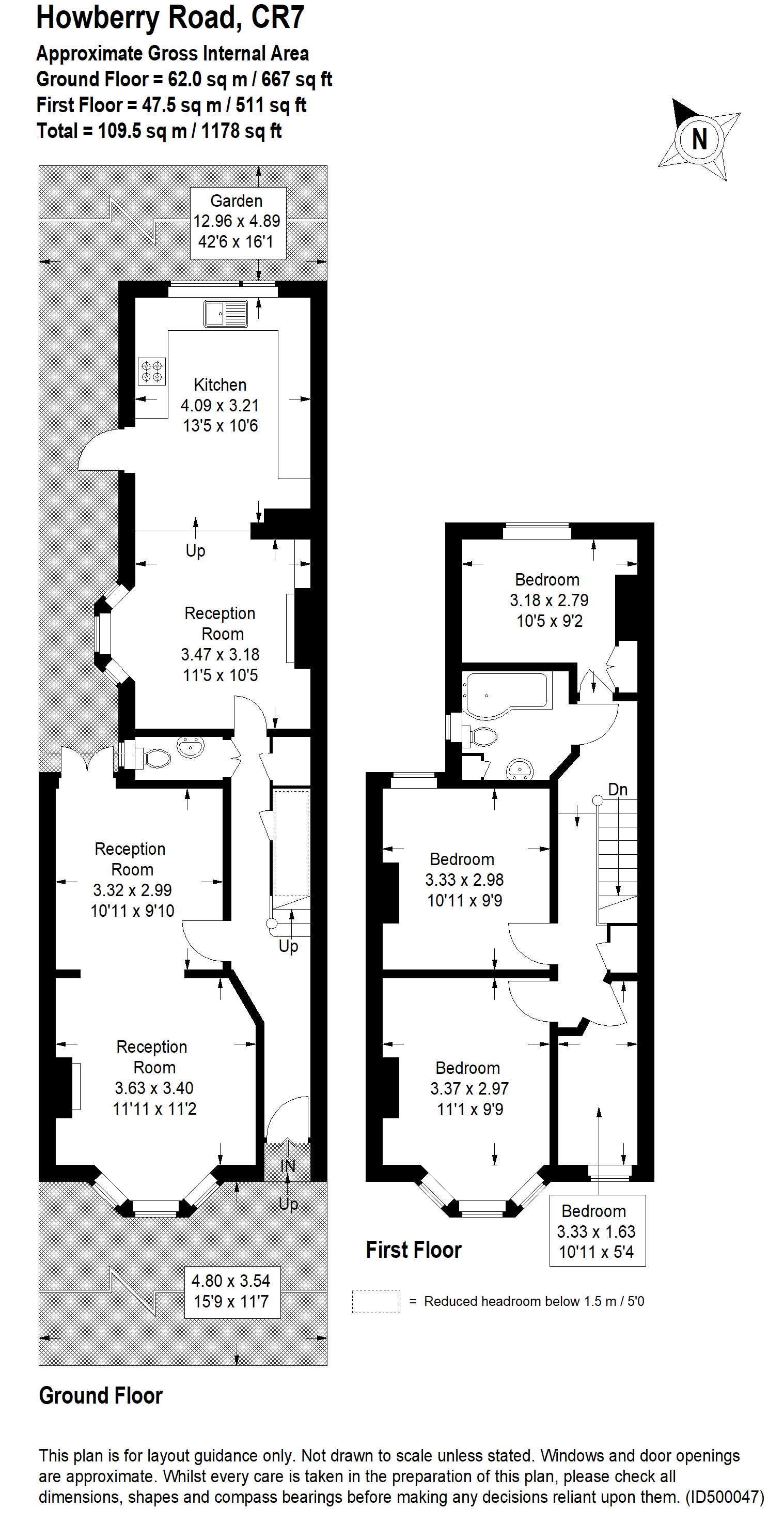
The ground floor comprises a generous through lounge with bay window to the front, original wood flooring and feature fireplace, downstairs cloakroom, spacious kitchen diner overlooking mature 40ft rear garden.
The upstairs includes three double bedrooms and a single bedroom which can be used as an office or nursery and a lovely family bathroom.
Further benefits include spacious loft storage space which also offers potential to extend subject to planning permission and a good sized 40ft sunny rear garden.


Directions


Howberry Road is a quite side road which is situated off Northwood Road and offers excellent local amenities, as well as being within easy reach of Grangewood Park and local schools, shops, restaurants, bus routes and railway stations that offer frequent services into the City.


Transport


Thornton Heath (approx 0.7 miles)
Crystal Palace (approx 1.1 miles)
Gipsy Hill (approx 1.2 miles)


Floor Plans

Property Location

Marketed by Streets Ahead - Crystal Palace


By submitting this form, you accept our Terms of Use.

Disclaimer Property descriptions and related information displayed on this page are marketing materials provided by Streets Ahead - Crystal Palace. estateagents365.uk does not warrant or accept any responsibility for the accuracy or completeness of the property descriptions or related information provided here and they do not constitute property particulars. Please contact Streets Ahead - Crystal Palace for full details and further information.