Terraced house for sale in Stourbridge DY8, 2 Bedroom

Stourbridge, Stourbridge, UK

Quick Summary

Property Type:
Terraced house
Status:
For sale
Price
£ 135,000
Beds:
2
Baths:
1
Recepts:
2
County
West Midlands
Town
Stourbridge
Outcode
DY8
Location
Stourbridge, Wordsley, Harrison Road DY8
Marketed By:
Taylors
Posted
2018-11-29
DY8 Rating:





More Info?
Please contact Taylors on 01384 592167 or Request Details

Property Description

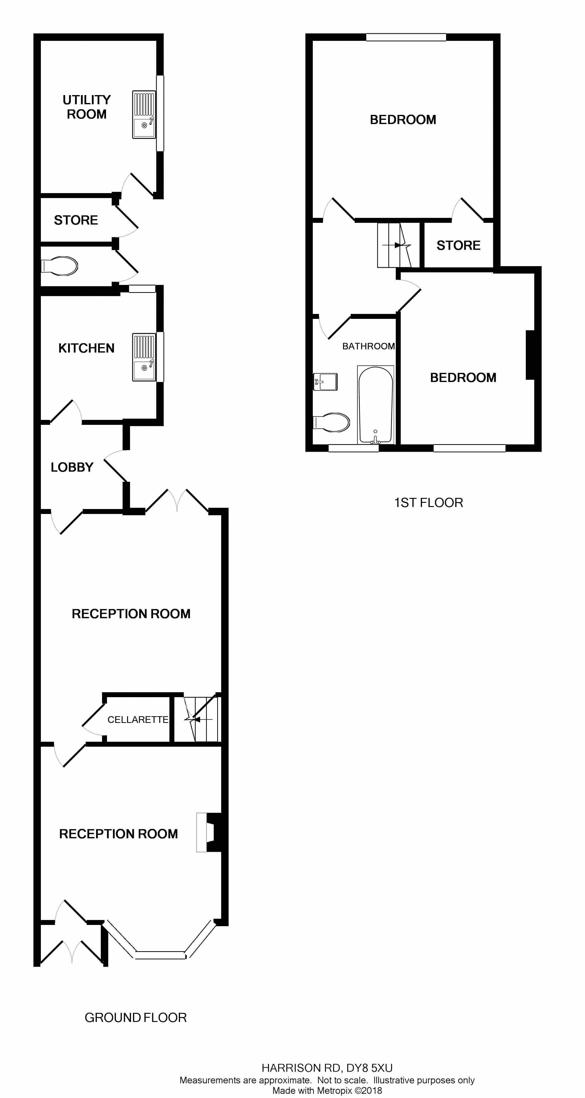
Although requiring updating, this period terrace home has great potential to create a lovely hone, and with no upward chain comprises: Porch, Front Sitting Room, Rear Sitting Room/Dining Room, Rear Hall, Kitchen, Two Bedrooms and first floor Bathroom. Long Rear Garden, Garden Cloakroom and Utility/Workshop. No upward chain. EPC E

Floor Plans

Property Location

Marketed by Taylors


By submitting this form, you accept our Terms of Use.

Disclaimer Property descriptions and related information displayed on this page are marketing materials provided by Taylors. estateagents365.uk does not warrant or accept any responsibility for the accuracy or completeness of the property descriptions or related information provided here and they do not constitute property particulars. Please contact Taylors for full details and further information.