Terraced house for sale in Snodland ME6, 3 Bedroom

Snodland, Snodland, UK

Quick Summary

Property Type:
Terraced house
Status:
For sale
Price
£ 255,000
Beds:
3
Baths:
1
Recepts:
2
County
Kent
Town
Snodland
Outcode
ME6
Location
Portland Place, Snodland ME6
Marketed By:
CWB Property Sales & Lettings
Posted
2024-04-01
ME6 Rating:





More Info?
Please contact CWB Property Sales & Lettings on 01634 215517 or Request Details

Property Description

Recently Refurbished Throughout, Parking To The Rear, Modern Kitchen & Great Sized Rooms, What More Could You Want? Call Us To Book Your Viewing!

Located in Portland Place within the heart of the village, This three bedroom cottage will suit many. There are plenty of amenities right on your doorstep.

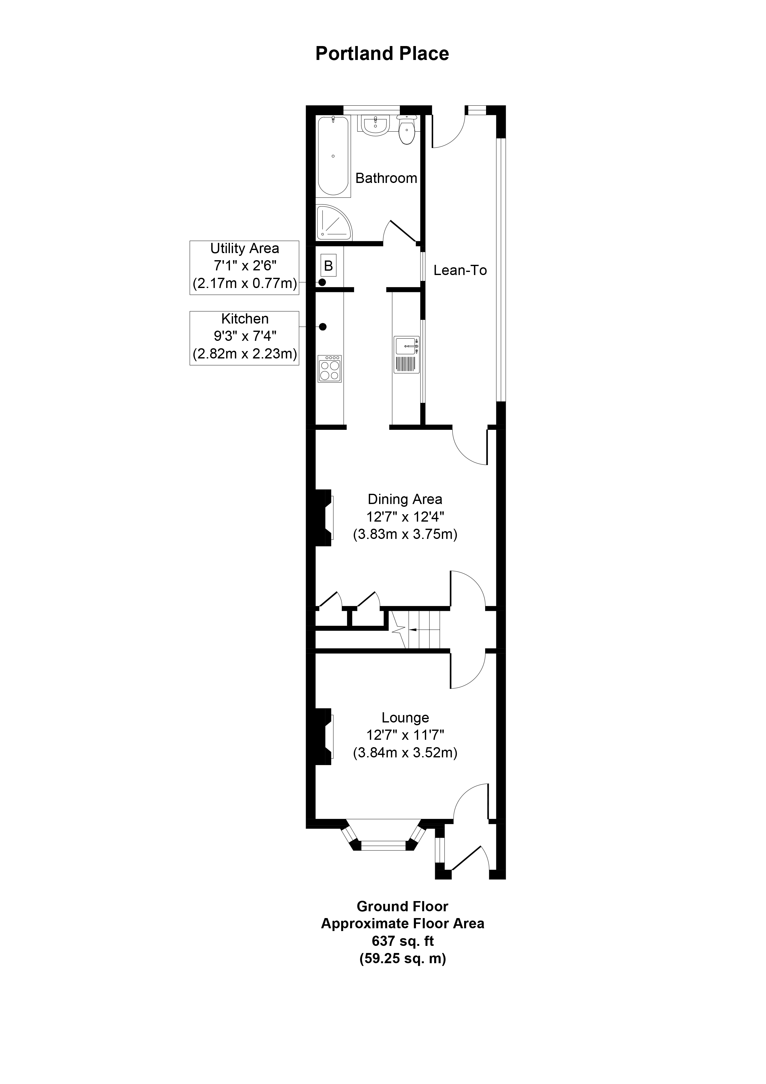
This property offers endless possibilities. With a porch leading into a separate lounge which in turn leads through to a large open kitchen/dining area, the modern bathroom is located to the rear of the property and is in great condition.

Upstairs you have a great sized master bedroom with built in storage cupboard, a great sized second bedroom big enough for a double bed. And the third bedroom with a large walkway perfect for wardrobes!

The garden is a good size which leads through to the parking area to the rear of the property.

This house will be a great choice for first time buyers and families alike!

Within the village there are supermarkets, post office, bakers, hairdressers, pharmacy, library, children's centre and tea rooms to name but a few.

Excellent transport links within walking distance. Snodland train station is a 5 minute walk away. This station has a direct service to London which takes 45 minutes. You will also have easy access to the M2 and the M20 motorways and a good bus service

You are a short distance from the beautiful Leybourne Lake Country Park which boasts great outdoor activities and is perfect for peaceful countryside walks for all of the family.

There are several picturesque villages within short journey times. Whilst Rochester is just across the river, with its host of pubs, bars and restaurants as well as the historic Castle and Cathedral.

Call today to arrange your appointment to view

Floor Plans

Property Location

Marketed by CWB Property Sales & Lettings


By submitting this form, you accept our Terms of Use.

Disclaimer Property descriptions and related information displayed on this page are marketing materials provided by CWB Property Sales & Lettings. estateagents365.uk does not warrant or accept any responsibility for the accuracy or completeness of the property descriptions or related information provided here and they do not constitute property particulars. Please contact CWB Property Sales & Lettings for full details and further information.