Terraced house for sale in Salford M6, 4 Bedroom

Salford, Salford, UK

Quick Summary

Property Type:
Terraced house
Status:
For sale
Price
£ 190,000
Beds:
4
Baths:
1
Recepts:
1
County
Greater Manchester
Town
Salford
Outcode
M6
Location
Highfield Road, Salford M6
Marketed By:
Mistoria Estate Agency
Posted
2024-04-21
M6 Rating:





More Info?
Please contact Mistoria Estate Agency on 0161 937 5968 or Request Details

Property Description

Mistoria are pleased to offer to market this ...

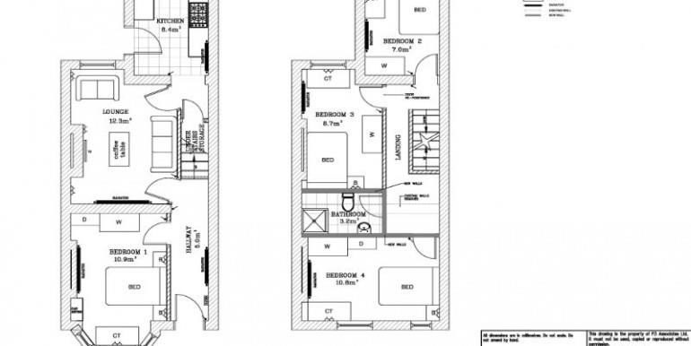
Floor Plans

Property Location

Marketed by Mistoria Estate Agency


By submitting this form, you accept our Terms of Use.

Disclaimer Property descriptions and related information displayed on this page are marketing materials provided by Mistoria Estate Agency. estateagents365.uk does not warrant or accept any responsibility for the accuracy or completeness of the property descriptions or related information provided here and they do not constitute property particulars. Please contact Mistoria Estate Agency for full details and further information.