Terraced house for sale in Pudsey LS28, 3 Bedroom

Pudsey, Pudsey, UK

Quick Summary

Property Type:
Terraced house
Status:
For sale
Price
£ 285,000
Beds:
3
Baths:
1
Recepts:
1
County
West Yorkshire
Town
Pudsey
Outcode
LS28
Location
Woodhall Road, Calverley, Pudsey, West Yorkshire LS28
Marketed By:
Manning Stainton - Pudsey
Posted
2024-04-30
LS28 Rating:





More Info?
Please contact Manning Stainton - Pudsey on 0113 482 9688 or Request Details

Property Description

Situated in the heart of Calverley, being just moments from the local village amenities, pubs and schools, this attractive stone end terrace offers spacious and extremely well presented accommodation arranged over three floors. Successfully combining character features with a stylish modern interior, the property boasts three double bedrooms a generous size open plan dining kitchen and gardens to three sides. Internal viewing is essential to appreciate what this fabulous property has to offer, which is brought to the market with no onward chain.

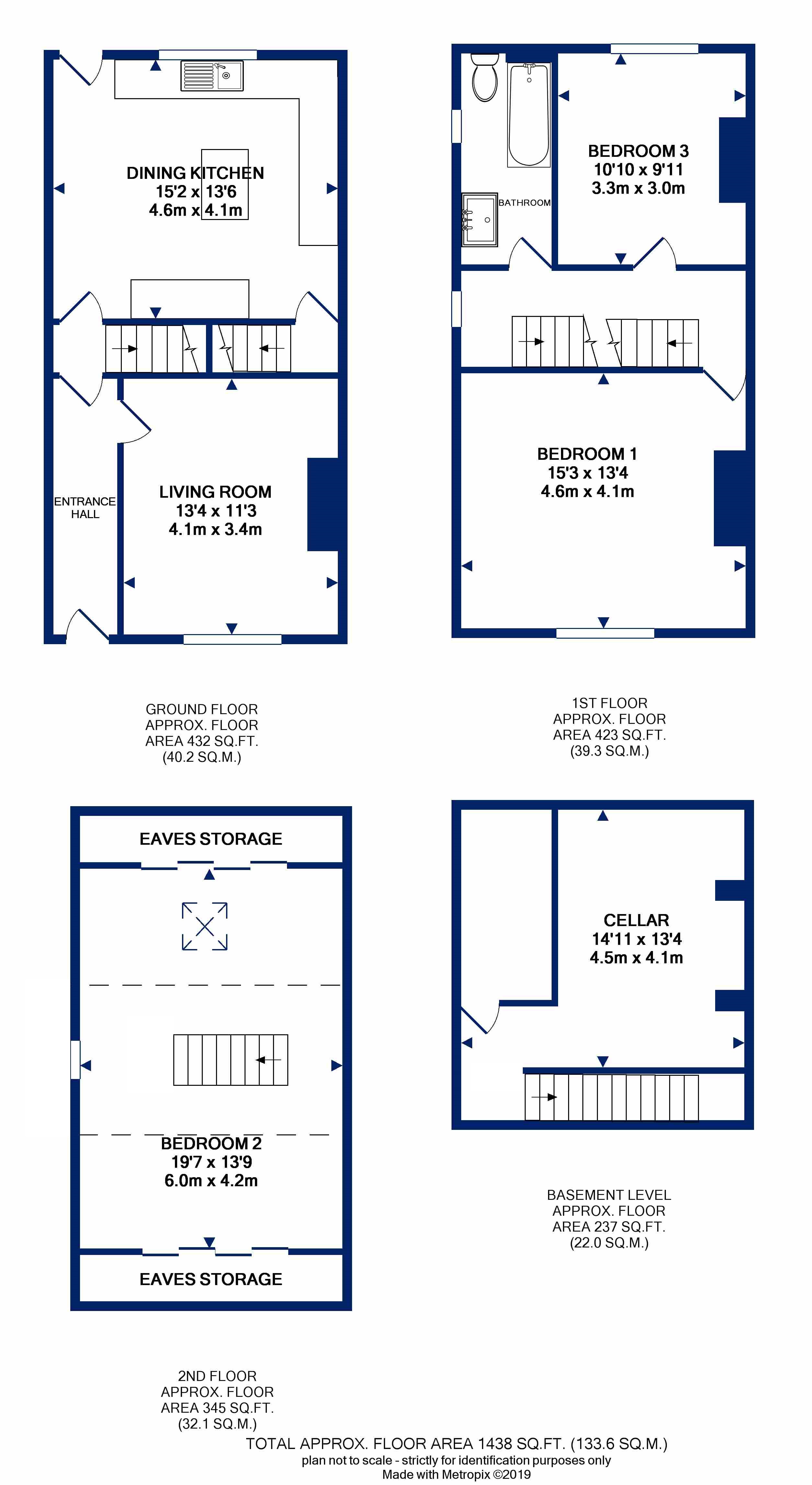
Featuring uPVC double glazing and gas fired central heating the accommodation briefly comprises to the ground floor: A welcoming entrance hall, a bright and spacious living room with an attractive fireplace and inset gas fire, and a separate open plan dining kitchen which is fitted with a range of matching wall and base units incorporating an island unit and ample space for a dining table and chairs. To the first floor is the master bedroom which is a particularly spacious double, the third bedroom which is a smaller double, and the house bathroom which is part-tiled and fitted with a contemporary white three piece suite. To the second floor there is a further generous size double bedroom with eaves storage at both ends. There is also a basement which provides useful storage space/utility area with plumbing for a washing machine. Externally there are gardens to the front and side of the property which are screened from the road by a tall privet hedge, having a patio in front of the property and a lawned garden to the side. To the rear there is a further low-maintenance garden which is gated and could also be used as off street parking.

The ever-popular village of Calverley nestles in a rural setting close to both Leeds and Bradford city centres, making this an ideal setting for the commuter who desires a residence that is well-connected to commercial districts but provides a traditional countryside feel. The village provides a range of local facilities, additionally there are two golf courses located to the south of the village. More substantial shopping facilities are found towards Bradford at Greengates where a Sainsbury’s superstore is found, and towards Pudsey where the Owlcotes Shopping Centre provides both Asda and Marks & Spencer superstores.

Floor Plans

Property Location

Marketed by Manning Stainton - Pudsey


By submitting this form, you accept our Terms of Use.

Disclaimer Property descriptions and related information displayed on this page are marketing materials provided by Manning Stainton - Pudsey. estateagents365.uk does not warrant or accept any responsibility for the accuracy or completeness of the property descriptions or related information provided here and they do not constitute property particulars. Please contact Manning Stainton - Pudsey for full details and further information.