Terraced house for sale in Marlow SL7, 3 Bedroom

Marlow, Marlow, UK

Quick Summary

Property Type:
Terraced house
Status:
For sale
Price
£ 475,000
Beds:
3
County
Buckinghamshire
Town
Marlow
Outcode
SL7
Location
Brill Close, Marlow, Buckinghamshire SL7
Marketed By:
Ballards Estate Agents
Posted
2018-10-17
SL7 Rating:





More Info?
Please contact Ballards Estate Agents on 01628 246001 or Request Details

Property Description

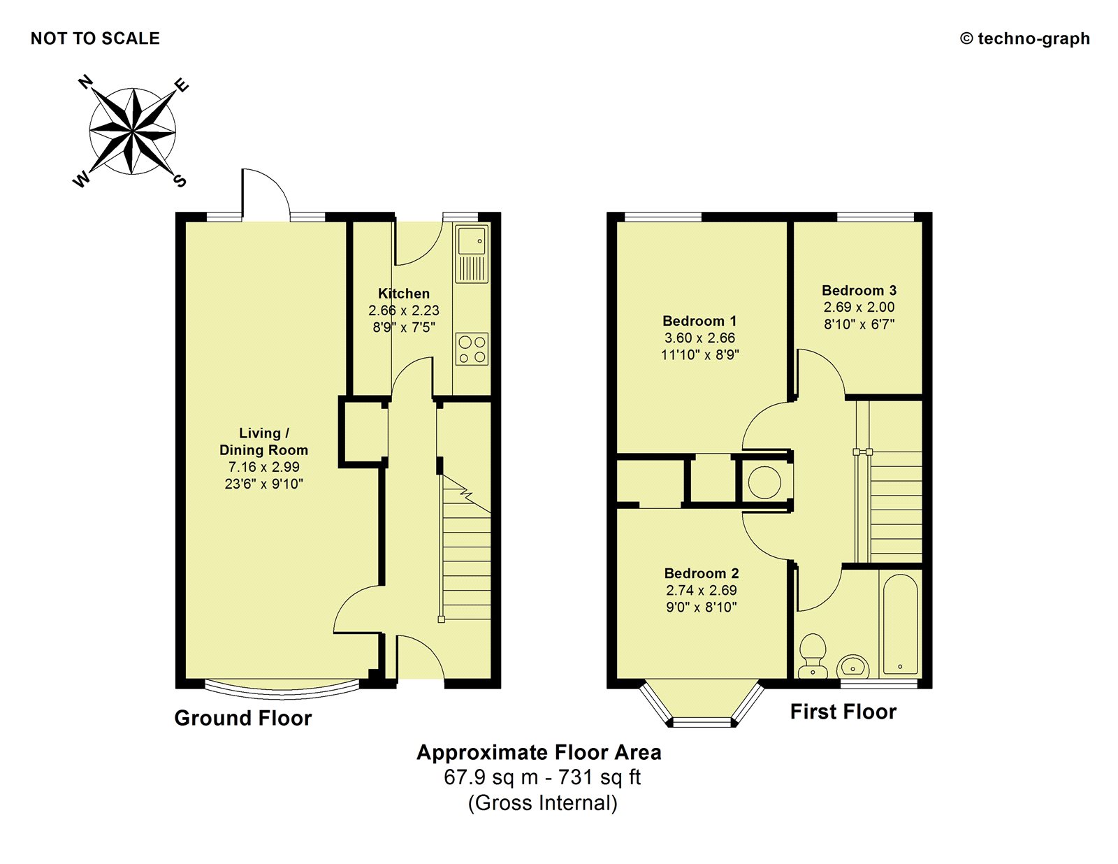
A modern three bedroom terrace house situated in a tucked away position on the west side of town and within catchment for Spinfield Primary school. The property is offered in excellent condition throughout and provides spacious accommodation to include; entrance hall, large double aspect living/dining room with French doors onto the garden, refitted kitchen, three generous bedrooms and modern fitted family bathroom. In addition the property offers an outside office/family room (previously the garage and easily re-converted), front and rear gardens and off street parking for two vehicles. In our opinion ideal as a first time purchase, investment or for a downsizer.

Location

Part of a popular residential development situated on the western side of town, under one mile from the High Street with its array of individual bustling shops, cafes and restaurants. Marlow Station (London Paddington via Maidenhead with Crossrail due in 2018) is just over one mile, with the Business Park and bypass A404 within 2 miles, giving fast access to the motorway network with the M4 at J8/9 Maidenhead & the M40 at J4 Handy Cross, Heathrow Airport & central London. Local recreational facilities include golf at Harleyford & Temple; rowing at Marlow Rowing Club; riding, cycling & walking in the Hambleden valley; clubs for tennis, hockey, cricket & bowls all in Pound Lane, as well as the Court Garden Leisure complex & the National Sports Centre at Bisham Abbey.

Directions

From the centre of Marlow proceed west from the obelisk at the top of the High Street along West Street towards Henley. At Platts Garage turn right into Oxford Road and then left after a few hundred yards into Barnards Hill. Turn right onto Terrington Hill and then first left into Brill Close where the property's parking can be found almost directly ahead and with a pedestrian path leading to the front.

Floor Plans

Property Location

Marketed by Ballards Estate Agents


By submitting this form, you accept our Terms of Use.

Disclaimer Property descriptions and related information displayed on this page are marketing materials provided by Ballards Estate Agents. estateagents365.uk does not warrant or accept any responsibility for the accuracy or completeness of the property descriptions or related information provided here and they do not constitute property particulars. Please contact Ballards Estate Agents for full details and further information.