Terraced house for sale in Lymm WA13, 2 Bedroom

Lymm, Lymm, UK

Quick Summary

Property Type:
Terraced house
Status:
For sale
Price
£ 215,000
Beds:
2
Baths:
1
Recepts:
1
County
Cheshire
Town
Lymm
Outcode
WA13
Location
Rushgreen Road, Lymm WA13
Marketed By:
Banner & Co
Posted
2024-04-21
WA13 Rating:





More Info?
Please contact Banner & Co on 01925 747097 or Request Details

Property Description

Attractive two bedroom mid terraced cottage with the advantage of off-road parking and good sized garden to the rear.

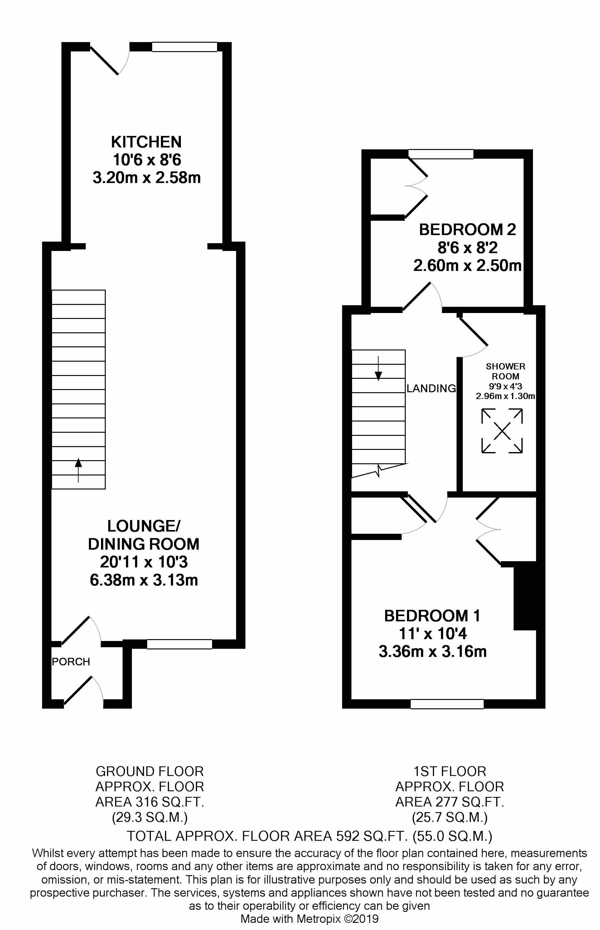
Having the benefit of gas central heating, upvc double glazing and a recent damp proof course the accommodation briefly comprises Entrance porch, lounge/dining room, kitchen, two bedrooms and shower room. Externally there is off-road parking to the front and a good sized garden to the rear. Early viewings are highly recommended of this delightful cottage and its superb location close to Lymm Village Centre.

Entrance porch Leaded stained glass front door, mat well, exposed brickwork, ceiling light, tongue and groove ceiling, glazed door leading to

lounge/dining room 20' 11" x 10' 3" (6.38m x 3.12m) Feature leaded stained glass window to the front elevation, TV point, three wall light points, tongue and groove ceiling, dado rail, chimney breast with open recess which can be opened up to house a wood burning stove, central heating radiator, laminate wood flooring and stairs to the first floor. Opening to

kitchen 10' 6" x 8' 6" (3.2m x 2.59m) Fitted with a matching range of base and eye level units incorporating ceramic one and a half bowl sink unit with mixer tap, Belling four ring electric hob with extractor hood over, Indesit double oven, plumbing and space for washing machine, space for fridge/freezer, Glow Worm central heating boiler, tiled flooring and walls, window and door to the rear elevation.

Stairs to the first floor and landing Dado rail, ceiling light fan and wood laminate flooring.

Bedroom 1 11' 0" x 10' 4" (3.35m x 3.15m) Window to the front elevation, central heating radiator, laminate wood flooring, cupboard housing hot water cylinder, built in cupboards to alcove and access to loft.

Bedroom 2 8' 6" x 8' 2" (2.59m x 2.49m) Window to the rear elevation, central heating radiator, built in furniture to one wall and access to loft.

Shower room 9' 9" x 4' 3" (2.97m x 1.3m) Fitted with a matching white suite comprising fully tiled shower cubicle with Triton shower, low level WC, pedestal wash hand basin with mixer tap, vinyl flooring, tiled walls, tongue and groove ceiling and velux window.

Externally To the front of the property there is off-road parking. To the rear is a good sized garden comprising built in seating area, raised decked area, shaped lawn and two garden sheds, one of which has light and power. There is shared access to the rear of the property for the other cottages. The rear is fully enclosed and offers a lovely outdoor entertaining area.

Tenure Freehold.

Council tax Tax Band B.

Services All mains services are connected. Please note we have not tested the services or any of the equipment in this property, accordingly we strongly advise prospective purchasers to commission their own survey or service report before finalising their offer to purchase.

These particulars are issued in good faith but they are not guaranteed and do not form any part of A contract. Neither banner & co, nor the vendor or lessor accept any responsibility in respect of these particulars, which are not intended to be statements or representation of fact and any intending purchaser or lessor must satisfy himself or otherwise as to the correctness of each of the statements contained in these particulars.

A key element of selling and buying a property is to find the most competitive rate and suitable mortgage. Banner & Co offer Independent mortgage advice without obligation to any prospective buyers and sellers. As we are independent and not tied to any financial institution this allows us to assess all companies, banks and building societies to get you the best rate in the market which suits your personal needs and we do not charge broker fees. To find out more about this service please contact Banner & Co on and ask for Jon Sockett who has over 30 years experience in the mortgage industry

Floor Plans

Property Location

Marketed by Banner & Co



By submitting this form, you accept our Terms of Use.

Disclaimer Property descriptions and related information displayed on this page are marketing materials provided by Banner & Co. estateagents365.uk does not warrant or accept any responsibility for the accuracy or completeness of the property descriptions or related information provided here and they do not constitute property particulars. Please contact Banner & Co for full details and further information.