Terraced house for sale in London W4, 4 Bedroom

London, London, UK

Quick Summary

Property Type:
Terraced house
Status:
For sale
Price
£ 1,750,000
Beds:
4
Baths:
2
Recepts:
2
County
London
Town
London
Outcode
W4
Location
Windmill Road, London W4
Marketed By:
Hamptons International - Chiswick Sales
Posted
2024-04-05
W4 Rating:





More Info?
Please contact Hamptons International - Chiswick Sales on 020 3542 2179 or Request Details

Property Description

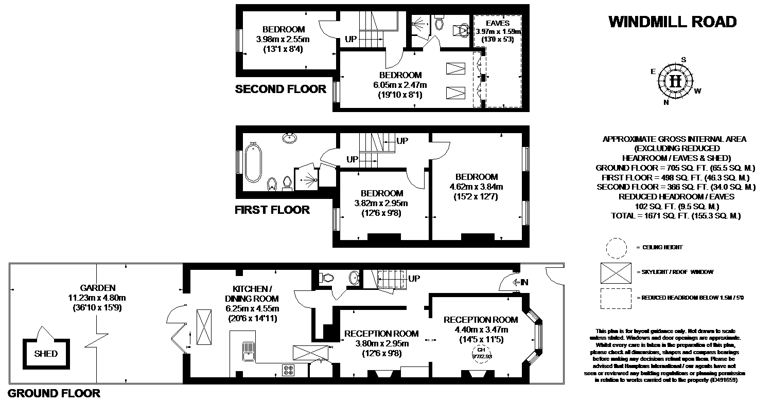
A stunning family home on a popular street moments from the amenities off Chiswick High Road. The house is offered in excellent condition throughout having been thoughtfully extended and fully modernised by the current owner. The ground floor consists of two adjoining receptions rooms that have been opened up to create generous entertaining space, enhanced by the properties high ceilings. The front reception features an original fireplace and a large bay window that allows natural light to flood in; both receptions and the entrance hall have solid oak flooring. The cloakroom is set just off the properties entrance hall. The rear of the property has been extended creating a generous open plan kitchen / living / dining space perfect for modern day living. Large glass panel sliding doors lead to the properties rear east facing garden. There are two double bedrooms and a spacious family bathroom on the first floor. The second floor consists of two further bedrooms one of which has an ensuite bathroom.

Situation
Windmill Road is a highly sought after residential road in central Chiswick moments from the independent boutiques, restaurants and cafes of the High Road and Turnham Green Terrace. There are many excellent schools nearby including the highly desirable Ofsted Outstanding Belmont Primary School which is 0.3miles away. Turnham Green station (District Line Zone 2) is 0.2 miles away. Access to the A4 East and Westbound is at Hogarth Roundabout which is 0.6 miles away.

Floor Plans

Property Location

Marketed by Hamptons International - Chiswick Sales


By submitting this form, you accept our Terms of Use.

Disclaimer Property descriptions and related information displayed on this page are marketing materials provided by Hamptons International - Chiswick Sales. estateagents365.uk does not warrant or accept any responsibility for the accuracy or completeness of the property descriptions or related information provided here and they do not constitute property particulars. Please contact Hamptons International - Chiswick Sales for full details and further information.