Terraced house for sale in London SW19, 3 Bedroom

London, London, UK

Quick Summary

Property Type:
Terraced house
Status:
For sale
Price
£ 1,350,000
Beds:
3
Baths:
2
Recepts:
2
County
London
Town
London
Outcode
SW19
Location
Somerset Road, London SW19
Marketed By:
Andrew Scott Robertson
Posted
2024-04-02
SW19 Rating:





More Info?
Please contact Andrew Scott Robertson on 020 3641 1486 or Request Details

Property Description

Situated in a lovely private location adjacent to the All England Tennis Club, a most attractive family house with a stunning, mature secluded south facing garden. The property offers an enormous amount of potential and has versatile and flexible accommodation over three floors, scope for extension (stpp) and an open fireplace. Located within walking distance of the fashionable shops, boutiques and restaurants of Wimbledon Village as well as Wimbledon Common, this superb family home is available for sale, having been in the ownership of the same family for over thirty years.

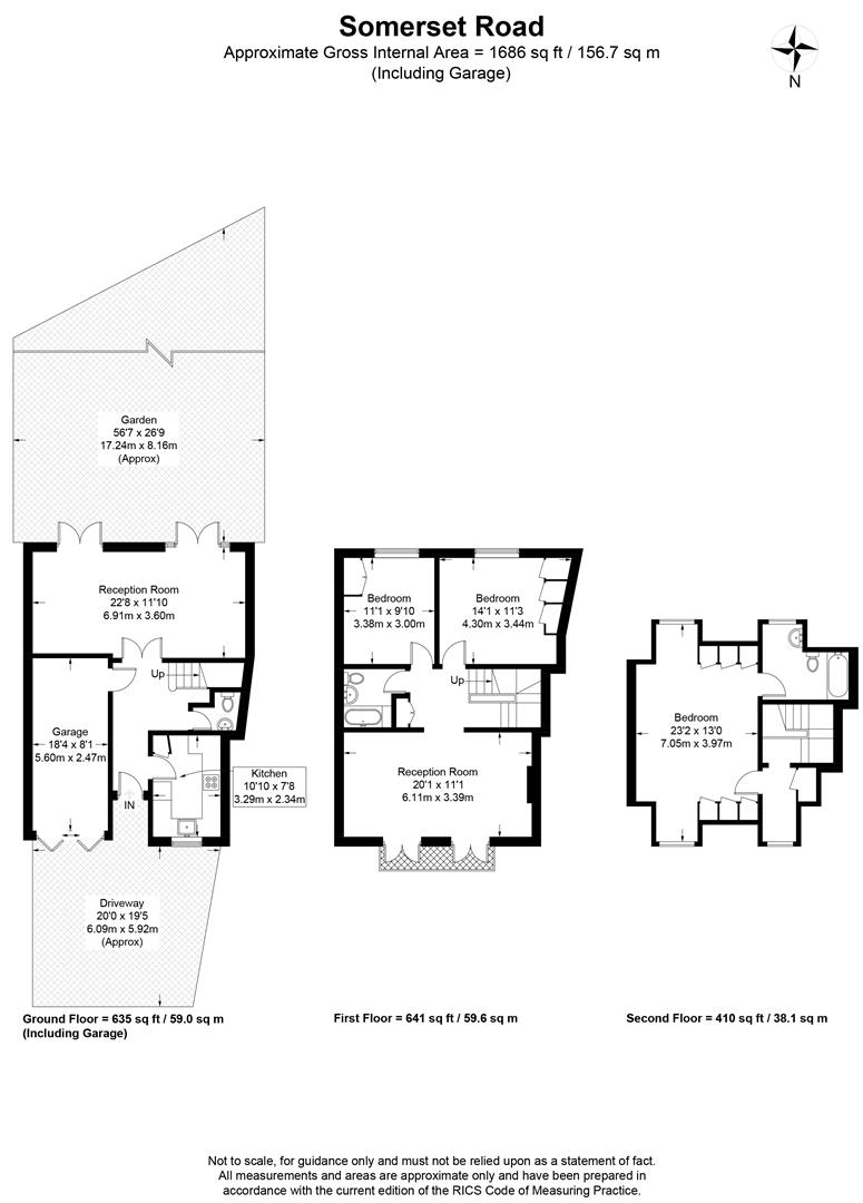
Reception 1 (6.91 x 3.60 (22'8" x 11'9"))

Kitchen (3.29 x 2.34 (10'9" x 7'8"))

Reception 2 (6.11 x 3.39 (20'0" x 11'1"))

Bedroom (3.38 x 3.00 (11'1" x 9'10"))

Bedroom (4.30 x 3.44 (14'1" x 11'3"))

Bedroom (7.05 x 3.97 (23'1" x 13'0"))

Floor Plans

Property Location

Marketed by Andrew Scott Robertson


By submitting this form, you accept our Terms of Use.

Disclaimer Property descriptions and related information displayed on this page are marketing materials provided by Andrew Scott Robertson. estateagents365.uk does not warrant or accept any responsibility for the accuracy or completeness of the property descriptions or related information provided here and they do not constitute property particulars. Please contact Andrew Scott Robertson for full details and further information.