Terraced house for sale in London E14, 5 Bedroom

London, London, UK

Quick Summary

Property Type:
Terraced house
Status:
For sale
Price
£ 2,800,000
Beds:
5
Baths:
3
Recepts:
2
County
London
Town
London
Outcode
E14
Location
Narrow Street, London E14
Marketed By:
Warehouse Home
Posted
2024-04-01
E14 Rating:





More Info?
Please contact Warehouse Home on 020 8033 4787 or Request Details

Property Description

Our property team says


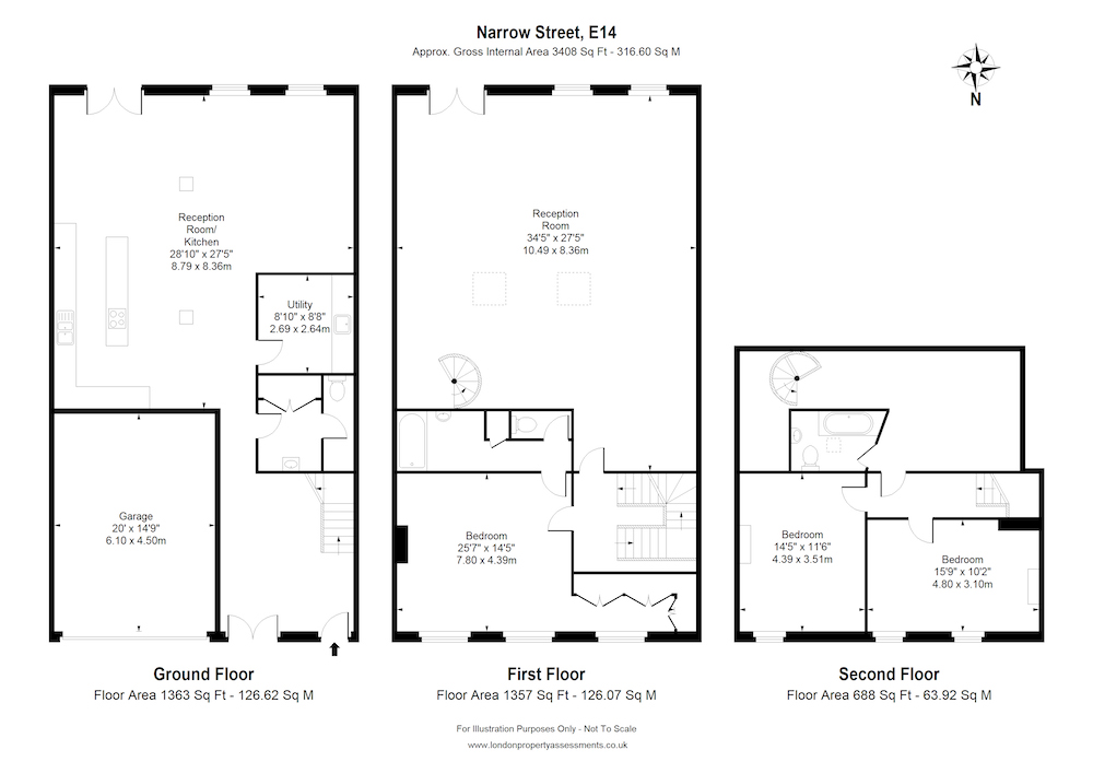
Dunbar Wharf is an incredibly well-preserved grade II listed freehold warehouse situated in Limehouse, on one of the oldest streets in east London. It is just a 10 minute riverside walk to Canary Wharf and a 300 yard walk to the DLR station for direct transport to Bank and Tower Hill. And yet despite its excellent connections, this a delightfully peaceful corner of London. It was here in Limehouse, that the Scottish wine and spirit merchant Duncan Dunbar settled in the 1790s. He established his venture from this waterside warehouse and eventually bequeathed it to his son, a successful shipping magnate of the 1800s. Set over three storeys, Dunbar Wharf is an incredibly well-preserved reminder of London’s rich history. In fact, the exterior of the building appears largely untouched, retaining its original loading doors and cast iron windows. The current owners have painstakingly ensured that the integrity of the property remains, both inside and out. Original features are abundant throughout the 3,500 square foot property, from exposed timber beams and expansive brick walls to wooden floors with the old square headed nails still apparent. The master bedroom, overlooking the delightfully named Narrow Street, retains its original fireplace opening and offers a generous dressing area with fitted cupboards, as well as a large ensuite bathroom. Two further double bedrooms, on the top floor of the property, also offer old fireplace openings, wooden floors and views of Narrow Street. To the rear of the building, there are two susbstantial reception rooms facing and opening onto the water and which offer idyllic spots to enjoy the gentle lapping of the water and occasional honking of Canada geese that frequent the river inlet. On the ground floor, the large open-plan family kitchen, dining and living area is an ideal space for entertaining. Also on this floor are a generous utility room, guest powder room with separate cloakroom and WC, as well as direct access to the double garage, which in London of course is a highly prized feature. There is even the possibility of establishing a small jetty/pontoon to the rear of the property, at which to moor a small boat (subject to planning and approval). The second of the very large reception rooms, on the second floor, is a remarkable double height space replete with original features, including a sizeable pulley and winch and an enormous sliding metal door which once enabled goods to be transported between this warehouse and the adjacent building. A mezzanine accessed by a spiral staircase from this reception room offers plenty of space for a home office beneath the old warehouse eaves. For the opportunity to own and enjoy one of London's most beautifully preserved single dwelling warehouse conversions, we highly recommend viewing Dunbar Wharf.

Floor Plans

Property Location

Marketed by Warehouse Home



By submitting this form, you accept our Terms of Use.

Disclaimer Property descriptions and related information displayed on this page are marketing materials provided by Warehouse Home. estateagents365.uk does not warrant or accept any responsibility for the accuracy or completeness of the property descriptions or related information provided here and they do not constitute property particulars. Please contact Warehouse Home for full details and further information.