Terraced house for sale in Liverpool L4, 3 Bedroom

Liverpool, Liverpool, UK

Quick Summary

Property Type:
Terraced house
Status:
For sale
Price
£ 65,000
Beds:
3
Baths:
2
Recepts:
2
County
Merseyside
Town
Liverpool
Outcode
L4
Location
Hans Road, Liverpool L4
Marketed By:
Reeds Rains
Posted
2018-09-06
L4 Rating:





More Info?
Please contact Reeds Rains on 0151 382 7953 or Request Details

Property Description



** No upward chain** Whether you are looking to get onto the property ladder, investing or downsizing, this fantastic three bedroom terraced house on Hans Road could tick all of your boxes and be what you have been looking for. A viewing is highly recommended to avoid disappointment call our friendly team to arrange your space. EPC Grade E.

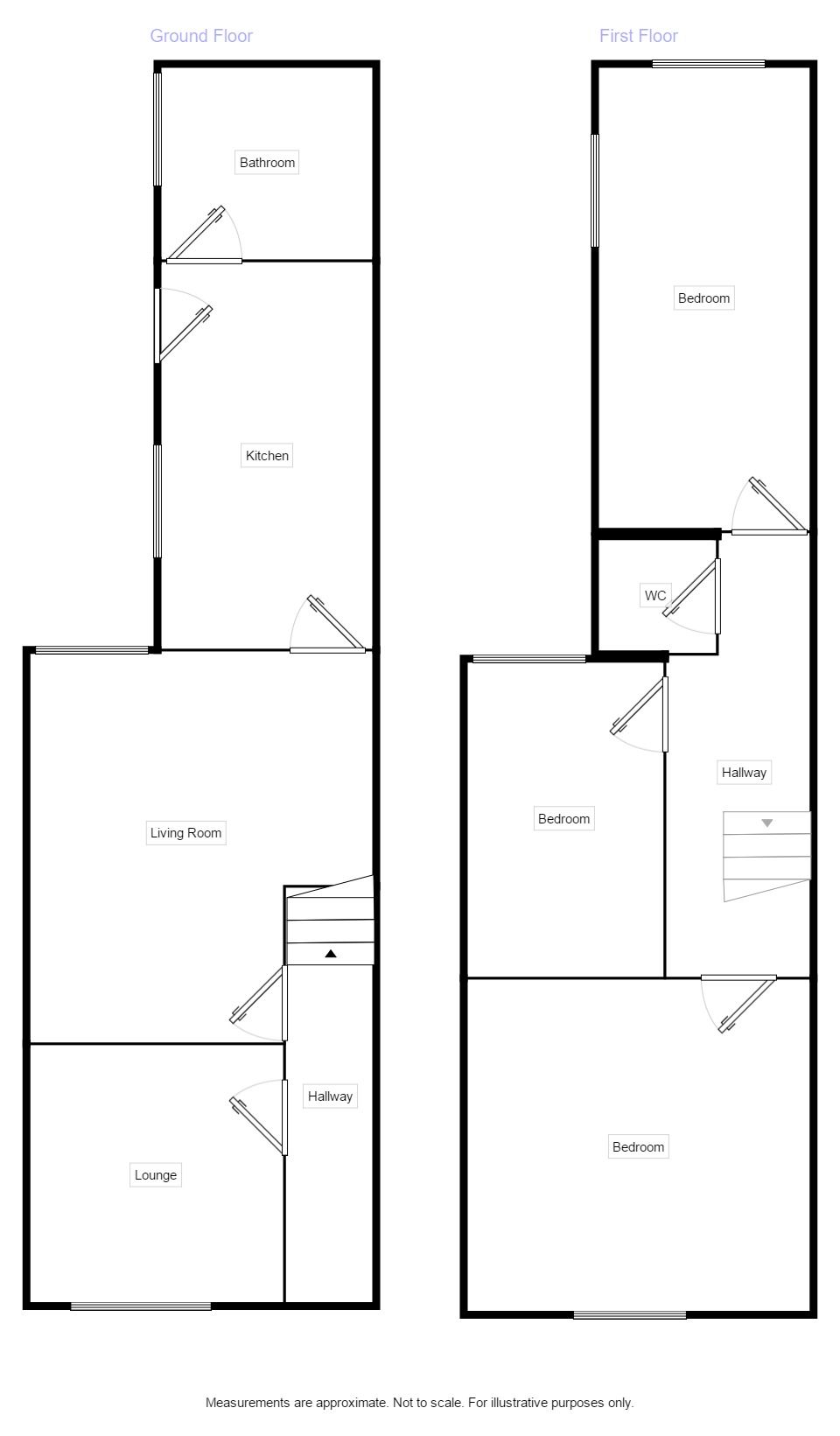
Hall Way (0.91m x 2.34m)

Wall mounted radiator.

Lounge (3.63m x 4.01m)

Front facing double glazed window, wall mounted radiator and TV point.

Living Room

Rear facing double glazed window, wall mounted radiator and TV point.

Kitchen (2.46m x 4.47m)

Good sized fitted kitchen with space for washing machine and fridge freezer. Side facing double glazed window and door leading to the rear courtyard.

Bathroom (1.65m x 2.29m)

White fitted three piece bathroom suite comprising hand basin, low flush WC and paneled bath/shower. Rear Side facing double glazed window and wall mounted radiator.

Landing (1.5m x 4.6m)

Bedroom 2 (2.46m x 5.38m)

Double sized bedroom with rear facing double glazed window, wall mounted radiator and TV point.

WC (1.32m x 1.60m)

Useful two piece suite with hand basin and low flush WC. Side facing double glazed window.

Bedroom 3 (2.44m x 3.63m)

Double sized bedroom with rear facing double glazed window, wall mounted radiator and TV point.

Bedroom 1 (3.38m x 4.01m)

Double sized bedroom with front facing double glazed window, wall mounted radiator and TV point.

External

Street Parking and rear courtyard.

Important note to purchasers:

We endeavour to make our sales particulars accurate and reliable, however, they do not constitute or form part of an offer or any contract and none is to be relied upon as statements of representation or fact. Any services, systems and appliances listed in this specification have not been tested by us and no guarantee as to their operating ability or efficiency is given. All measurements have been taken as a guide to prospective buyers only, and are not precise. Please be advised that some of the particulars may be awaiting vendor approval. If you require clarification or further information on any points, please contact us, especially if you are traveling some distance to view. Fixtures and fittings other than those mentioned are to be agreed with the seller.

/8

Floor Plans

Property Location

Marketed by Reeds Rains



By submitting this form, you accept our Terms of Use.

Disclaimer Property descriptions and related information displayed on this page are marketing materials provided by Reeds Rains. estateagents365.uk does not warrant or accept any responsibility for the accuracy or completeness of the property descriptions or related information provided here and they do not constitute property particulars. Please contact Reeds Rains for full details and further information.