Terraced house for sale in Lincoln LN5, 3 Bedroom

Lincoln, Lincoln, UK

Quick Summary

Property Type:
Terraced house
Status:
For sale
Price
£ 125,000
Beds:
3
Baths:
1
Recepts:
1
County
Lincolnshire
Town
Lincoln
Outcode
LN5
Location
Knight Street, Lincoln LN5
Marketed By:
Your Move - Lincoln
Posted
2024-04-25
LN5 Rating:





More Info?
Please contact Your Move - Lincoln on 01522 397736 or Request Details

Property Description



***perfect for first time buyers & investors***

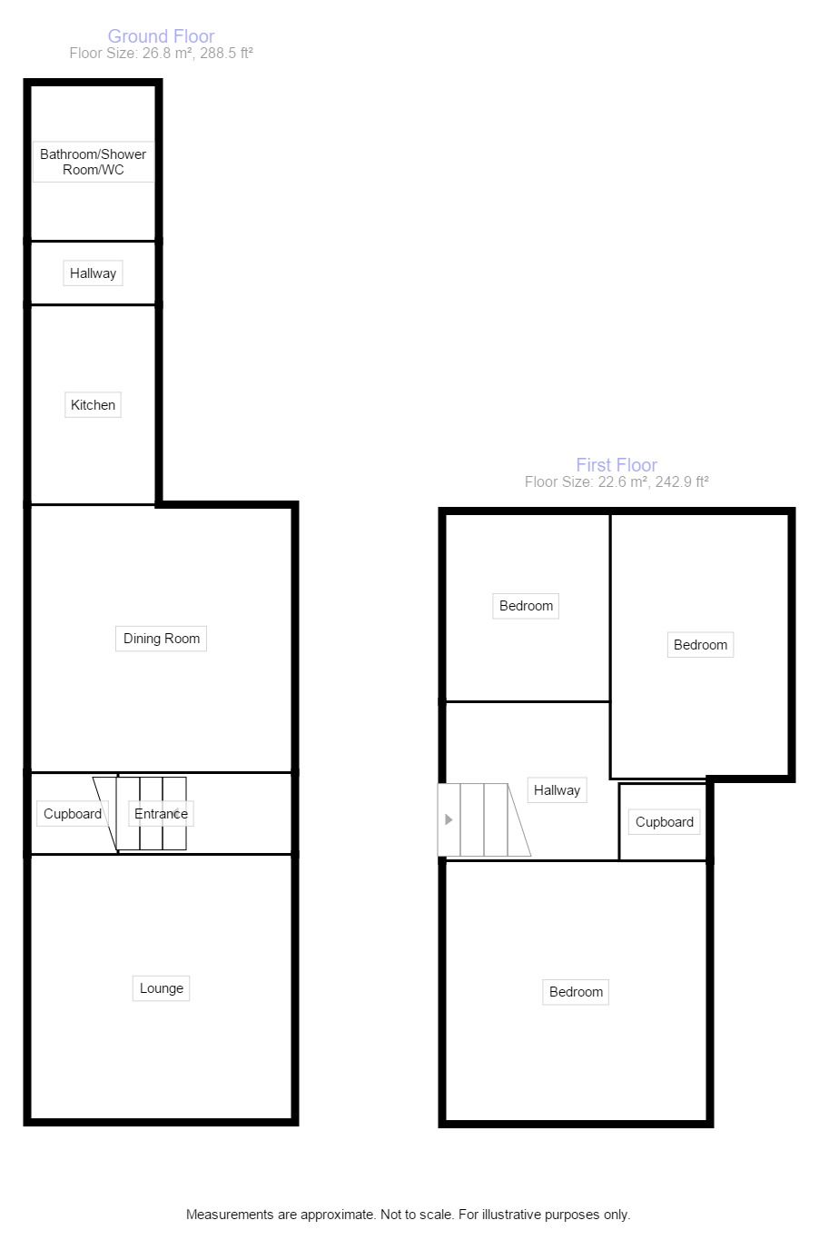
We are delighted to offer for sale this three bedroom terraced home. The property briefly comprises of lounge, dining room, modern kitchen, and bathroom/WC.
The first floor offers three bedrooms, two of which are double in size.

There is a low maintenance garden to the rear. EPC grade D

Location

This property is situated on the edge of the city centre and has access to amenities that Lincoln has to offer, including a variety of shops, bars, restaurants, Brayford Pool, Cathedral quarter and the university.

Our View

Internal is a must to appreciate what this property has to offer.

This would be ideal for those who are looking to take their first step on the property ladder. This property would also be perfect for investors looking for a property they can move a tenant straight in to.

Entrance

Lounge (3.43m x 3.45m)

Dining Room (3.40m x 3.45m)

Kitchen (3.43m x 1.98m)

Bathroom / Shower Room / WC (2.01m x 1.60m)

Bedroom (3.43m x 3.45m)

Bedroom (2nd) (2.54m x 2.64m)

Bedroom (3rd) (2.29m x 3.43m)

Rear Garden

Important note to purchasers:

We endeavour to make our sales particulars accurate and reliable, however, they do not constitute or form part of an offer or any contract and none is to be relied upon as statements of representation or fact. Any services, systems and appliances listed in this specification have not been tested by us and no guarantee as to their operating ability or efficiency is given. All measurements have been taken as a guide to prospective buyers only, and are not precise. Please be advised that some of the particulars may be awaiting vendor approval. If you require clarification or further information on any points, please contact us, especially if you are traveling some distance to view. Fixtures and fittings other than those mentioned are to be agreed with the seller.

/3

Floor Plans

Property Location

Marketed by Your Move - Lincoln



By submitting this form, you accept our Terms of Use.

Disclaimer Property descriptions and related information displayed on this page are marketing materials provided by Your Move - Lincoln. estateagents365.uk does not warrant or accept any responsibility for the accuracy or completeness of the property descriptions or related information provided here and they do not constitute property particulars. Please contact Your Move - Lincoln for full details and further information.