Terraced house for sale in Ilminster TA19, 2 Bedroom

Ilminster, Ilminster, UK

Quick Summary

Property Type:
Terraced house
Status:
For sale
Price
£ 149,500
Beds:
2
Baths:
1
Recepts:
1
County
Somerset
Town
Ilminster
Outcode
TA19
Location
Wharf Lane, Ilminster TA19
Marketed By:
Doorsteps.co.uk, National
Posted
2018-10-21
TA19 Rating:





More Info?
Please contact Doorsteps.co.uk, National on 01298 437941 or Request Details

Property Description

Silverstone cottage, wharf lane, ilminster, somerset TA19 0DT

for sale: Offers in the region of £149,500


Particulars of sale


A delightfully situated Grade II listed mid-terrace cottage providing two-bedroom accommodation close to the centre of the attractive and historic town of Ilminster.

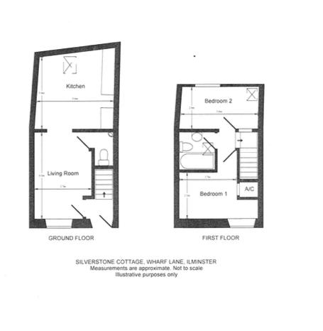
Entrance Hall, Kitchen/Living Room, Cloakroom, Landing, Bedroom 1, Bathroom, Bedroom 2. There is no garden or outdoor area with this property. EPC: Energy Efficiency Rating D (64). Council Tax Band: A. No onward chain.

Silverstone Cottage is set in a delightful position within a short distance of the Minster and the independent traders’ shops which are in the centre of the town. The property is of stone and brick elevations under a pitched tiled roof and has a whole-house ventilation system which was installed as part of major conversion works in 1994. On the ground floor there is a small entrance hall, kitchen/living room and cloakroom. There are two bedrooms and a bathroom on the first floor.
The accommodation with approximate measurements comprises:


Ground floor


Front door to:

Hall with electricity meter, gas supply pipe, stairs rising to first floor, door to:

Living room/kitchen (4.09 metres x 2.73m max/2.21m min plus 3.43m x 3.86m max/3.42m min) with exposed beams, wall lights, recently fitted range of wall and floor units, stainless steel 1.5-bowl sink, cooker point, roof window, Dimplex XLS18N and CXLS24 electric heaters, laminate floor and door to:

Cloakroom with quarry tiled floor, white low level WC, corner-mounted wash hand basin and tiled splashback. Mains water stop valve.


First floor


Landing with stained glass light-sharing window from Bedroom Two.

Bedroom one (3.73m x 2.24m) front aspect window, airing cupboard with hot water cylinder and Economy 7/Day rate heating elements, pendant and wall lights.

Bathroom with suite comprising white low-level WC, basin and steel bath (with Mira Sprint Multi Fit 9.5kW electric mains water shower). Roof window. High level doors to roof space containing cold water storage tank.

Bedroom two (3.73m x 2.08m) with attractive angular window, roof window and stained glass window to landing. Cupboard into eaves.


Tenure


Freehold


Services


Mains water, electricity and drainage. Gas is available although the gas connection has not been used in recent years.


Directions


From the market square, walk along Silver Street and, when passing by the Minster on the right, the pedestrian access to Wharf Lane will be seen on the left.


Local authority


South Somerset District Council, The Council Offices, Brympton Way, Yeovil, Somerset BA20 2HT. Council Tax Band A.


Important notice


We have prepared these particulars as a general guide. We have not carried out a detailed survey, nor tested the services, applian
ces and specific fittings. Room sizes are approximate and should not be relied upon for carpets and furnishings. If there are important matters which are likely to affect your decision to buy, please contact us before buying the property.

Floor Plans

Property Location

Marketed by Doorsteps.co.uk, National



By submitting this form, you accept our Terms of Use.

Disclaimer Property descriptions and related information displayed on this page are marketing materials provided by Doorsteps.co.uk, National. estateagents365.uk does not warrant or accept any responsibility for the accuracy or completeness of the property descriptions or related information provided here and they do not constitute property particulars. Please contact Doorsteps.co.uk, National for full details and further information.