Terraced house for sale in Henley-on-Thames RG9, 3 Bedroom

Henley-on-Thames, Henley-on-Thames, UK

Quick Summary

Property Type:
Terraced house
Status:
For sale
Price
£ 600,000
Beds:
3
Baths:
1
Recepts:
1
County
Oxfordshire
Town
Henley-on-Thames
Outcode
RG9
Location
Park Road, Henley-On-Thames, Oxfordshire RG9
Marketed By:
Romans - Henley
Posted
2024-05-29
RG9 Rating:





More Info?
Please contact Romans - Henley on 01491 738811 or Request Details

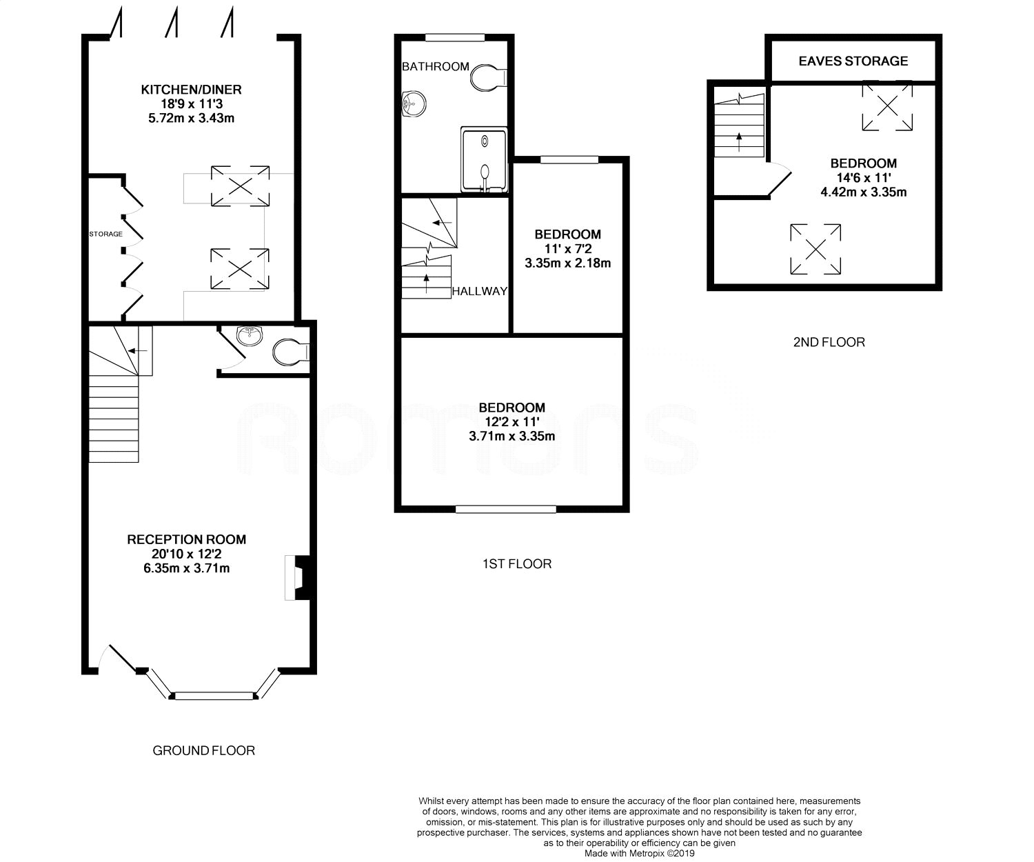
Property Description



Offered to the market stands this immaculately presented three bedroom family home. The property offers a large lounge along with a modern refitted kitchen, which has been extended to incorporate a dining area with bi-fold windows out onto the garden.

Upstairs there are three good sized bedrooms along with a modern refitted bathroom. The property is within close proximity to Henley train station with links into Reading and London.


Floor Plans

Property Location

Marketed by Romans - Henley


By submitting this form, you accept our Terms of Use.

Disclaimer Property descriptions and related information displayed on this page are marketing materials provided by Romans - Henley. estateagents365.uk does not warrant or accept any responsibility for the accuracy or completeness of the property descriptions or related information provided here and they do not constitute property particulars. Please contact Romans - Henley for full details and further information.