Terraced house for sale in Heanor DE75, 3 Bedroom

Heanor, Heanor, UK

Quick Summary

Property Type:
Terraced house
Status:
For sale
Price
£ 75,000
Beds:
3
Baths:
1
Recepts:
1
County
Derbyshire
Town
Heanor
Outcode
DE75
Location
Gladstone Street, Heanor DE75
Marketed By:
Your Move
Posted
2024-04-01
DE75 Rating:





More Info?
Please contact Your Move on 01773 420869 or Request Details

Property Description



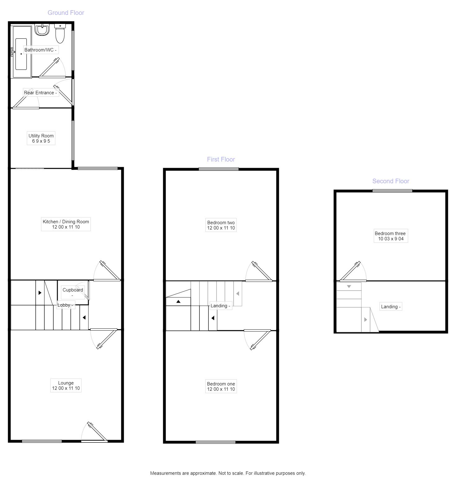
Three double bedrooms ! Utility room ! No upward chain ! Come and take at look at the price of this one and arrange your viewing on this Three Bedroom Mid Terraced house within walking distance of Heanor Town Centre. In brief the property consists of to the Ground Floor a Lounge, Kitchen/Diner, Inner Hall, Utility and Bathroom/Wc whilst to the First Floor there are Two Double Bedrooms and landing with Stairs leading to a further Double Bedroom. To the outside there is a Rear Garden. The property also benefits from Double Glazing and Gas Central Heating. EPC Rating D.

Location

Heanor is a sought after residential location with a range of shops, building societies, leisure facilities, public houses as well as public transport links into Nottingham and Derby city centre and nearby train station at Langley Mill providing railway links up and down the country.

Our View

Attention first time buyers and investors ! An ideal property to get yourself on the property ladder or for an Investor to take a good yield from. Owner is just looking to sell so please call Your Move today to arrange your viewing.

Lounge (3.61m x 3.66m)

Kitchen / Dining Room (3.61m x 3.66m)

Utility Room (1.96m x 2.06m)

Bedroom (3.61m x 3.66m)

Bedroom (2nd) (3.61m x 3.66m)

Bedroom (3rd) (2.84m x 3.12m)

Important note to purchasers:

We endeavour to make our sales particulars accurate and reliable, however, they do not constitute or form part of an offer or any contract and none is to be relied upon as statements of representation or fact. Any services, systems and appliances listed in this specification have not been tested by us and no guarantee as to their operating ability or efficiency is given. All measurements have been taken as a guide to prospective buyers only, and are not precise. Please be advised that some of the particulars may be awaiting vendor approval. If you require clarification or further information on any points, please contact us, especially if you are traveling some distance to view. Fixtures and fittings other than those mentioned are to be agreed with the seller.

/3

Floor Plans

Property Location

Marketed by Your Move



By submitting this form, you accept our Terms of Use.

Disclaimer Property descriptions and related information displayed on this page are marketing materials provided by Your Move. estateagents365.uk does not warrant or accept any responsibility for the accuracy or completeness of the property descriptions or related information provided here and they do not constitute property particulars. Please contact Your Move for full details and further information.