Terraced house for sale in Great Missenden HP16, 2 Bedroom

Great Missenden, Great Missenden, UK

Quick Summary

Property Type:
Terraced house
Status:
For sale
Price
£ 550,000
Beds:
2
Baths:
1
Recepts:
2
County
Buckinghamshire
Town
Great Missenden
Outcode
HP16
Location
Church Street, Great Missenden, Buckinghamshire HP16
Marketed By:
Hamptons International - Great Missenden
Posted
2024-04-24
HP16 Rating:





More Info?
Please contact Hamptons International - Great Missenden on 01494 912871 or Request Details

Property Description

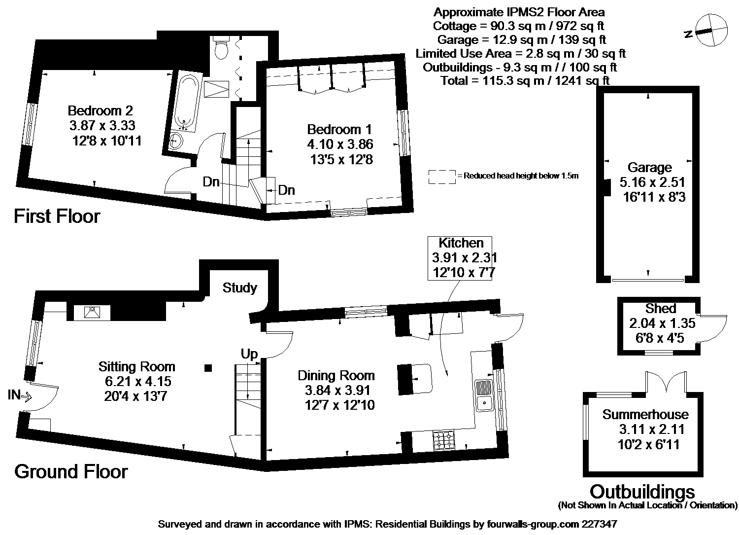
Dating back to the 1600's, this beautiful Grade II listed property has been extensively refurbished throughout. The 20'4 x 13'7ft sitting room enjoys exposed timbers with a wonderful wood burning stove, in addition there is a lovely study area. The kitchen breakfast room enjoys underfloor heating and comprehensive fitted units (which include a Breakfast bar). The first floor provides two tastefully decorated bedrooms, with bedroom one enjoying exposed timbers and fitted wardrobe cupboards, bedroom two appreciating characterful beams and a vaulted ceiling both of which are served by the family bathroom.

Situation
The property is located in this highly sought after no-through road which concludes with the village church and an 'Outstanding' church school. Set within this conservation area offering a variety of character/listed properties and a 1/4 mile walk from a mainline station to London Marylebone (approx. 36 mins by fast train), Church Street is situated just off the historic village High Street, offering everyday shopping, pubs and award winning restaurants. The Buryfields offers two playgrounds, in addition to this, the thriving Great Missenden tennis club has 18 courts and the famous Roald Dahl Museum is in the High Street. The larger town of Amersham with access to the Metropolitan line to London is approx 6.6 miles distance. In addition, High Wycombe provides extensive shopping and recreational facilities, including the Eden centre. Buckinghamshire is renowned for its State and Private Education including the excellent Grammar schools, details of which can be obtained from the Local Authority.

Outside
To the rear immediately outside the property accessed via the shared courtyard is the single garage which offers additional storage and or workshop space. A pathway leads to a separate cottage garden which enjoys a southerly aspect, well stocked flower beds, a large lawned area enclosed by mature shrubs, trees fencing and attractive brick and flint wall. In addition there is a 10'2ft x 6'11ft studio/summer house with power.

Floor Plans

Property Location

Marketed by Hamptons International - Great Missenden


By submitting this form, you accept our Terms of Use.

Disclaimer Property descriptions and related information displayed on this page are marketing materials provided by Hamptons International - Great Missenden. estateagents365.uk does not warrant or accept any responsibility for the accuracy or completeness of the property descriptions or related information provided here and they do not constitute property particulars. Please contact Hamptons International - Great Missenden for full details and further information.