Terraced house for sale in Gloucester GL1, 2 Bedroom

Gloucester, Gloucester, UK

Quick Summary

Property Type:
Terraced house
Status:
For sale
Price
£ 225,000
Beds:
2
Baths:
2
County
Gloucestershire
Town
Gloucester
Outcode
GL1
Location
Worcester Street, Gloucester GL1
Marketed By:
Martin & Co Gloucester
Posted
2018-11-25
GL1 Rating:





More Info?
Please contact Martin & Co Gloucester on 01452 768294 or Request Details

Property Description

*investment opportunity*

Martin & Co are delighted to offer for sale with no onward chain this excellent investment opportunity compromising of both residential and commercial units.

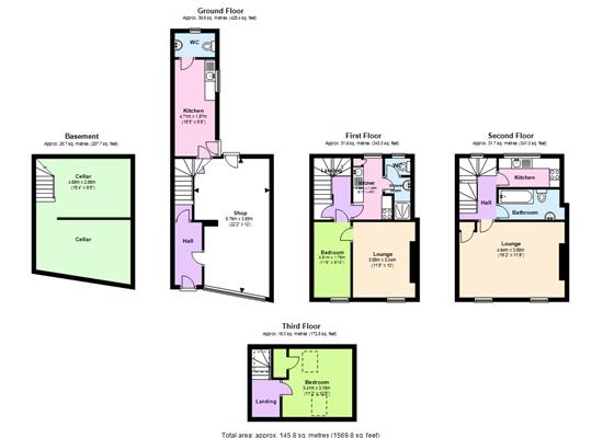
Grade II listed and situated in the centre of Gloucester this mid-terraced property has a shop on the ground floor with kitchen and W.C. The first floor has a one bedroom flat comprising of lounge, kitchen, double bedroom and shower room. The second floor offers a further one bedroom duplex flat which comprises of lounge, kitchen and bathroom on the entrance level and bedroom up a further flight of stairs.

The three units generate an annual income of £15,000 offering a return of just over 6.5% per annum.

Floor Plans

Property Location

Marketed by Martin & Co Gloucester


By submitting this form, you accept our Terms of Use.

Disclaimer Property descriptions and related information displayed on this page are marketing materials provided by Martin & Co Gloucester. estateagents365.uk does not warrant or accept any responsibility for the accuracy or completeness of the property descriptions or related information provided here and they do not constitute property particulars. Please contact Martin & Co Gloucester for full details and further information.