Terraced house for sale in Glasgow G76, 2 Bedroom

Glasgow, Glasgow, UK

Quick Summary

Property Type:
Terraced house
Status:
For sale
Price
£ 155,000
Beds:
2
Baths:
1
Recepts:
1
County
Glasgow
Town
Glasgow
Outcode
G76
Location
Stamperland Avenue, Clarkston, Glasgow G76
Marketed By:
Clyde Property, Clarkston
Posted
2024-04-20
G76 Rating:





More Info?
Please contact Clyde Property, Clarkston on 0141 376 9405 or Request Details

Property Description

Occupying a nice position on Stamperland Avenue, close to public transport links by both bus and rail, along with an array of local amenities, this lovely mid terrace villa offers spacious accommodation over two main levels, with nice sized gardens and modern décor.

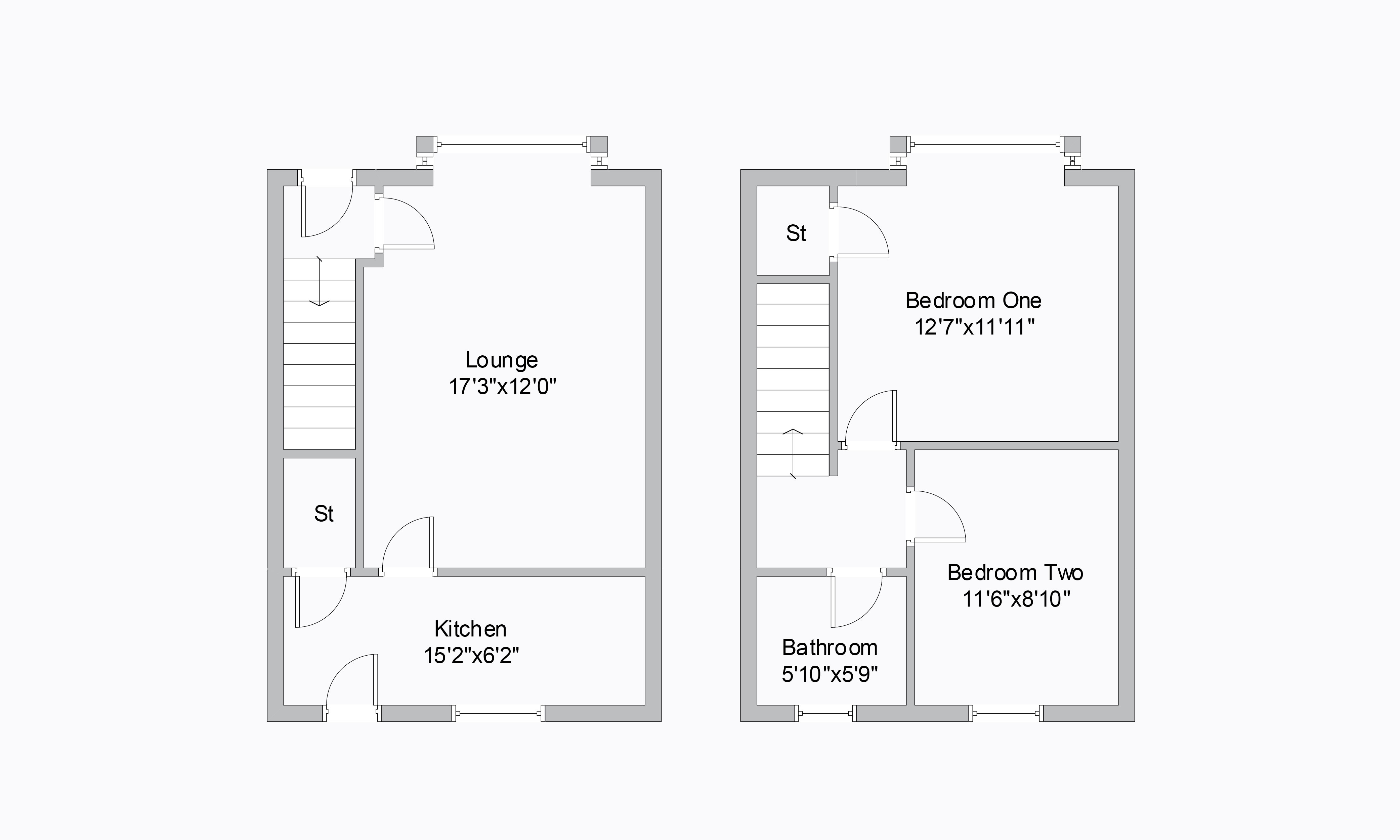
Internally, the accommodation comprises of entrance hallway with staircase to upper level, impressive lounge with bay window to the front and focal fireplace whilst to the rear of the property is a kitchen which hosts a broad range of floor and wall mounted units along with in built oven, hob and hood, access to a large walk in storage cupboard and door leading directly to the gardens.

The upper level hosts two nicely proportioned bedrooms, the master of which has bay window to the front and large storage cupboard and the family bathroom is modern with white suite, contemporary tiling and electric shower over bath.

Further features include a system of gas fired central heating, double glazing and enclosed gardens to the rear which have been landscaped with an area of decking (ideal for outside dining) and lawn, all of which is surrounded by fencing and hedging. EPC Band - C

Floor Plans

Property Location

Marketed by Clyde Property, Clarkston


By submitting this form, you accept our Terms of Use.

Disclaimer Property descriptions and related information displayed on this page are marketing materials provided by Clyde Property, Clarkston. estateagents365.uk does not warrant or accept any responsibility for the accuracy or completeness of the property descriptions or related information provided here and they do not constitute property particulars. Please contact Clyde Property, Clarkston for full details and further information.