Terraced house for sale in Glasgow G13, 3 Bedroom

Glasgow, Glasgow, UK

Quick Summary

Property Type:
Terraced house
Status:
For sale
Price
£ 179,000
Beds:
3
Baths:
1
Recepts:
2
County
Glasgow
Town
Glasgow
Outcode
G13
Location
2115 Great Western Road, Knightswood, Glasgow G13
Marketed By:
Moving Estate Agents
Posted
2024-04-20
G13 Rating:





More Info?
Please contact Moving Estate Agents on 0141 376 8883 or Request Details

Property Description



Stunning mid terrace villa that has been lovingly extended and improved to an exacting standard by the current owners to offer modern, comfortable and luxurious family living within this popular residential location.

The high specification interior comprises entrance hallway with front facing bay lounge off that has focal point fireplace and hard wood oak flooring that continues through kitchen diner and family room. From the lounge is the superb family/dining/kitchen area that is an amazing space with French doors out to South facing rear garden with patio, lawn area and shed. The modern kitchen is fitted with a range of stylish floor and wall mounted units with quartz work surface, eight burner gas hob, double oven and integrated fridge freezer. From the family area is a large versatile utility room with work top space and door into WC with two-piece white suite and complementary tiling.

Upstairs has larger top hallway with hatch to partially floored loft space, deep walk in storage cupboard, three double bedrooms, the master bedroom to the front with fitted wardrobe, and family bathroom with white suite and over bath shower with screen.

Further enhancements include re-plastered walls, gas central heating, double glazing, rewired, replaced internal and external doors, skirting, door surrounds and frames.

The location is extremely convenient for transport links to West End, City Centre and further afield, motorway networks, Clyde Tunnel, shopping and schooling. Viewing is a must to appreciate the feel and ambiance of this special family home

EPC = C

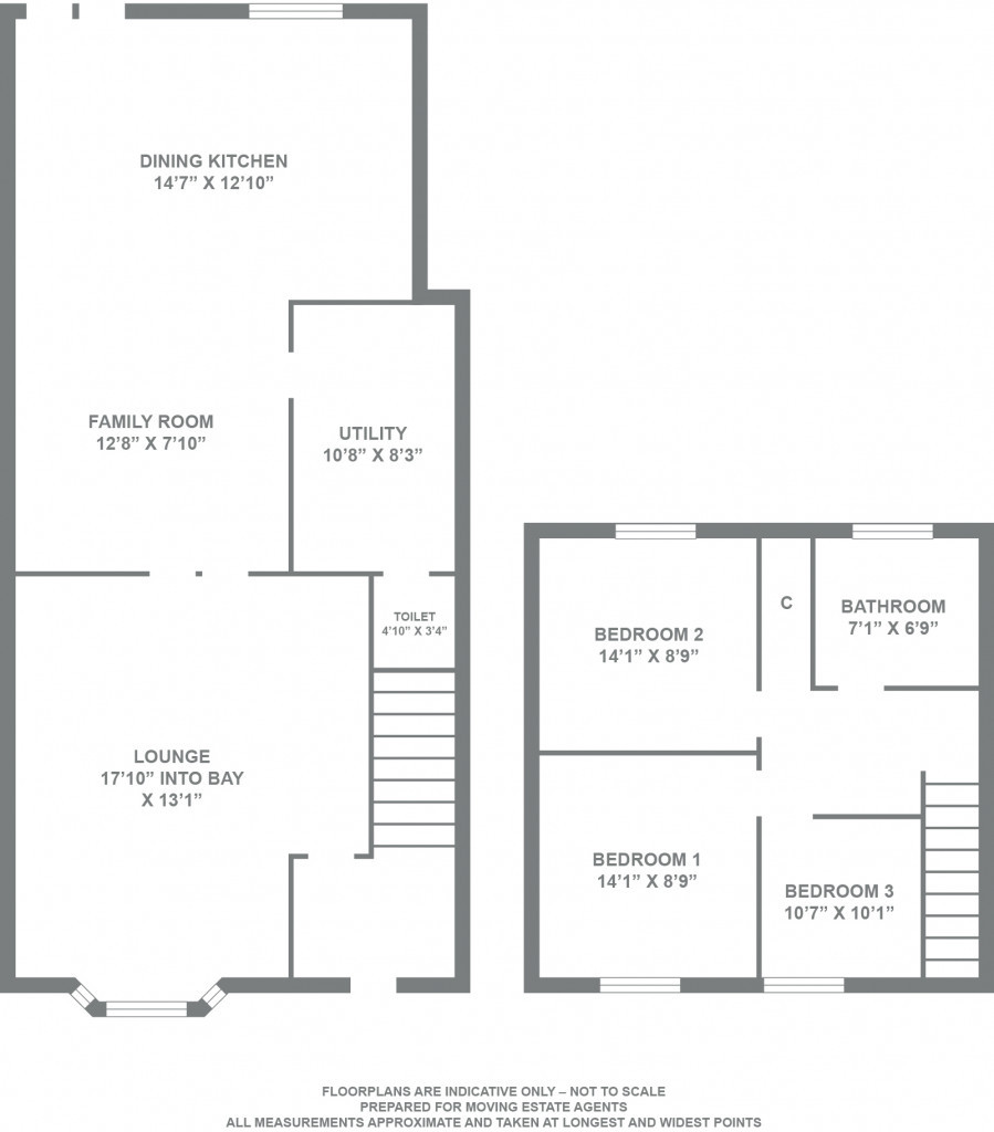
Measurements:

Lounge 17’1” x 13’1” (into bay)

Dining kitchen 14’7” x 12’10”

Family Room 12’8” x 7’10”

Utility 10’8” x 8’3”

Toilet 4’10” x 3’4”

upstairs:

Bedroom 1 14’1” x 8’9”

Bedroom 2 11’1” x 10’10”

Bedroom 3 10’7” x 10’1”

Bathroom 7’1” x 6’9”

(All measurements approximate and taken at longest and widest points)

Features

Stunning extended mid-terraced villa in popular convenient location

Front facing bay lounge

Superb family/dining/kitchen space with French doors to South facing rear garden

Large utility with WC off

3 double bedrooms master with fitted wardrobe

Family bathroom with white suite

Hatch to partially floored loft space

Double glazing, gas central heating, rewired and re-plastered internal walls

Floor Plans

Property Location

Marketed by Moving Estate Agents



By submitting this form, you accept our Terms of Use.

Disclaimer Property descriptions and related information displayed on this page are marketing materials provided by Moving Estate Agents. estateagents365.uk does not warrant or accept any responsibility for the accuracy or completeness of the property descriptions or related information provided here and they do not constitute property particulars. Please contact Moving Estate Agents for full details and further information.