Terraced house for sale in Edinburgh EH6, 3 Bedroom

Edinburgh, Edinburgh, UK

Quick Summary

Property Type:
Terraced house
Status:
For sale
Price
£ 270,000
Beds:
3
County
Edinburgh
Town
Edinburgh
Outcode
EH6
Location
Prospect Bank Gardens, Leith Links, Edinburgh EH6
Marketed By:
Mov8 Real Estate
Posted
2018-09-09
EH6 Rating:





More Info?
Please contact Mov8 Real Estate on 0131 268 8851 or Request Details

Property Description



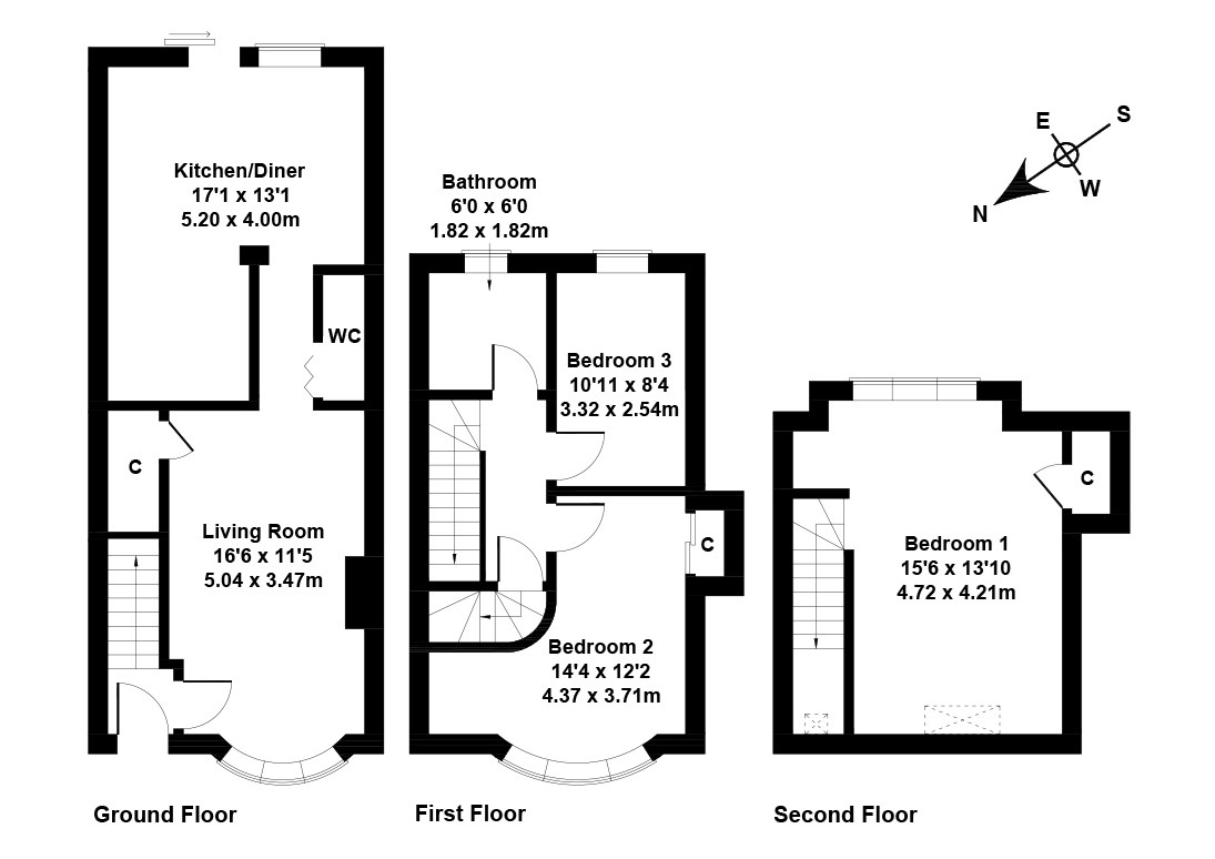
Beautifully-presented and spacious, three-bedroom, mid-terrace villa, over three storeys, with a garden and double driveway, located in a quiet cul-de-sac, in the popular Leith Links area, north east of Edinburgh city centre. An entrance hall opens to the lounge and stairway to the first floor, and has space for outwear. Quality hardwood flooring continues from the entrance into the front facing lounge, featuring a wood-burning store, and a built-in store cupboard. A inner hall passage connects the lounge and dining/kitchen to the rear, and gives access to the WC with two piece suite. To the rear, the kitchen has a patio door opening to the wood-decked patio terrace, and has space for a dinner table. A quality fitted kitchen includes real-wood worktops, sink with spray tap, a tiled surround, washing machine, fridge/freezer and an integrated double oven, 5 ring gas hob and canopy. On the first floor, two carpeted double bedrooms are set to both aspects, whilst a newly fitted and stylish, fully-tiled family bathroom has a rear facing window and is fitted with a three piece suite including a main mixer shower over the bath. On the second floor the carpeted master bedroom with dormer window to the garden and velux windows to the front features ample space for a bed and storage space. The Leith Links district is most famous for its open parklands, one of Edinburgh's larger green spaces, with other leisure opportunities including Seafield Recreation Ground and Craigentinny Golf Course. The fashionable Shore district can be found around a mile away, with its fine selection of Michelin-starred restaurants, and the Ocean Terminal retail complex a little further beyond, offering a multi-screen cinema, gym, spa, and a wide choice of high-street retailers and restaurants. Leith Walk, Easter Road, and Great Junction Street all lie within around a mile's radius, offering a wealth of restaurants, cafés, bars, and supermarkets. There are frequent bus services, a number of primary schools in the area, with secondary schooling at Leith Academy.


Floor Plans

Property Location

Marketed by Mov8 Real Estate


By submitting this form, you accept our Terms of Use.

Disclaimer Property descriptions and related information displayed on this page are marketing materials provided by Mov8 Real Estate. estateagents365.uk does not warrant or accept any responsibility for the accuracy or completeness of the property descriptions or related information provided here and they do not constitute property particulars. Please contact Mov8 Real Estate for full details and further information.